Open-plan kitchen/diner with skylights and bi-fold doors to garden
Master bedroom on second floor with ensuite shower room
Separate lounge plus spacious conservatory for flexible living
Attractive finishes, integrated appliances and quality flooring
Decent enclosed rear garden, patio and garden shed
Off-street parking on a spacious driveway
Spread over three floors — not ideal for limited mobility
EPC rating C — moderate energy efficiency compared to new builds
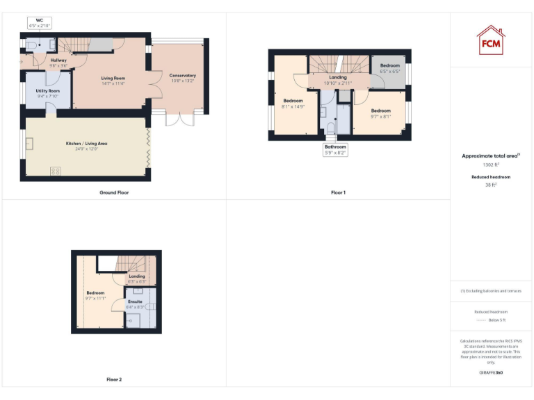
This extended three-storey semi offers practical family living with contemporary style. The standout open-plan kitchen/diner, vaulted ceiling with skylights and bi-fold doors creates a bright hub for family life and entertaining. A separate lounge with feature fire and a large conservatory provide flexible living space for parents and children alike.
Accommodation includes three bedrooms on the first floor and a generous second-floor master with ensuite, giving privacy and a clear family layout. Quality finishes, attractive doors, modern flooring and integrated kitchen appliances reduce immediate maintenance needs. Off-street parking and a decent, enclosed rear garden with patio and shed complete the practical outside space.
Set in a quiet cul-de-sac in a sought-after Whitehaven neighbourhood, the house sits in a very low-crime, affluent area close to several well-rated schools. Broadband and mobile signals are strong, gas central heating is installed and the property is freehold with no flood risk.
Notable constraints: the layout is spread across three floors, which may be less convenient for those with mobility needs. The overall size is described as average for four bedrooms, and the EPC rating C indicates moderate energy efficiency compared with newer-build standards. Buyers seeking a completely turnkey, single-level home should note these factors.











































































































































