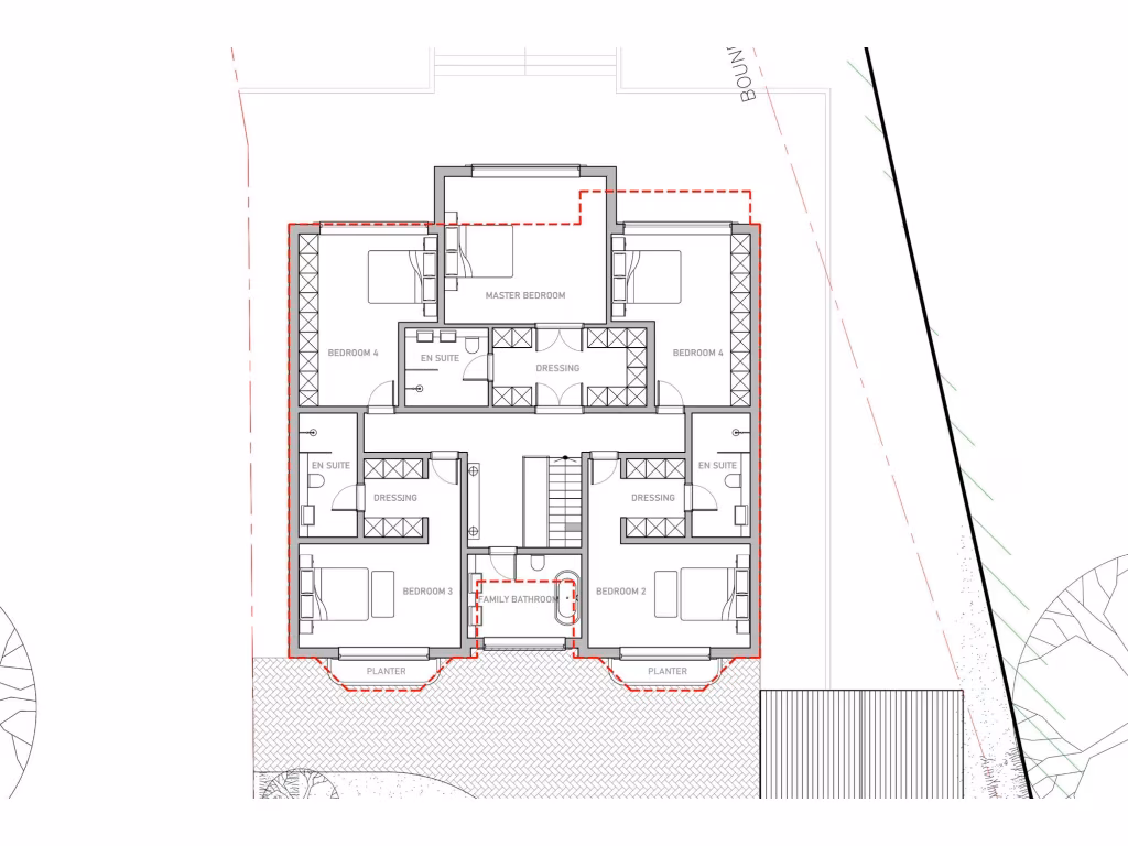
**Standout Features:**
- Full planning permission to construct a **4,000 sq ft**, **detached home**.
- Set on a **0.4-acre** plot with beautiful views over lakes and meadowland.
- Located in a quiet, affluent area with **very low crime** rates.
- Ample off-street parking available, offering excellent privacy with high hedgerows.
- Close proximity to local amenities and **highly-rated schools**.
**Summary:**
Seize the opportunity to craft your dream home in the charming Stock Village! This expansive **0.4-acre plot** comes with **full planning permission** to replace the existing dwelling with a stunning **4,000 sq ft detached residence**. Enjoy serene views of the neighboring lakes and meadows while being just a short walk from local shops and schools. The property boasts a large garden, ample off-street parking, and a peaceful rural atmosphere, perfect for families or those looking to retreat from the hustle and bustle of city life.
This is not just a property, but a canvas for your bespoke vision in a highly sought-after community. With the potential to create a modern Tudor masterpiece, or further customize the existing plans, don't miss out on this exceptional chance to establish your foothold in Stock Village. With planning already in place (and amendable), your future home awaits! Act quickly, as opportunities like this do not last long!
4 bedroom off-plan property for sale in New Farm Drive, Abridge, RM4 — £780,000 • 4 bed • 3 bath • 2917 ft²
4 bedroom semi-detached house for sale in Well Lane, Stock, CM4 — £950,000 • 4 bed • 2 bath • 1442 ft²
4 bedroom semi-detached house for sale in Swan Lane, Stock, Ingatestone, Essex, CM4 — £900,000 • 4 bed • 3 bath • 2065 ft²
3 bedroom detached house for sale in Mill Road, Stock, Ingatestone, Essex, CM4 — £950,000 • 3 bed • 2 bath • 1439 ft²
Land for sale in Mope Lane, Wickham Bishops, Witham, CM8 — £1,200,000 • 1 bed • 1 bath
4 bedroom semi-detached house for sale in Leather Bottle Hill, Stock, CM4 — £790,000 • 4 bed • 2 bath • 1589 ft²






































