Spacious four-bedroom bungalow on a large plot in picturesque Stoke Gabriel..
Sought-after Stoke Gabriel village location within South Devon AONB
Large wrap-around garden with patio and gravel seating area
Open-plan kitchen/living/dining room, contemporary interior
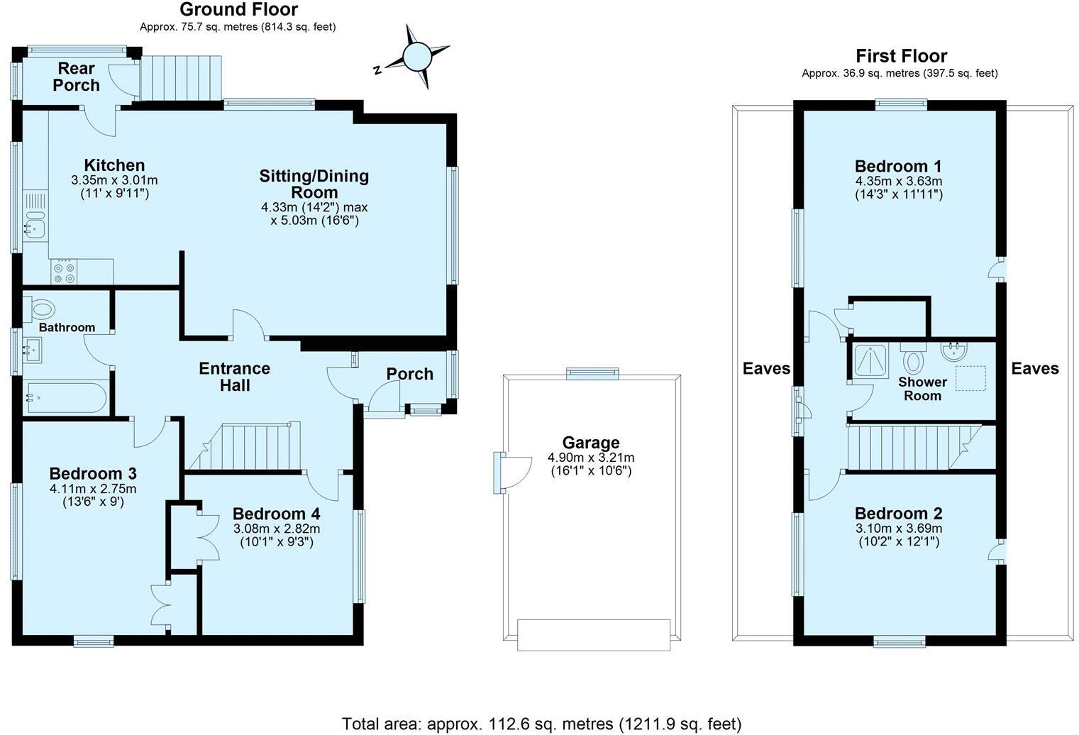
Four double bedrooms across two levels, flexible layout
Detached single garage plus gravel driveway parking
Potential to extend (subject to necessary consents)
Slow broadband speeds in the area
Very low local crime; mains gas central heating
Nestled in the sought-after village of Stoke Gabriel, this detached dormer bungalow sits on a large, private plot with a generous wrap-around garden and patio — ideal for family outdoor life. The house offers flexible accommodation: an open-plan kitchen/living/dining room and two ground-floor bedrooms (one could be a second reception), plus two double bedrooms and a shower room upstairs. Natural light fills the rooms and the interior presents a contemporary, well-presented finish.
The property suits families seeking village life within the South Devon AONB, with riverside access, local shops, active community groups and well-regarded schools close by. Practical features include a gravel driveway, detached single garage, mains gas heating with boiler and radiators, double glazing and very low local crime. Totnes and the A38 are accessible for wider commuting and rail links.
There is scope to extend subject to necessary consents, a realistic opportunity to increase living space or reconfigure accommodation for longer-term needs. Buyers should note broadband speeds are slow in this location and the garage is single-size; parking is otherwise available on the driveway. The house is freehold and in a peaceful, affluent neighbourhood — a solid family home with room to adapt.
3 bedroom detached bungalow for sale in Vicarage Road, Stoke Gabriel, TQ9 — £400,000 • 3 bed • 1 bath • 768 ft²
4 bedroom detached bungalow for sale in Body Hayes Close, Stoke Gabriel, TQ9 — £550,000 • 4 bed • 2 bath • 1660 ft²
4 bedroom semi-detached bungalow for sale in Pound Field, Stoke Gabriel, TQ9 — £375,000 • 4 bed • 2 bath • 1251 ft²
2 bedroom bungalow for sale in Pound Field, Stoke Gabriel, Totnes, TQ9 — £300,000 • 2 bed • 1 bath • 764 ft²
4 bedroom detached house for sale in Cator, Stoke Gabriel, TQ9 — £650,000 • 4 bed • 2 bath • 1559 ft²
3 bedroom bungalow for sale in New Road, Stoke Gabriel, Totnes, TQ9 — £500,000 • 3 bed • 2 bath • 1991 ft²


















































