Low‑running costs, smart connectivity and family space in a peaceful village setting.
2021-built detached family home with 6 years NHBC warranty remaining|Solar panels with 11.5kW battery and EV charging reduce bills|Large 28' open-plan kitchen/diner with twin French doors|16' dual-aspect sitting room plus separate study room|Four double bedrooms; main bedroom with ensuite and integrated wardrobes|Double garage, vast driveway; private south-facing landscaped garden|CAT8 hard-wired internet (2Gb to every room) and boarded loft for conversion|Council tax above average; local crime levels higher than average
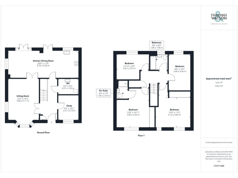
Built in 2021 and set back from the road overlooking green space, this detached four-bedroom family home delivers modern, low-carbon living with strong practical benefits. The house is covered by six years of NHBC warranty and comes with solar panels plus an 11.5kW battery, an EV charging point and CAT8 wired internet to every room — features that reduce running costs and future-proof connectivity.
Internally the layout suits family life: a wide entrance hall, dual-aspect 16' sitting room, separate study and a generous 28' open-plan kitchen/dining area with twin French doors onto a south-facing landscaped garden. All four bedrooms are doubles, the main bedroom has integrated wardrobes and an ensuite, and there is a fully boarded loft with lighting and sockets offering storage or conversion potential.
Outside, the property occupies a large plot with a substantial private driveway and detached double garage. The rear garden is private, landscaped and south-facing, positioned for daytime sun and outdoor dining. Local schools rated Good–Outstanding are within reach and the setting reads as a quiet village neighbourhood with treed views beyond.
A few practical points to note: council tax is above average for the area and local crime statistics are higher than typical, which may matter to some buyers. The house is an average-sized family home rather than a large executive villa, but its recent build quality, low running costs and smart technology make it a strong option for families seeking modern convenience and low maintenance.
4 bedroom detached house for sale in Icarus Rise, Costessey, Norwich, NR5 — £425,000 • 4 bed • 3 bath • 1360 ft²
4 bedroom detached house for sale in Elham Road, Rackheath, Norwich, NR13 — £399,950 • 4 bed • 2 bath • 1005 ft²
3 bedroom town house for sale in Ascension Avenue, Costessey, Norwich, NR5 — £300,000 • 3 bed • 2 bath • 1040 ft²
5 bedroom detached house for sale in Poppy Street, Wymondham, NR18 — £525,000 • 5 bed • 3 bath • 1693 ft²
4 bedroom detached house for sale in Brentwood, Eaton, Norwich, NR4 — £500,000 • 4 bed • 2 bath • 1121 ft²
4 bedroom detached house for sale in Icarus Rise, Norwich, NR5 — £425,000 • 4 bed • 2 bath • 1360 ft²


































































































































