Victorian mid-terrace with high ceilings and original features
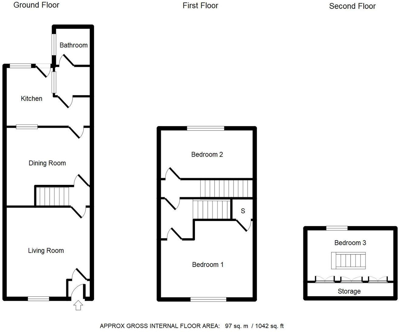
Three bedrooms across three floors; flexible room uses
Private off-street parking via rear up-and-over garage door
Low-maintenance rear garden, small frontage
Single downstairs bathroom only; one bathroom for three bedrooms
Solid brick walls assumed with no cavity insulation
Area classified as deprived; local services and transport convenient
Fast broadband and excellent mobile signal, very low crime
A deceptively spacious three-bedroom Victorian mid-terrace on Bolton Road offering period charm and practical living across three floors. High ceilings, a feature fireplace and sash windows retain original character while living spaces flow from front reception to dining room and kitchen at the rear.
The house includes private off-street parking with an up-and-over garage door and a low-maintenance rear garden — useful assets in this area. The accommodation is arranged over three floors with a ground-floor bathroom and useful eaves storage on the top floor, giving flexible options for families or home-workers.
Some updating and refurbishment are needed: walls are solid brick with no installed cavity insulation, and the property shows signs of age that will benefit from improvement works. The location provides fast broadband, excellent mobile signal, very low local crime and convenient access to Bury town centre, shops and schools, making this a solid purchase for first-time buyers or buyers wanting renovation potential with immediate rental or owner-occupation possibilities.



























































































































