**Standout Features:**
- Planning permission granted for a separate 3-bedroom dwelling
- Immaculate condition end-of-terrace house
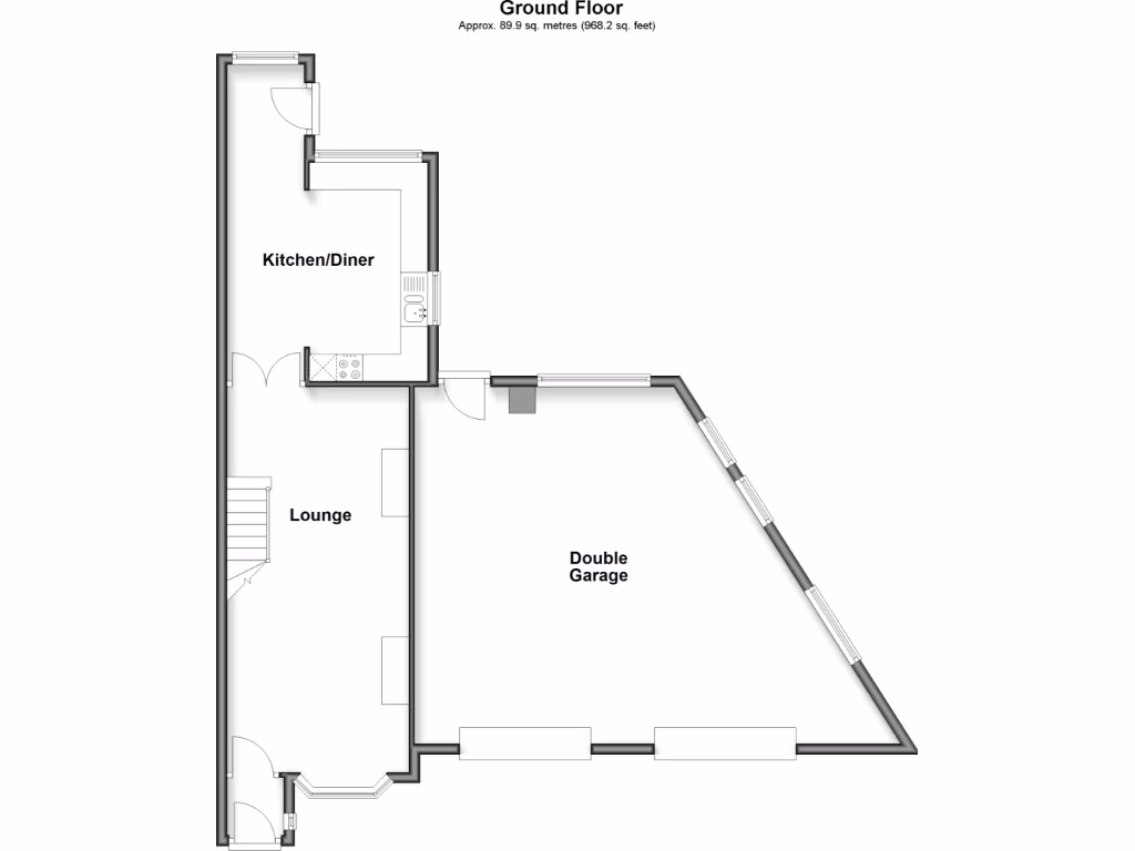
- Spacious double garage
- Prime location: walking distance to mainline station and Medway Hospital
- Family-friendly layout with multiple bedrooms
**Summary:**
This immaculate end-of-terrace 2/3-bedroom house, situated in the heart of Medway (ME7 4RS), is perfect for families or remote workers seeking extra space and versatility. Boasting a spacious living area alongside a well-appointed kitchen/diner, this home is ideal for family gatherings and entertaining. The potential for extending with the granted planning permission for a separate 3-bedroom dwelling enhances its appeal for those looking to invest or grow their living space.
The property features a welcoming porch, a double garage, and well-sized bedrooms, including an en-suite in Bedroom 3. Its proximity to a bustling mainline station and local amenities makes it both convenient and accessible for daily commutes and family needs. While it is currently in pristine condition, potential buyers should note the average local crime rate and the home’s age, which may require future updates and insulation improvements. This unique opportunity won’t last long—envision creating your dream space today!
3 bedroom end of terrace house for sale in Gillingham Road, Gillingham, Kent, ME7 — £275,000 • 3 bed • 1 bath • 974 ft²
3 bedroom terraced house for sale in Westmount Avenue, Chatham, Kent, ME4 — £375,000 • 3 bed • 2 bath • 1131 ft²
3 bedroom semi-detached house for sale in Hardy Close, Walderslade, Chatham, Kent, ME5 — £350,000 • 3 bed • 1 bath • 776 ft²
3 bedroom terraced house for sale in The Fort, Rochester, Kent, ME1 — £450,000 • 3 bed • 1 bath • 819 ft²
3 bedroom semi-detached house for sale in Ingle Road, Chatham, Kent, ME4 — £325,000 • 3 bed • 1 bath • 694 ft²
3 bedroom terraced house for sale in Rochester Street, Chatham, Kent, ME4 — £325,000 • 3 bed • 1 bath • 948 ft²














































