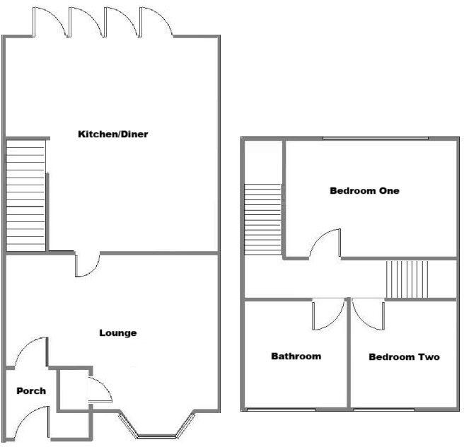
Two-bedroom terrace with modern kitchen and usable loft—ideal for a small family.
Extended kitchen/diner with bi-fold doors to the garden
Set back in a quiet cul-de-sac, this mid‑terrace two-bedroom house offers practical family living with an extended kitchen/diner and bi-fold doors that open onto the rear garden. The ground floor lounge with a front bay window gives a comfortable reception space while the modern kitchen creates a flexible dining and entertaining area. A usable loft provides extra storage or potential conversion (subject to approvals).
The property is freehold and benefits from modern double glazing, gas central heating and a low council tax band A, helping running costs. There is scope to create off‑street parking or a driveway to the front and the rear garden includes a decked patio, lawn and a summer house with useful storage.
Notable drawbacks include a small plot and compact second bedroom, so it is best suited to a small family or buyers seeking a manageable home. The house dates from the 1930s–1940s and walls are likely uninsulated (solid brick construction), which could mean additional insulation work if being improved. The immediate area is classified as very deprived, so buyers should consider wider neighbourhood factors alongside the home’s internal benefits.
Overall this is a straightforward, well-presented family home with immediate liveability and clear potential to improve value through modest upgrades such as loft conversion, insulation and creating off‑street parking.
2 bedroom terraced house for sale in Tustin Grove, Birmingham, West Midlands, B27 — £210,000 • 2 bed • 1 bath • 1001 ft²
3 bedroom terraced house for sale in Culey Green Way, Sheldon, B26 — £265,000 • 3 bed • 1 bath • 829 ft²
2 bedroom terraced house for sale in The Avenue, Acocks Green, B27 — £220,000 • 2 bed • 1 bath • 905 ft²
2 bedroom terraced house for sale in Mill Lane, Bentley Heath, B93 — £375,000 • 2 bed • 1 bath • 1131 ft²
2 bedroom terraced house for sale in Arkley Grove, Hall Green, B28 — £200,000 • 2 bed • 1 bath • 625 ft²
3 bedroom terraced house for sale in Palmers Grove, Birmingham, B36 — £200,000 • 3 bed • 1 bath • 834 ft²










































































