Approved plans and warrant for an immediate self-build project in tranquil farmland.
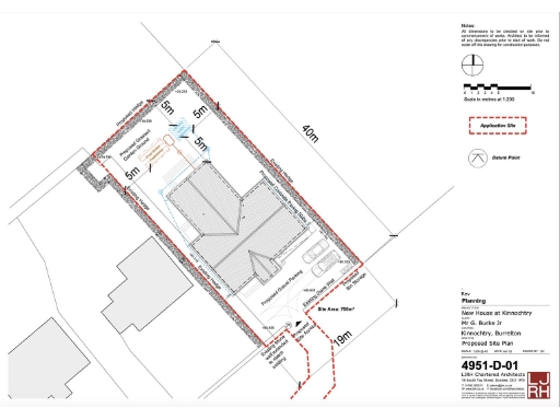
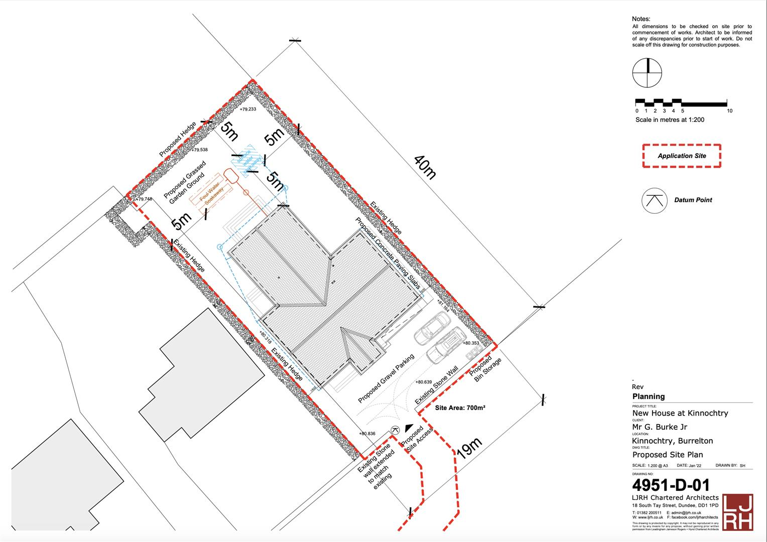
- Full planning permission and building warrant approved (ref 22/01021/DOM2)
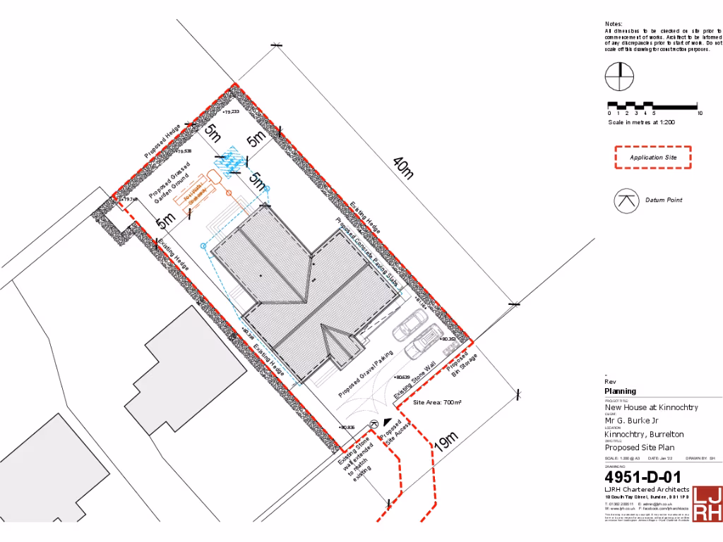
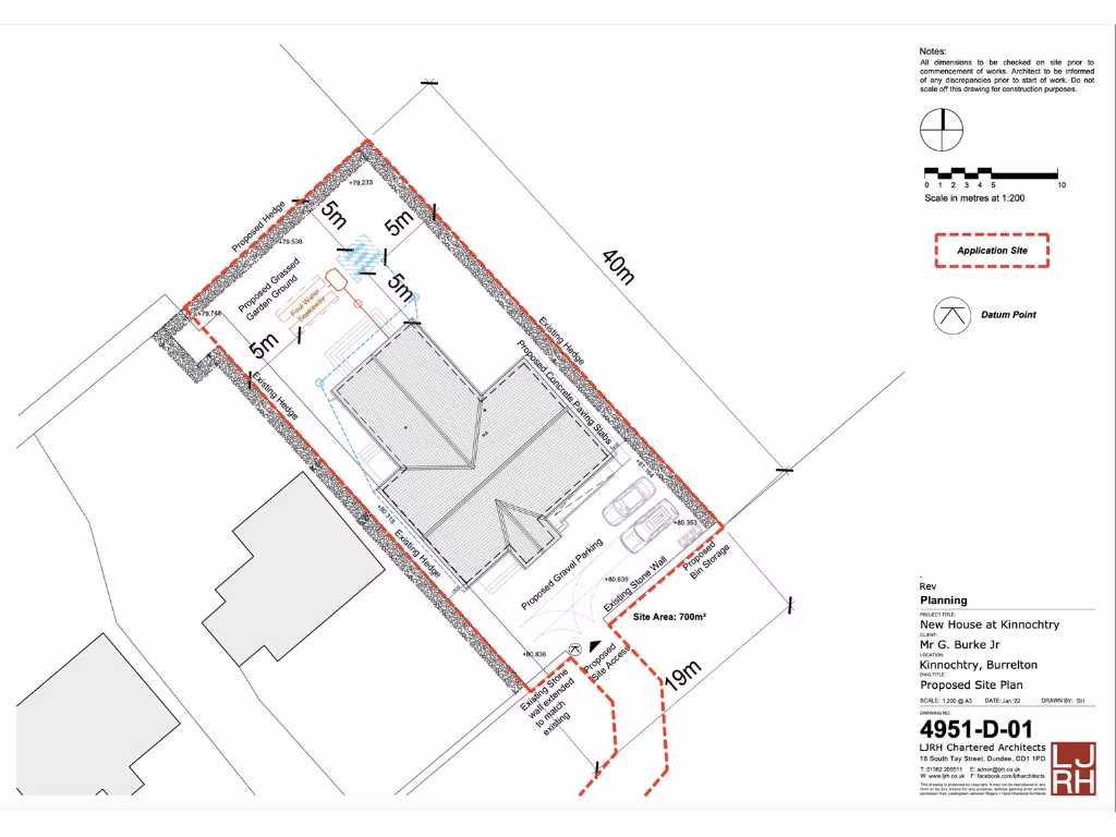
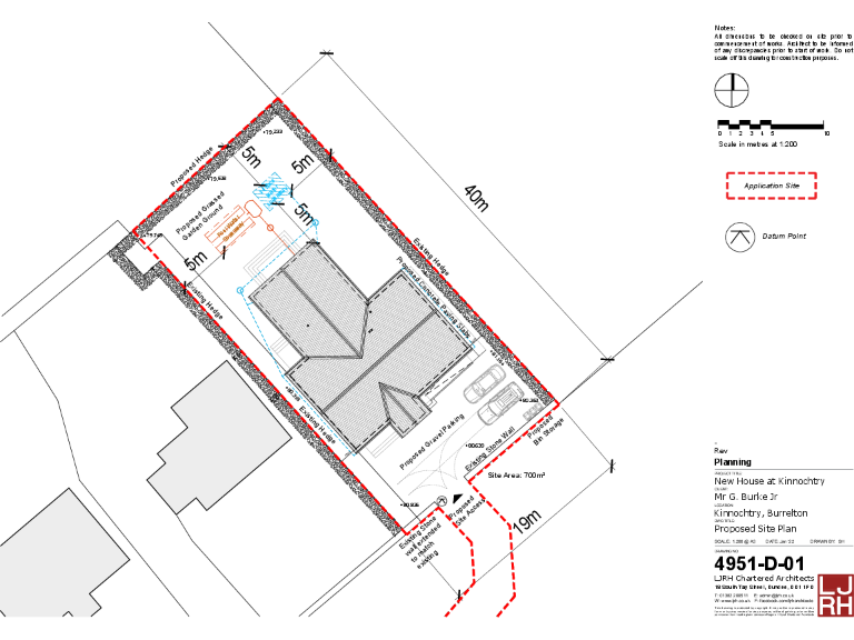
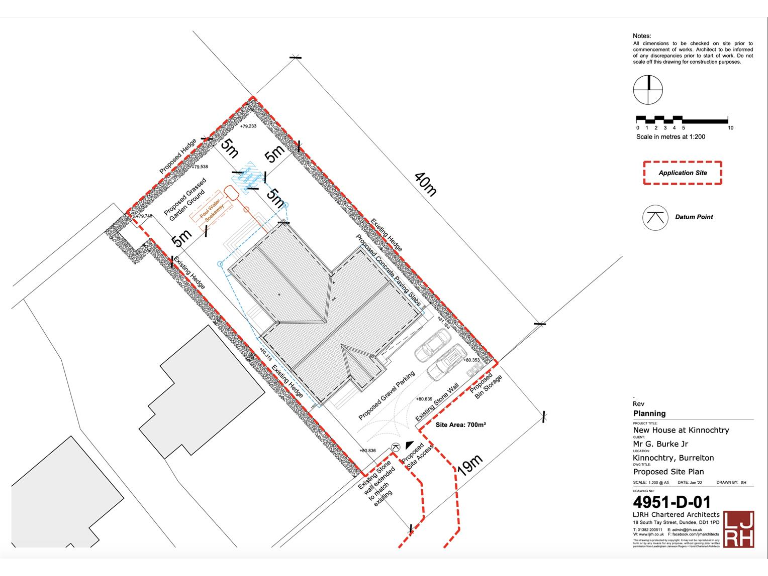
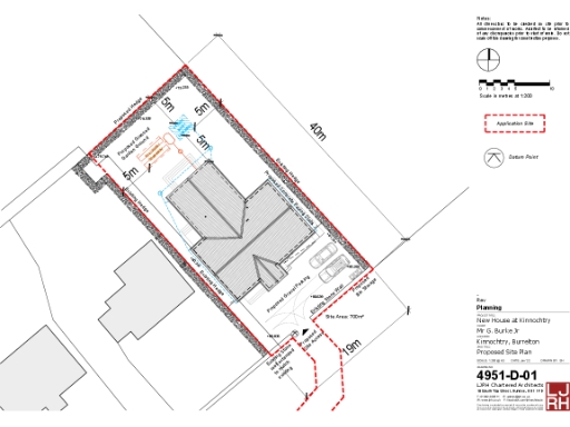
- Plot approx 700m² (about 7,535 sq ft), level and fenced
- Water on site; electricity located nearby (connection required)
- School fees paid to the local authority
- No flood risk recorded for the site
- Very slow broadband and average mobile signal
- Remote location with limited local amenities and transport
- Freehold tenure; suitable for immediate build start
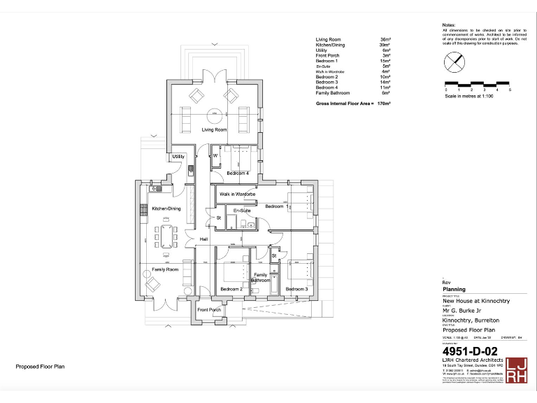
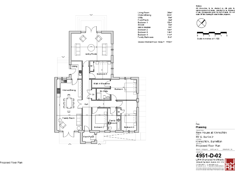
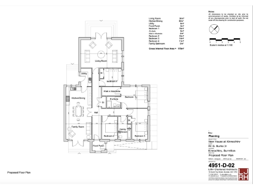
A rare ready-to-build plot in a peaceful rural setting near Coupar Angus, offered with full detailed planning permission and an approved building warrant for a detached four-bedroom bungalow (Planning ref: 22/01021/DOM2). The site is approximately 700m² (about 7,535 sq ft), level, and bordered by hedging and fencing, giving clear boundaries and immediate scope for landscaping and garden design.
Practical services are partly in place: water is on site and electricity is available nearby, allowing construction to start quickly once connections are arranged. School contribution fees to the local authority have been paid, and there is no identified flood risk. Drive-by viewings are welcome, making it easy to inspect the setting and plot orientation at your convenience.
Considerations: broadband speeds are very slow and mobile signal is average — important for home working or streaming. The local area is classified as very deprived and relatively remote, so amenities and public transport are limited; this plot will suit buyers who prioritise countryside living or developers targeting self-build purchasers rather than those needing immediate urban conveniences.
This is a straightforward opportunity for a developer or self-builder who wants an approved start point in attractive countryside. The combination of planning permission and building warrant reduces early-stage uncertainty and allows work to begin promptly once services are connected and procurement is arranged.
Land for sale in ViewfIeld Lane, Off Station Road, Stanley, Perth, PH1 — £99,950 • 1 bed • 1 bath
Plot for sale in Plot at The Oaks, The Oaks, Moneydie, Luncarty, PH1 — £145,000 • 1 bed • 1 bath
Land for sale in 20 Metres North Of Wilmarean Fairview, Luncarty, Perth, PH1 — £110,000 • 1 bed • 1 bath
Land for sale in Burngrange Plots X3, Coupar Angus, Blairgowrie, Perth and Kinross, PH13 — £90,000 • 1 bed • 1 bath • 23522 ft²
Land for sale in Residential Development Opportunity, Land At Forfar Road, Blairgowrie, Perthshire, PH13 — £1,200,000 • 1 bed • 1 bath
Land for sale in Viewfield Lane, Off Station Road, Stanley, Perth, PH1 — £99,950 • 1 bed • 1 bath














































































