**Standout Features:**
- Chain free with no onward chain
- Spacious three-bedroom layout over three floors
- Large two-room cellar for additional storage or renovation potential
- Low-maintenance garden with ample sunlight
- Proximity to major motorway links (M62 and M1)
- Excellent local schools with strong Ofsted ratings for families
**Potential Concerns:**
- Some areas, including the living room, may require modernization and upgrades
- Structural insulation is not assumed in the solid brick walls
- Above-average crime rate in the local area
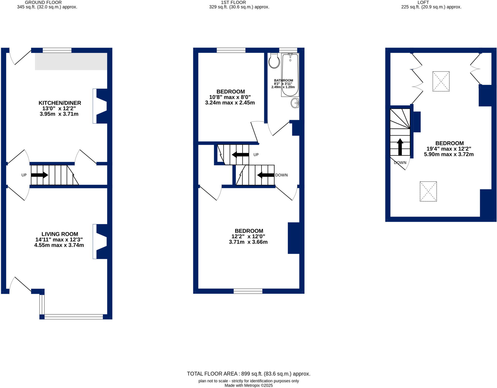
This Victorian terraced house offers a unique blend of space and potential, perfect for first-time buyers or savvy investors. With an inviting living room featuring a classic fireplace and a kitchen that opens onto a sunlit rear garden, the home has a warm and welcoming feel. The property's layout includes two generously sized bedrooms on the first floor, with a fantastic third bedroom on the second floor, making it ideal for families. The large cellar provides ample storage or options for future renovation.
Located in an urban area rich with cultural diversity and just moments away from major road networks, this home stands out not only for its spacious accommodation but also for its accessibility. Local primary and secondary schools with strong ratings add to its appeal for families. However, potential buyers should be prepared for some modernization, particularly in the living space, and be aware of the local crime statistics.
With a competitive price of £135,000 and the flexibility for future enhancements, this property is attractively priced and won’t last long on the market. An early viewing is highly recommended to appreciate the possibilities that await in this promising home.
3 bedroom terraced house for sale in Woodview Street, Leeds, West Yorkshire, LS11 — £120,000 • 3 bed • 1 bath • 754 ft²
2 bedroom end of terrace house for sale in Garnet Avenue, Leeds, West Yorkshire, LS11 — £125,000 • 2 bed • 1 bath
4 bedroom terraced house for sale in Crosby View, Leeds, West Yorkshire, LS11 — £155,000 • 4 bed • 1 bath • 951 ft²
3 bedroom terraced house for sale in Parkfield Grove, Leeds, West Yorkshire, LS11 — £160,000 • 3 bed • 1 bath • 948 ft²
3 bedroom terraced house for sale in Marsden Place, Leeds, West Yorkshire, LS11 — £160,000 • 3 bed • 1 bath • 935 ft²
2 bedroom terraced house for sale in Garnet Terrace, Leeds, West Yorkshire, LS11 — £125,000 • 2 bed • 1 bath • 744 ft²














































