**Standout Features:**
- Spectacular 180-degree views of the Bristol Channel
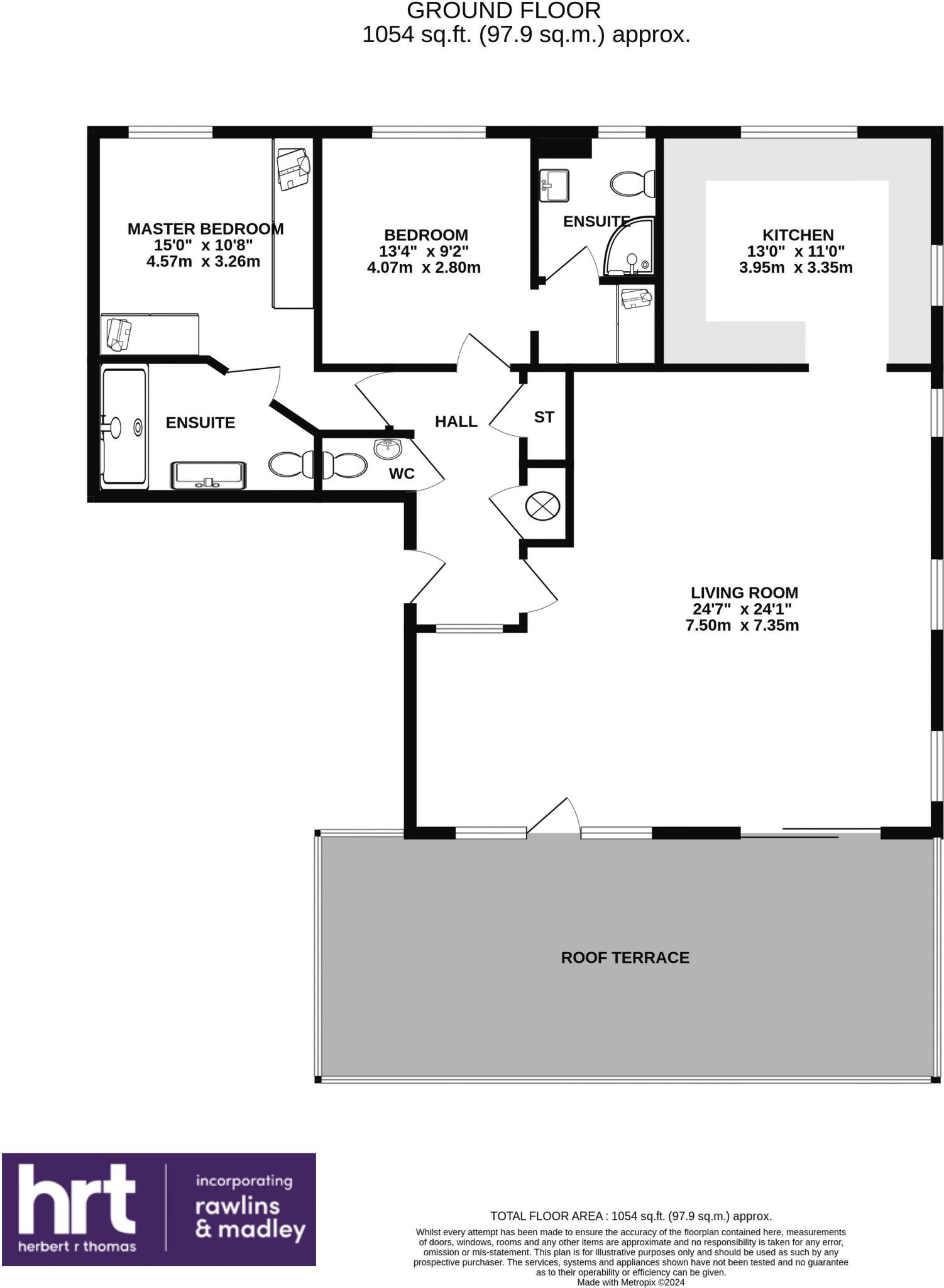
- Spacious top-floor penthouse with large roof terrace ideal for entertaining
- Modern fitted kitchen with high-quality appliances and abundant storage
- Two double bedrooms, each with luxurious en-suite bathrooms
- Ample off-street parking and access to communal gardens
- Private lift access to the apartment
**Concise Overview:**
Elevate your coastal living experience with this exceptional top-floor penthouse in Ogmore-by-Sea. Spanning over 1,054 sq ft, this modern apartment features a spacious lounge and dining area that seamlessly connects to a generous roof terrace, offering breathtaking panoramic views of the Bristol Channel—perfect for entertaining or enjoying serene sunsets. The sleek kitchen boasts fitted appliances and extensive storage, while two double bedrooms come with en-suite bathrooms for ultimate comfort and privacy. With a private landing serviced by a lift, ample parking, and beautifully designed communal gardens, this residence is an oasis of tranquility that balances convenience with stunning coastal living.
Located in a picturesque village with access to shops, coastal trails, and esteemed local schools, this property presents a rare opportunity for both families and investors. Act quickly to secure this unique home, as its prime position and luxurious features are not likely to remain on the market for long! Note: Future renovations and personal touches could enhance the already substantial living experience.
2 bedroom apartment for sale in Slon Lane, Ogmore-By-Sea, Bridgend, CF32 — £499,950 • 2 bed • 2 bath • 862 ft²
2 bedroom apartment for sale in Slon Lane, Ogmore-By-Sea, Vale Of Glamorgan, CF32 — £425,000 • 2 bed • 2 bath • 811 ft²
2 bedroom apartment for sale in Apartment 6, Horizon, Slon Lane, Ogmore By Sea, Vale of Glamorgan, CF32 0PN, CF32 — £425,000 • 2 bed • 2 bath • 957 ft²
2 bedroom apartment for sale in Esplanade, Porthcawl, CF36 — £530,000 • 2 bed • 2 bath • 1133 ft²
2 bedroom apartment for sale in Slon Lane, Ogmore-By-Sea, Vale of Glamorgan, CF32 — £425,000 • 2 bed • 2 bath • 995 ft²
2 bedroom apartment for sale in Apartment 6, Y Graig, Ogmore By Sea, CF32 0QN, CF32 — £219,950 • 2 bed • 2 bath • 960 ft²










































































































































