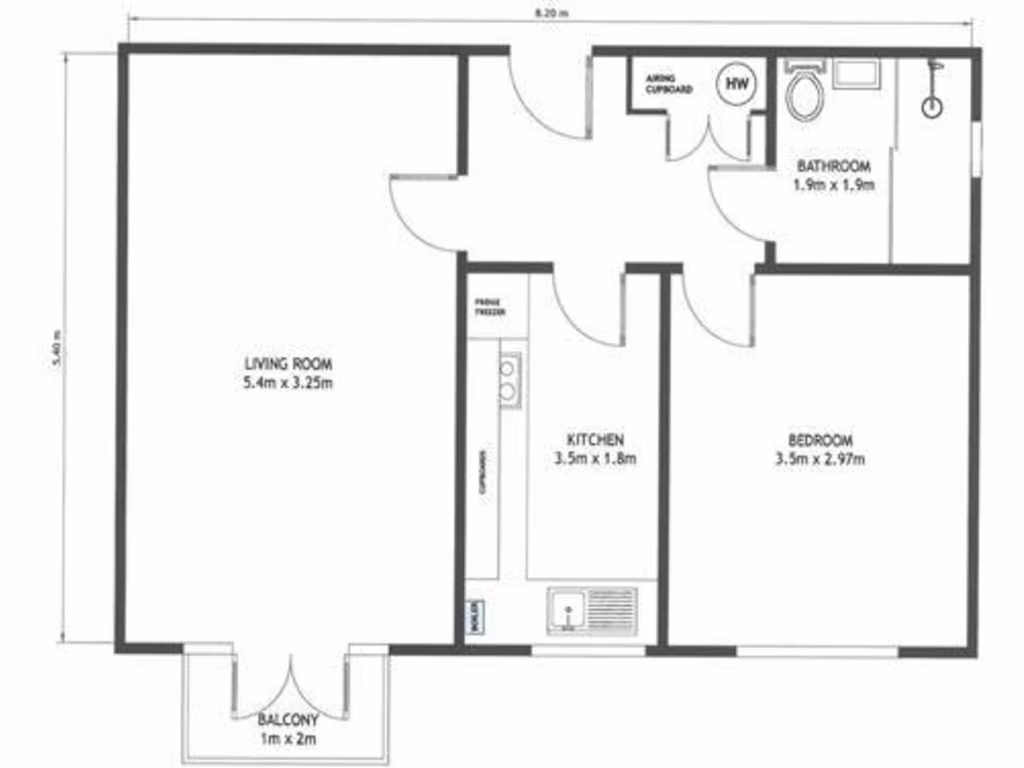
**Property Highlights:**
- 1 bedroom retirement flat located on the third floor
- Fitted kitchen and bathroom
- Access to communal living room, laundry room, and gardens
- Chain-free sale
- 99-year lease upon completion
- Minimum age restriction of 55 years for residents
- Affordable home ownership scheme available (70% of market value)
- Council Tax Band B (£1,428.12/year); Service Charge (£2,328.96/year)
This inviting one-bedroom retirement flat in Hyde Court is situated on the third floor, presenting a perfect opportunity for those aged 55 and over to enjoy a comfortable lifestyle. The property features a fitted kitchen and a bright bathroom, all in good decorative order, enhancing its move-in readiness. Residents benefit from direct access to beautifully maintained communal gardens and thoughtfully-designed shared areas like a living room and laundry facilities.
Conveniently located just 0.5 miles from Whetstone High Road, you’ll find a range of shopping options and the Northern Line Tube Station within reach, along with bus routes passing right outside. This flat is part of an affordable home ownership scheme, allowing you to purchase 70% of the market value, making it an appealing choice for first-time buyers or those looking to downsize. Please note the property is reasonably priced for its size and location, but keen buyers should act quickly as properties in this popular retirement development do not stay on the market for long.
While currently in good condition, there are opportunities for personal touches and updates, particularly in the living areas. The area is known for its community feel, relatively low crime rate, and access to reputable schools, making it a secure and desirable place to call home. Don’t miss the chance to secure a peaceful retirement space that combines comfort, community, and convenient access to local amenities!
1 bedroom retirement property for sale in Friern Barnet Lane, London, N20 — £105,000 • 1 bed • 1 bath • 474 ft²
1 bedroom retirement property for sale in Friern Barnet Lane, London, N20 — £150,500 • 1 bed • 1 bath • 397 ft²
1 bedroom retirement property for sale in Friern Barnet Lane, Whetstone, N20 — £161,000 • 1 bed • 1 bath • 408 ft²
1 bedroom retirement property for sale in Friern Barnet Lane, London, N20 — £150,000 • 1 bed • 1 bath • 440 ft²
1 bedroom retirement property for sale in Friern Barnet Lane, London, N20 — £150,000 • 1 bed • 1 bath • 474 ft²
1 bedroom retirement property for sale in Friern Barnet Lane, London, N20 — £150,500 • 1 bed • 1 bath • 426 ft²


































