Ideal starter home or buy-to-let near parks and excellent transport links.
Riverside location opposite the River Taff
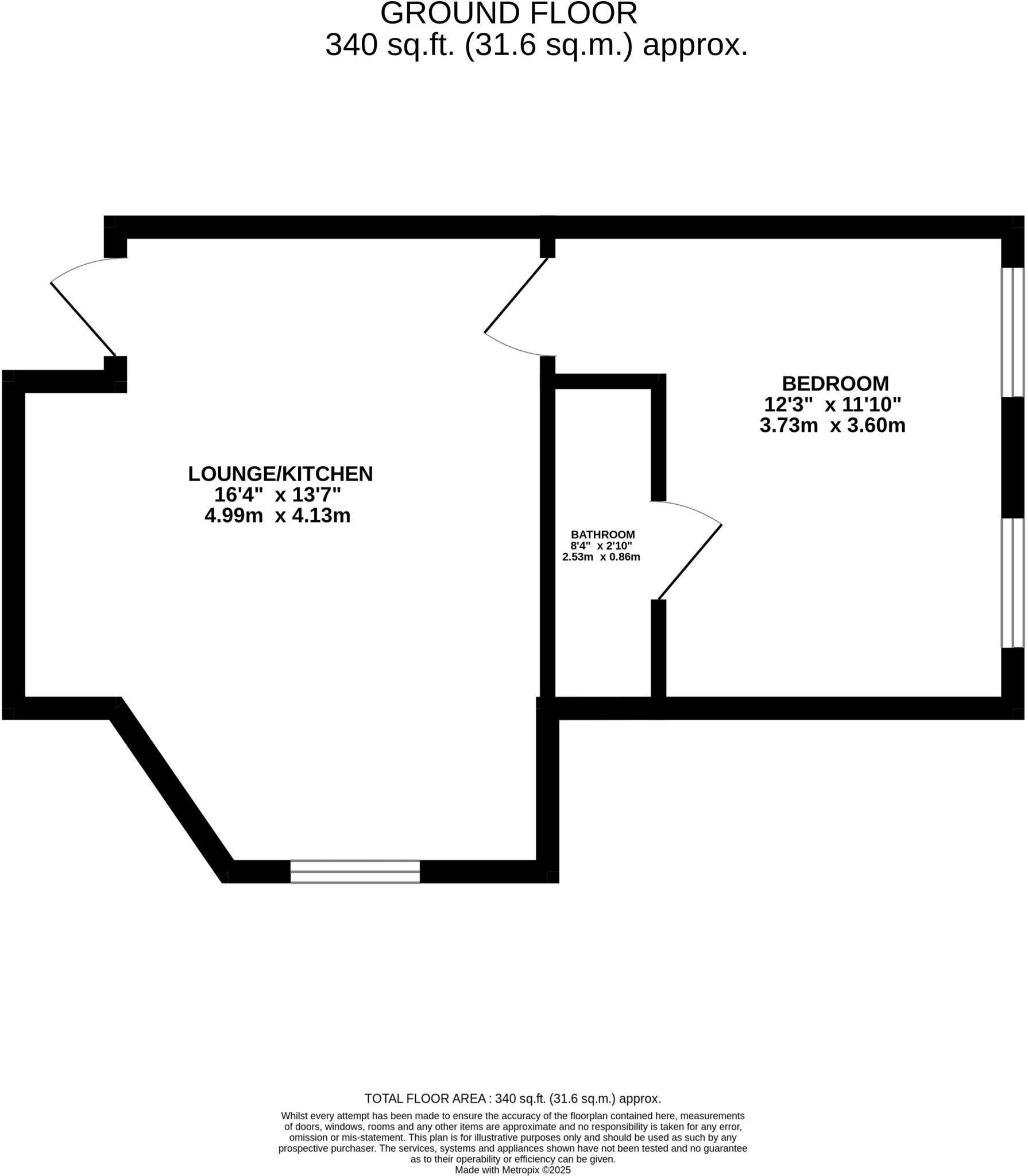
Quietly positioned opposite the River Taff, this compact one-bedroom apartment offers a practical, chain-free entry into Cardiff living. The open-plan kitchen and lounge make efficient use of the 340 sq ft footprint, while a double bedroom and modern shower room complete the accommodation. Loft storage and a communal bike store add useful space for belongings and equipment.
The location is a genuine selling point: riverside walking and cycling routes are outside the door, parks such as Grange Gardens and Llandaff Fields are within easy reach, and Cardiff Central is around a 15-minute walk for regular rail services. Local shops, cafés and bus routes on Penarth Road keep day-to-day life convenient for commuters and leisure seekers.
Practical facts to note: the property is leasehold with a very long lease (977 years) and is offered chain free, making purchase straightforward. The building dates from the early 20th century and retains period character, but solid brick construction likely lacks cavity insulation which could affect thermal performance. Double glazing is fitted though the installation date is unknown. The area scores as very deprived locally, which may influence future values and rental demand.
This flat suits a first-time buyer seeking an affordable, well-located home or an investor after a compact buy-to-let near strong transport links. Expect modest living space and some running-cost considerations; the apartment nevertheless delivers convenient riverside living and easy access to the city centre.
1 bedroom ground floor flat for sale in Taff Embankment, Cardiff, CF11 — £130,000 • 1 bed • 1 bath • 506 ft²
1 bedroom flat for sale in Penstone Court, Chandlery Way, Cardiff, Caerdydd, CF10 — £185,000 • 1 bed • 1 bath • 722 ft²
1 bedroom flat for sale in Taff Embankment, Cardiff, CF11 — £100,000 • 1 bed • 1 bath • 366 ft²
1 bedroom apartment for sale in Hansen Court, Cardiff Bay, Cardiff, South Glamorgan, CF10 — £108,000 • 1 bed • 1 bath • 355 ft²
1 bedroom flat for sale in Hansen Court, Century Wharf, Cardiff Bay, CF10 — £145,000 • 1 bed • 1 bath • 487 ft²
2 bedroom apartment for sale in Grangemoor Court, Cardiff, CF11 — £250,000 • 2 bed • 2 bath • 614 ft²






































