Spacious modern family home with flexible living and attractive garden pergola.
Three double bedrooms including principal ensuite and built-in wardrobes
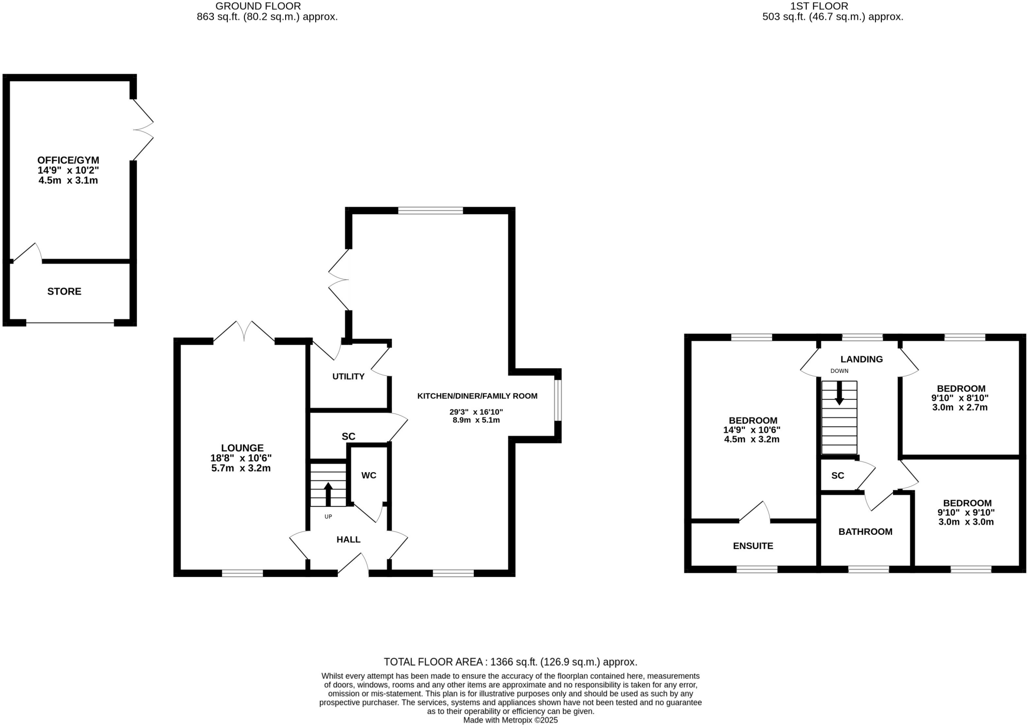
A modern detached Mulberry home built in 2021, this three-double-bedroom property sits on the edge of Clifton village and offers generous family living across circa 1,402 sq ft. The house centres on a 29ft open-plan kitchen/dining/family room with integrated appliances and LVT flooring, plus a separate lounge with a media wall and French doors to the patio — ideal for everyday family life and informal entertaining.
Upstairs are three well-proportioned double bedrooms, the principal with built-in wardrobes and an ensuite. Practical spaces include a dedicated utility room and a converted garage currently fitted out as a gym/home office, giving flexible workspace but removing traditional garage storage/parking.
Outside features are strong: a paved patio with a timber and slate-covered pergola for alfresco dining, faux lawn and raised borders, plus a driveway for two cars. The plot is a decent size and the property presents in immaculate condition, with good broadband and mobile signal and no flood risk.
Material facts: the property is freehold but carries a ground charge currently £400 per annum and council tax is above average. The converted garage reduces covered parking and storage; buyers wanting a full garage will need to reinstate or adapt the current layout. Otherwise this is a low-maintenance, modern family home in a comfortable neighbourhood with nearby good-rated schools.
4 bedroom detached house for sale in Harwood Lane, Clifton , SG17 — £690,000 • 4 bed • 2 bath • 1500 ft²
3 bedroom detached house for sale in Elm Farm Close, Clifton, Shefford, SG17 — £415,000 • 3 bed • 1 bath • 999 ft²
5 bedroom detached house for sale in Church Street, Clifton, Shefford, SG17 — £1,350,000 • 5 bed • 3 bath • 2207 ft²
5 bedroom detached house for sale in Church Street, Clifton, Shefford, Bedfordshire, SG17 — £1,350,000 • 5 bed • 3 bath • 2753 ft²
4 bedroom detached house for sale in Fairground Way, Clifton, Shefford, Bedfordshire, SG17 — £725,000 • 4 bed • 2 bath • 1700 ft²
4 bedroom detached house for sale in Clifton, Shefford, SG17 — £800,000 • 4 bed • 3 bath • 1732 ft²






















































































































