Well-presented first-floor flat with private parking and strong EPC B.
Allocated private off-street parking space
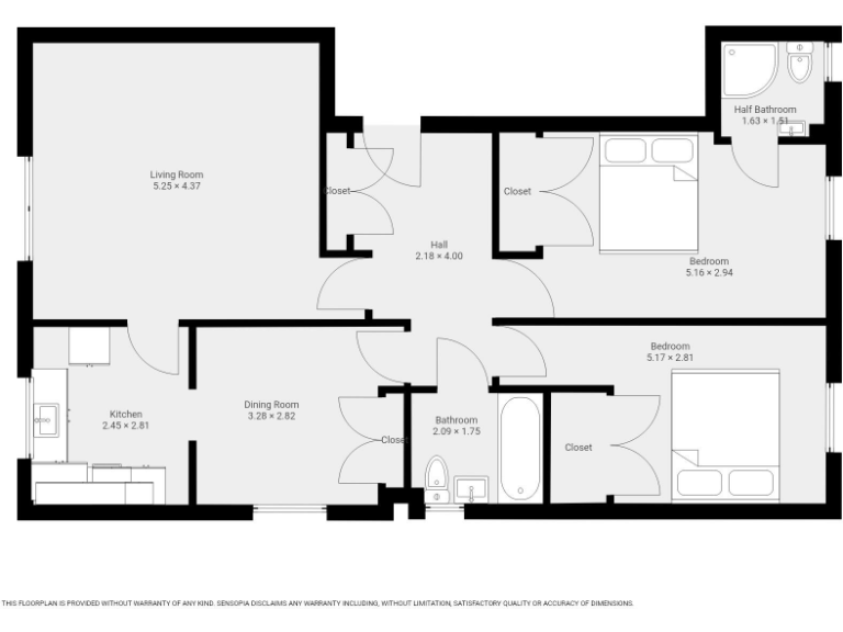
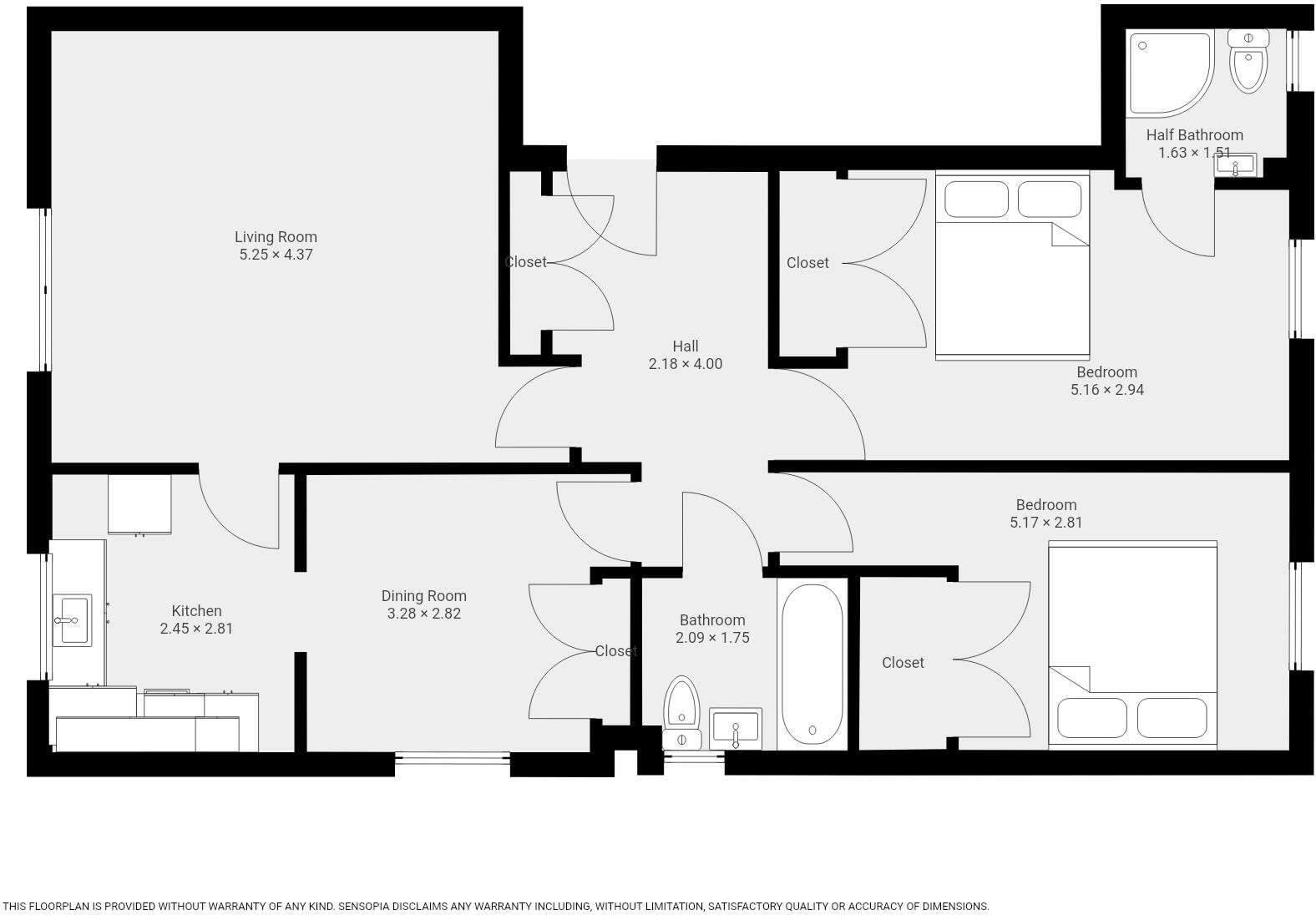
This bright first-floor flat offers an easy-entry home in Lanark, close to the town centre and main transport links. The layout includes a generous living room, separate dining room, two double bedrooms (one with ensuite) and a fitted kitchen — all presented in walk-in condition and neutrally finished for immediate occupation.
Practical benefits include an allocated off-street parking space, gas central heating, double glazing throughout and a strong EPC B rating. The flat is freehold and sits in a small multi-flat block, making it suitable for first-time buyers looking for a low-hassle home or investors targeting reliable rental demand in a well-served town.
Be aware of a few material points: room footprints are small-to-average for a two-bedroom property, so buyers seeking large, open-plan living may find the space compact. External images show some roof/repointing wear on the building that will require attention at block level in the future. The wider area profile records higher deprivation despite nearby amenities, which could affect long-term capital growth for some buyers.
Overall this is a practical, well-presented starter home with private parking and easy access to local shops, services and transport. It suits purchasers prioritising convenience and move-in readiness, and those who want a straightforward property with modest running costs and good energy performance.
2 bedroom flat for sale in Hyndford Road, Lanark, ML11 — £168,000 • 2 bed • 1 bath • 688 ft²
2 bedroom apartment for sale in St. Leonard Street, Lanark, ML11 — £124,995 • 2 bed • 2 bath
1 bedroom apartment for sale in St Vincent Place, Lanark, ML11 — £79,500 • 1 bed • 1 bath
1 bedroom flat for sale in Bannatyne Street, Lanarkshire, Lanark, ML11 — £60,000 • 1 bed • 1 bath
1 bedroom flat for sale in Castlegate, Lanark, ML11 — £84,000 • 1 bed • 1 bath • 487 ft²
2 bedroom flat for sale in Smyllum Road, Lanark, ML11 — £54,995 • 2 bed • 1 bath • 738 ft²










































































