Chain-free starter home near Ash Vale station, ready for modernisation.
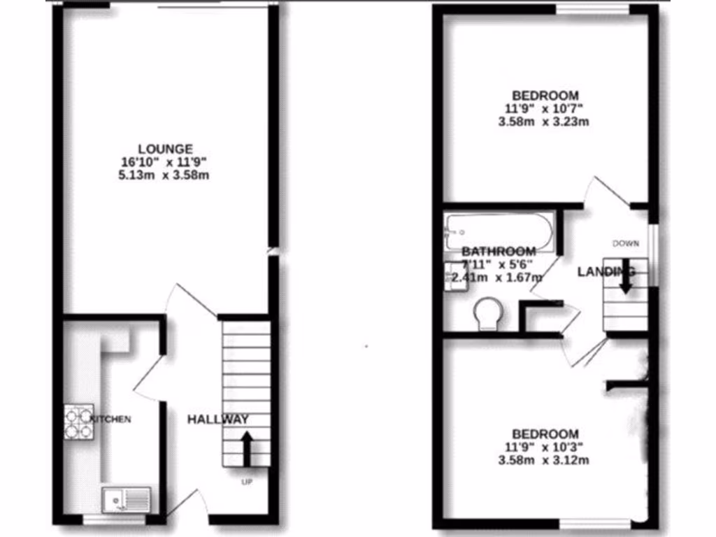
Freehold two-bedroom mid-terrace in cul-de-sac
This freehold mid-terrace house offers a practical two-double-bedroom layout in a quiet cul-de-sac close to Ash Vale station. The ground floor provides a light lounge/diner with direct garden access and a separate kitchen with good storage; upstairs are two well-proportioned double bedrooms and a single family bathroom. EPC C (76) and mains gas central heating provide reasonable running costs, and council tax band C keeps ongoing charges affordable.
Outside there is a private rear garden with direct access to a single garage fitted with power and lighting, plus resident parking nearby. The plot and internal footprint are modest—486 sq ft overall—so the property suits buyers seeking an entry-level home or a buy-to-let opportunity in an Achieving neighbourhood with good local schools.
The house is offered with no onward chain, which simplifies a quick sale, but the interior shows a late-20th-century finish and would benefit from cosmetic updating, particularly the compact dated kitchen. The garden is narrow/long and the accommodation is compact, so buyers needing generous living space should note the size limits. Overall, the home delivers practical commuter convenience and clear potential for value-adding improvements.
1 bedroom terraced house for sale in Avondale, Ash Vale, Surrey, GU12 — £210,000 • 1 bed • 1 bath • 388 ft²
2 bedroom terraced house for sale in The Beeches, Ash Vale, Guildford, Surrey, GU12 — £400,000 • 2 bed • 1 bath • 738 ft²
2 bedroom end of terrace house for sale in Alder Close, Ash Vale, Aldershot, GU12 — £315,000 • 2 bed • 1 bath • 786 ft²
3 bedroom end of terrace house for sale in Derry Close, Ash Vale, Surrey, GU12 — £415,000 • 3 bed • 2 bath • 629 ft²
2 bedroom end of terrace house for sale in Shackleton Close, Ash Vale, Surrey, GU12 — £350,000 • 2 bed • 2 bath • 540 ft²
4 bedroom terraced house for sale in Alder Close, Ash Vale, Guildford Surrey, GU12 — £425,000 • 4 bed • 1 bath • 1151 ft²






























































