Bright open-plan family home with garage, garden and 10-year warranty.
New-build four-bedroom detached family house with ensuite master
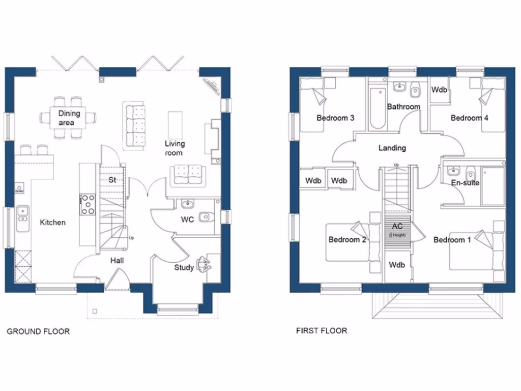
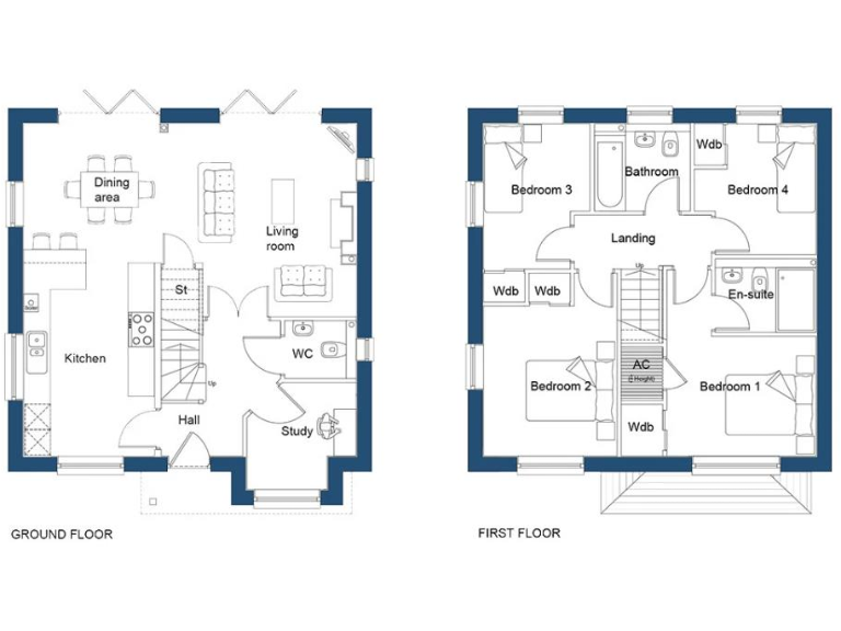
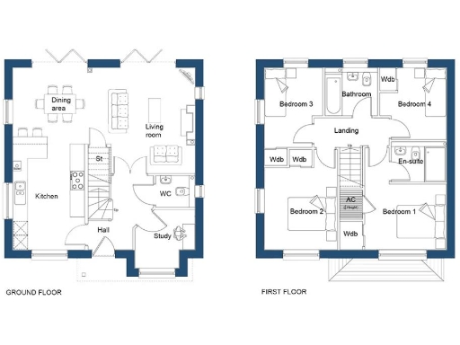
This modern four-bedroom detached home on the edge of Okehampton is designed for family living. The bright open-plan kitchen/dining/living space opens via double doors to a private rear garden, creating an effortless indoor-outdoor flow for everyday life and summer entertaining. A separate living room, study and ground-floor WC add practical flexibility for home working and family routines.
Upstairs offers a master bedroom with ensuite plus three further bedrooms served by a family bathroom — a straightforward layout that works for children, guests or a home office. The property includes a single garage and off-road parking, and sits on a large plot relative to similar new-builds in the development.
Practical assurances include a 10-year ICW new-build warranty and mains services with good broadband and mobile coverage. The development is about a mile from Okehampton town centre with easy access to the A30, rail link to Exeter and local schools, shops and leisure facilities — useful for commuting and family amenities.
Notes and limitations: EPC and council tax band are not yet confirmed. Some internal imagery comes from pre-completion show plots; a detailed specification is available on request. The house is presented in new condition but buyers should arrange a full inspection and confirm final finishes and measurements prior to purchase.
4 bedroom detached house for sale in Okehampton, EX20 — £385,000 • 4 bed • 2 bath • 569 ft²
4 bedroom detached house for sale in Abbeyford Vale, Okehampton, Devon, EX20 — £395,000 • 4 bed • 2 bath • 1211 ft²
4 bedroom detached house for sale in Abbeyford Vale, Crediton Road, Okehampton, Devon, EX20 — £365,000 • 4 bed • 2 bath • 1211 ft²
4 bedroom detached house for sale in Okehampton, EX20 — £395,000 • 4 bed • 2 bath • 569 ft²
4 bedroom detached house for sale in Okehampton, EX20 — £360,000 • 4 bed • 2 bath • 569 ft²
4 bedroom detached house for sale in Okehampton, EX20 — £395,000 • 4 bed • 2 bath • 569 ft²






















































