Six-bedroom detached house with sea views, large plot and development potential opposite.
Front-row position with uninterrupted Mounts Bay views
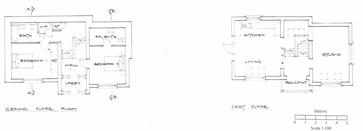
Set on the front row of Newlyn with uninterrupted panoramic views across Mounts Bay, this substantial six-bedroom detached home delivers an exceptional coastal living opportunity. The property’s layout places five bedrooms on the ground floor and a private master suite on its own top level with balcony and sea views. An upstairs reception with kitchenette offers flexible living — easily adapted into a self-contained annexe or short-term let, supported by an en-suite bedroom directly below.
Outdoor space is a major asset: a sea-facing garden, very large plot and off-street parking provide privacy and practical family living. Across the road a separate plot (currently used for parking) benefits from planning permission for a two-bedroom detached dwelling with a studio, creating clear development or investment potential.
Practical points to note: the house uses electric underfloor heating and main fuel is electricity, which can mean higher running costs than mains gas. Council tax is above average. The wider area classification records higher deprivation despite the property’s desirable coastal setting. Broadband and mobile signal are strong, and local crime rates are very low.
This is a versatile property for a family seeking generous, view-focused accommodation or an investor/developer targeting rental income or a new build on the neighbouring plot. The location is particularly strong for those who prioritise coastal lifestyle and proximity to Newlyn and Mousehole’s amenities.
5 bedroom detached house for sale in Adit Lane, Newlyn, Penzance, TR18 — £750,000 • 5 bed • 2 bath • 2540 ft²
5 bedroom detached house for sale in Mount Lidden, Penzance, TR18 — £825,000 • 5 bed • 4 bath • 2992 ft²
6 bedroom detached house for sale in Laregan Hill, Penzance, TR18 — £850,000 • 6 bed • 4 bath • 1926 ft²
4 bedroom detached house for sale in Lower Gurnick Road, Penzance, TR18 — £485,000 • 4 bed • 2 bath • 1690 ft²
4 bedroom end of terrace house for sale in Newlyn, Penzance TR18 — £485,000 • 4 bed • 2 bath • 1453 ft²
5 bedroom terraced house for sale in Bay View Terrace, Chywoone Hill, Newlyn, TR18 — £475,000 • 5 bed • 2 bath • 1441 ft²






































































































































