Ground-floor retirement flat with lakeside walks and extensive village facilities.
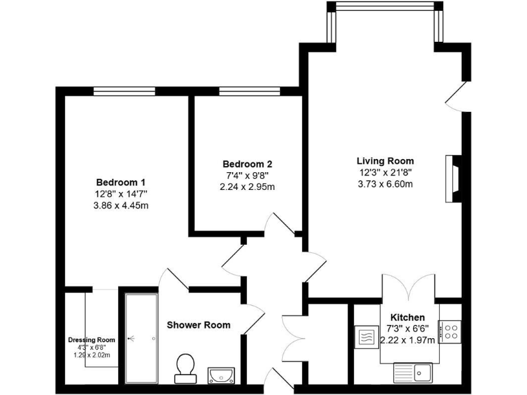
Dual-aspect living/dining room with bay window and patio access
Master bedroom with walk-in dressing room and Jack & Jill shower
Stylish kitchen with integrated appliances and washer/dryer
Underfloor heating and modern double-glazed windows
Garage included; set within lakeside woodland grounds
Leasehold retirement property — 116 years remaining, age 65+ criteria
High service charge (£800.42 pcm) and £500 annual ground rent
High local flooding risk; slow broadband speeds
A bright, ground-floor two-bedroom apartment set within Hampshire Lakes retirement village, designed for independent older living with on-site wellness and social facilities. The dual-aspect living/dining room with a bay window opens to a private patio, while a stylish fitted kitchen includes integrated appliances for low-maintenance daily living. The master bedroom benefits from a walk-in dressing room and a Jack & Jill tiled level-access shower room.
The development sits in attractive lakeside and woodland grounds, ideal for regular walks and a sociable community atmosphere. The property includes energy-efficient underfloor heating, modern double glazing and a garage. With 116 years remaining on the lease and no onward chain, the flat is ready for an incoming resident.
Buyers should note this is a leasehold retirement apartment with age criteria (65+), a high monthly service charge (£800.42 pcm) and a yearly ground rent (£500). Broadband speeds are slow and the area has a recorded high flooding risk; purchasers should satisfy themselves about flood cover and connectivity needs. Overall size is small (599 sq ft), making this most suitable for downsizers seeking village amenities and low-maintenance living rather than large-family accommodation.
1 bedroom ground floor flat for sale in Hammond Way, Yateley, GU46 — £185,000 • 1 bed • 1 bath • 513 ft²
2 bedroom flat for sale in Hammond Way, Yateley, GU46 — £400,000 • 2 bed • 2 bath • 765 ft²
1 bedroom flat for sale in Hammond Way, Yateley, GU46 — £185,000 • 1 bed • 1 bath • 485 ft²
2 bedroom flat for sale in Hampshire Lakes, Oakleigh Square, Yateley retirement property, GU46 — £495,950 • 2 bed • 2 bath • 878 ft²
1 bedroom ground floor flat for sale in Hammond Way, Yateley, GU46 — £295,000 • 1 bed • 1 bath • 668 ft²
2 bedroom flat for sale in Hammond Way, Yateley, GU46 — £625,000 • 2 bed • 2 bath • 1518 ft²














































































































