**Standout Features:**
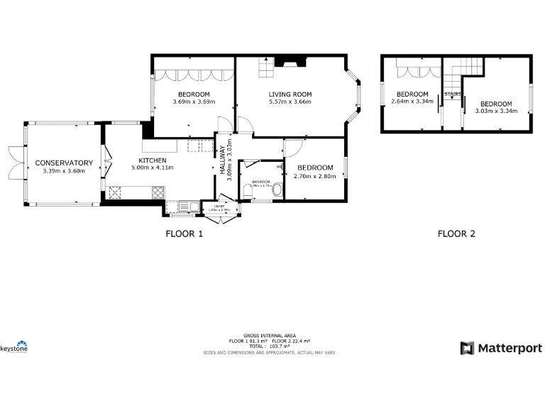
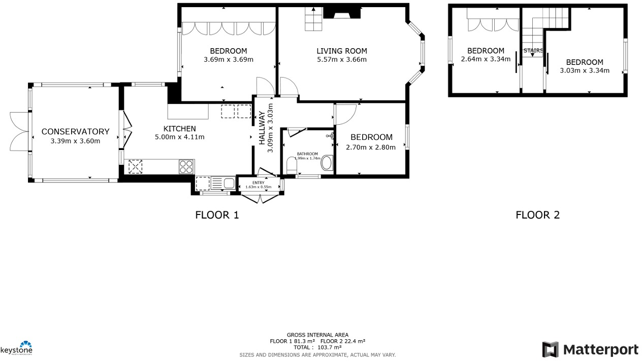
- Semi-detached four-bedroom bungalow, newly renovated
- Large living area with cozy fireplace and bay windows
- Insulated conservatory perfect for relaxation or entertaining
- Spacious kitchen with abundant storage and countertop space
- Generous, established rear garden with patio area
- Long driveway and double garage for ample parking
- Convenient location near Wepre Park, local schools, and public transport
**Summary:**
Discover this beautifully renovated four-bedroom semi-detached bungalow in the desirable Connah's Quay, perfectly suited for families seeking space and comfort. With a generous living area featuring a charming bay window and electric fireplace, this home offers a warm and inviting atmosphere. The spacious kitchen is a chef’s delight, equipped with ample storage, while the insulated conservatory provides a peaceful retreat with picturesque garden views. Each of the four double bedrooms presents flexibility for family living, home office setups, or guest accommodation.
Outside, the established rear garden, complete with a paved patio, is ideal for outdoor gatherings, while the long driveway and double garage ensure convenience and security. Located just a short walk from the scenic Wepre Park and multiple local schools, this property offers great community amenities and easy access to transport links for commuting.
This meticulously maintained home, set in a quiet and friendly neighborhood, combines comfort and practicality, making it a perfect choice for families or first-time buyers. Act quickly—homes of this caliber in such a sought-after location don’t last long! Viewing is highly recommended to experience everything this wonderful property has to offer.
3 bedroom semi-detached bungalow for sale in Wepre Hall Crescent, Connah's Quay, Deeside, Flintshire, CH5 4HZ, CH5 — £240,000 • 3 bed • 1 bath • 1075 ft²
4 bedroom detached bungalow for sale in Llwyni Drive, Connah's Quay, Deeside, Flintshire, CH5 4NE, CH5 — £315,000 • 4 bed • 2 bath • 1902 ft²
3 bedroom semi-detached house for sale in Hadfield Close, Connah's Quay, Deeside, Flintshire, CH5 4JP, CH5 — £190,000 • 3 bed • 1 bath • 1146 ft²
3 bedroom detached bungalow for sale in Belmont Avenue, Connah's Quay, Deeside, Flintshire, CH5 4PD, CH5 — £395,000 • 3 bed • 2 bath • 1743 ft²
4 bedroom detached house for sale in Maes Y Berllan, Connah's Quay, Deeside, Flintshire, CH5 4FD, CH5 — £355,000 • 4 bed • 3 bath • 1571 ft²
3 bedroom detached bungalow for sale in Derwen Close, Connah's Quay, Deeside, Flintshire, CH5 4AU, CH5 — £245,000 • 3 bed • 1 bath • 989 ft²










































































