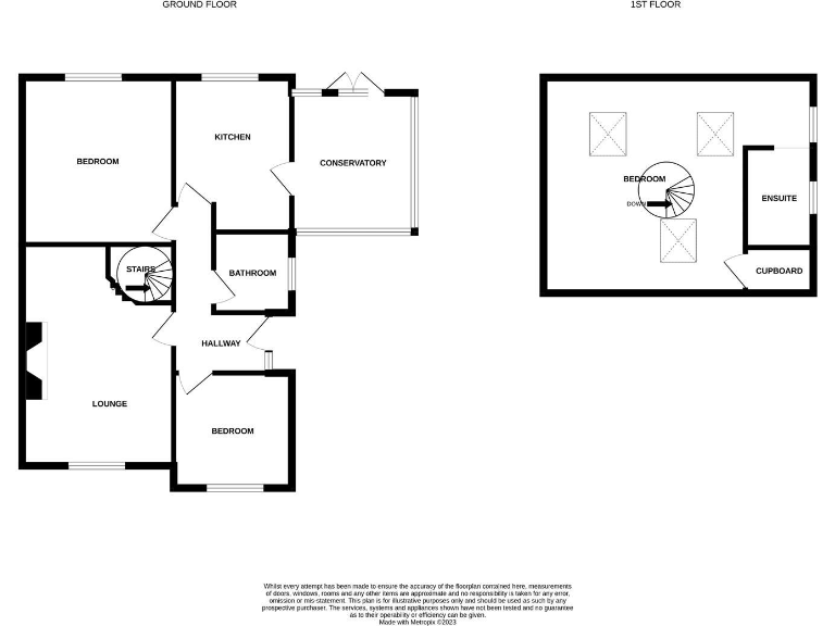
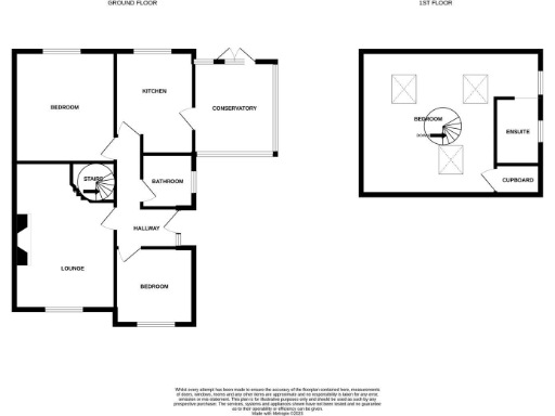
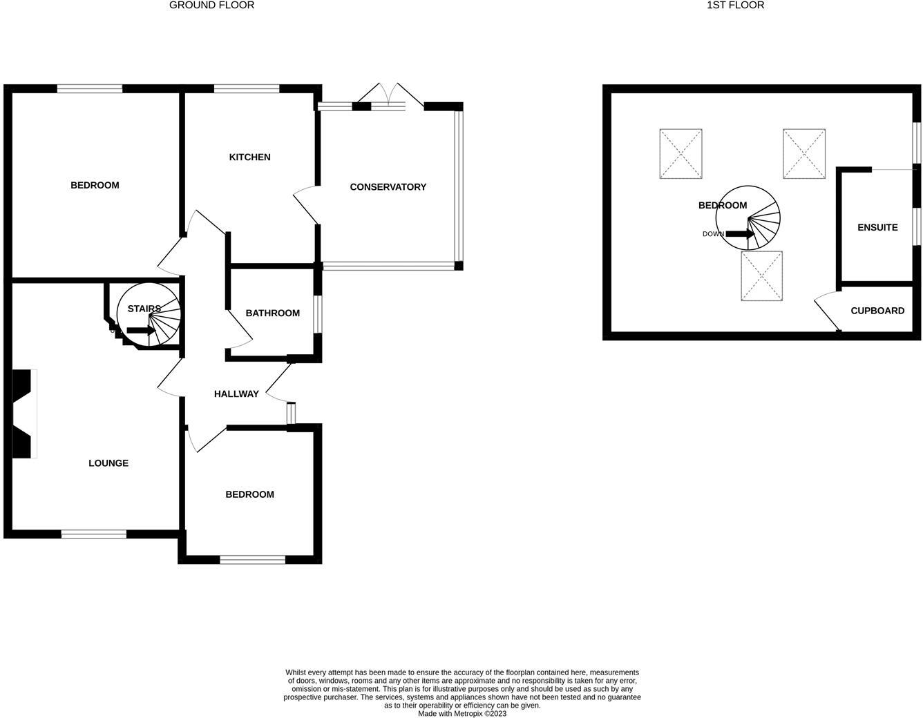
**Standout Features:**
- Newly renovated two-bedroom semi-detached bungalow
- Spacious attic converted with shower room/WC
- Upgraded kitchen with quality integrated appliances
- Modern shower room and bright conservatory
- Generous landscaped garden with two driveways for ample off-street parking
- Located in the popular and affluent Mowden area
- Chain-free sale
This charming two-bedroom semi-detached bungalow in the sought-after Mowden area is perfect for those seeking a modern, move-in-ready home. Recently refurbished, it showcases tasteful decor throughout, including an upgraded kitchen equipped with high-quality integrated appliances and a stylish shower room. The bright and inviting lounge features a large bay window, while the spacious conservatory offers delightful views of the well-maintained garden, creating an ideal space for relaxation or entertaining guests.
Boasting a unique and valuable attic space, this home also includes a convenient shower room and WC, expanding its functionality. With ample off-street parking available from two driveways and an easy-to-maintain landscaped garden, this property harmonizes comfort with practicality—making it suited for downsizers, young families, or investors alike.
The low crime rate and proximity to good local schools, shops, and transport links underline the desirability of this area. Act quickly to secure this exceptional home—properties like this don’t last long on the market!
2 bedroom bungalow for sale in Sutton Close, Darlington, DL3 — £305,000 • 2 bed • 1 bath • 642 ft²
2 bedroom semi-detached bungalow for sale in Carleton Drive, Darlington, DL3 — £200,000 • 2 bed • 1 bath • 604 ft²
2 bedroom semi-detached bungalow for sale in Edgecombe Drive, Darlington, DL3 — £210,000 • 2 bed • 1 bath • 818 ft²
2 bedroom bungalow for sale in Essex Way, Darlington, DL1 — £170,000 • 2 bed • 1 bath • 570 ft²
2 bedroom detached bungalow for sale in Dene Grove, Darlington, DL3 — £265,000 • 2 bed • 1 bath • 1076 ft²
2 bedroom semi-detached bungalow for sale in The Causeway, Darlington, DL1 — £150,000 • 2 bed • 1 bath • 721 ft²










































































































