Chain-free, freshly redecorated terrace near Mill Road and Cambridge station.
Freehold Victorian terrace in popular Romsey Town
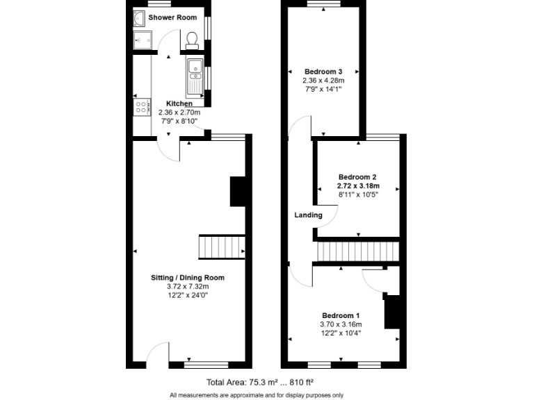
This freshly redecorated three-bedroom Victorian terrace sits in Romsey Town, an energetic, well-connected neighbourhood just off Mill Road. The house is sold freehold and chain free, making it straightforward for a first-time buyer to move quickly. Its large sitting/dining room with wood floors creates a bright, versatile living space for everyday life and entertaining.
Practical features include gas central heating, fast broadband and excellent mobile signal — useful for homeworking or streaming. The compact galley kitchen leads directly to a low-maintenance courtyard garden with rear access. Three bedrooms on the first floor make this a genuinely functional family/home-share layout, while the ground-floor three-piece shower room keeps mornings moving.
Be clear on the trade-offs: the overall footprint is small (about 810 sq ft) and the plot is compact, so storage and large living ambitions are limited. The kitchen shows rustic/dated fittings and low ceilings in places, so buyers wanting a contemporary, open-plan kitchen would need to renovate. There is only one bathroom.
Location is a major asset: Mill Road amenities, good local schools, Cambridge station (around 1 mile) and the city centre are all within easy reach. For a first-time buyer seeking an affordable, characterful base in a lively, well-served part of Cambridge, this property offers immediate move-in comfort with straightforward scope to personalise over time.
3 bedroom terraced house for sale in Thoday Street, Cambridge, CB1 — £515,000 • 3 bed • 1 bath • 914 ft²
3 bedroom terraced house for sale in Ross Street, Cambridge, CB1 — £685,000 • 3 bed • 2 bath • 1147 ft²
3 bedroom terraced house for sale in Mill Road, Cambridge, CB1 — £500,000 • 3 bed • 2 bath • 686 ft²
3 bedroom terraced house for sale in Ross Street, Cambridge, Cambridgeshire, CB1 — £465,000 • 3 bed • 1 bath • 699 ft²
3 bedroom end of terrace house for sale in Catharine Street, Cambridge, CB1 — £525,000 • 3 bed • 1 bath • 708 ft²
3 bedroom end of terrace house for sale in Ross Street, Cambridge, Cambridge, CB1 — £485,000 • 3 bed • 1 bath • 835 ft²






































































