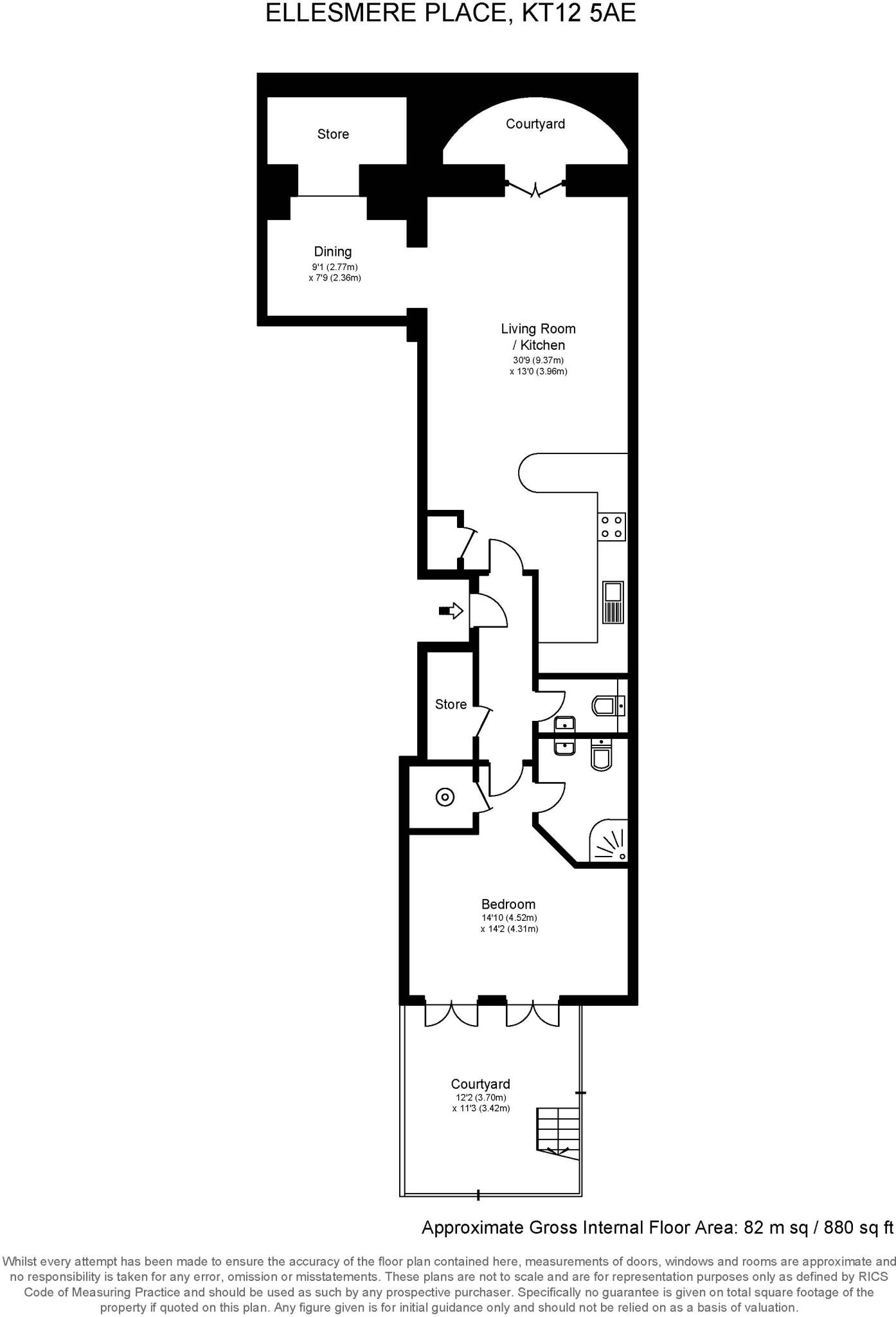
Large 1-bedroom approx. 880 sq ft—more space than many two-bed flats
A rare, spacious one-bedroom apartment set within a converted Victorian institutional building in gated Ellesmere Place. At about 880 sq ft this basement residence outperforms many two-bedroom flats in living space, helped by genuinely high ceilings, a thick concrete floor to the flat above for excellent soundproofing, and two private patio areas for outdoor use.
Practical comforts include allocated underground parking in a secure gated car park, well-maintained communal gardens, mains gas central heating and double glazing. The long lease (969 years) gives security of tenure, while the secure, low-crime setting and proximity to highly rated local schools suit downsizers or professionals wanting a peaceful, central home.
Be clear on the material facts: the building is listed and this status may restrict alterations and cause additional consent requirements. Service charge and ground rent are notable: average service charge around £3,600pa and ground rent about £300pa. Council tax is above average and broadband speeds are reported slow. The flat’s basement position can be a concern for some buyers despite the open, bright design.
This property will suit someone seeking a distinctive, characterful apartment with generous internal space, private outdoor patios and secure parking, who is comfortable with listed-building constraints and the ongoing service costs.
2 bedroom apartment for sale in Bridgewater Road, Weybridge, KT13 — £495,000 • 2 bed • 2 bath • 1150 ft²
2 bedroom apartment for sale in Ellesmere Place, Walton-on-thames, KT12 — £530,000 • 2 bed • 2 bath • 1246 ft²
2 bedroom flat for sale in Ellesmere Place, Walton-On-Thames, Surrey, KT12 — £450,000 • 2 bed • 2 bath • 880 ft²
3 bedroom flat for sale in Queens Road, Weybridge, KT13 — £1,359,000 • 3 bed • 2 bath • 1808 ft²
3 bedroom flat for sale in Ellesmere Place, Walton-On-Thames, KT12 — £875,000 • 3 bed • 3 bath • 2000 ft²
3 bedroom flat for sale in Elgin Place, Weybridge, KT13 — £625,000 • 3 bed • 2 bath • 1800 ft²


































































