**Standout Features:**
- Unique semi-detached cottage, originally built in 1870 with high-quality extensions completed in 2006.
- Located within the scenic Lake District National Park, featuring breathtaking views of the valley, steam railway line, and nearby fells.
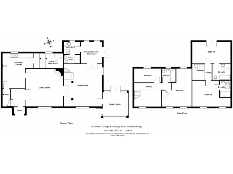
- Spacious living areas including a sitting room, snug, and a family dining room perfect for entertaining.
- Four generously sized double bedrooms, with two offering en-suite bathrooms.
- Beautifully landscaped gardens with multiple seating areas, an elevated patio, and functional outdoor spaces.
- Driveway parking available for convenience.
**Potential Concerns:**
- EPC rating of F, indicating potential energy efficiency improvements needed.
- Broadband speeds are very slow, which may be a consideration for remote workers.
**Property Summary:**
Discover the charm of Old School Cottage, a spacious semi-detached property nestled in the tranquil hamlet of Brow Edge. With its rich character, the home features four double bedrooms, including two en-suites, and multiple inviting living spaces—ideal for family gatherings or cozy evenings. The beautifully landscaped outdoor areas offer a serene escape, complete with picturesque views, while the ample parking and maintenance-friendly design provide practical comforts.
This property is perfect for families seeking a peaceful environment or investors drawn to the area's natural beauty and rental potential. Enjoy easy access to nearby amenities and an abundance of countryside walks right from your doorstep. Take advantage of this rare opportunity to own a unique piece of Lake District real estate—properties like this don’t stay on the market long!
3 bedroom detached house for sale in Old Breasty Haw, Satterthwaite, Ulverston, LA12 8LS, LA12 — £775,000 • 3 bed • 3 bath • 1619 ft²
4 bedroom farm house for sale in School House Farm, Backbarrow, LA12 — £500,000 • 4 bed • 1 bath • 2088 ft²
3 bedroom cottage for sale in High Stott Park Cottage & Barn, High Stott Park, Finsthwaite, Nr Ulverston, Cumbria LA12 8AY, LA12 — £770,000 • 3 bed • 2 bath • 3564 ft²
4 bedroom detached house for sale in Old Laundry, High Borrans, Windermere, LA23 1JS, LA23 — £1,250,000 • 4 bed • 4 bath • 2468 ft²
6 bedroom semi-detached house for sale in 1 Town End Cottages, Far Sawrey Ambleside LA22 0LH, LA22 — £750,000 • 6 bed • 3 bath • 2262 ft²
4 bedroom terraced house for sale in 3 Seed Howe Cottages, Staveley, LA8 — £510,000 • 4 bed • 2 bath • 1797 ft²


























































































































