Chain-free three-storey home with garage, driveway and shared landscaped gardens.
End-terrace townhouse over three storeys, approximately 1,300 sq ft
Ground-floor flexible room with en-suite; ideal office or guest bedroom
Open-plan first-floor living and contemporary fitted kitchen
Integral single garage plus generous driveway parking
Low-maintenance patio opening to shared, well-landscaped communal garden
Chain free sale for a quicker move
Mid-century exterior and some interiors need cosmetic updating
Small plot footprint; communal garden is shared via a trust
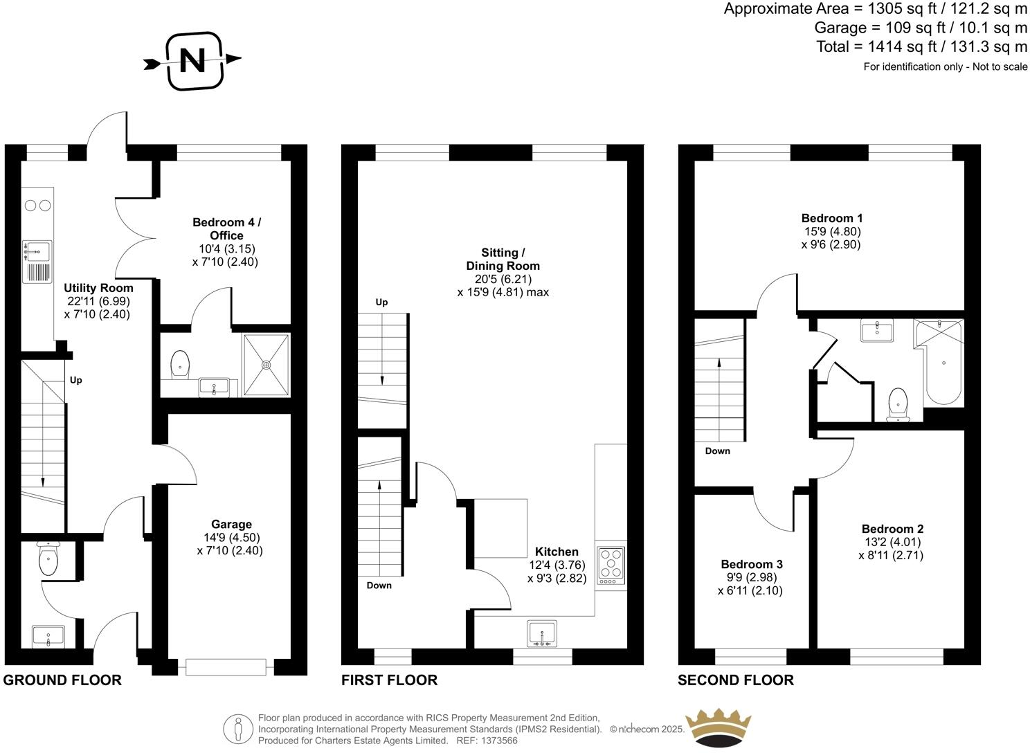
This versatile three-storey townhouse offers flexible family living in a sought-after Bassett location. The main living floor is bright and open-plan, with a contemporary fitted kitchen and a spacious living room framed by two large windows — an inviting space for everyday life and entertaining.
The property provides true flexibility: a ground-floor room with en-suite works well as a guest bedroom, study, or home office, while three well-proportioned bedrooms sit on the top floor. Practical additions include a cloakroom, utility room, integral garage and a generous driveway providing off-road parking.
Outside, a low-maintenance patio opens onto a well-kept communal garden run through The Gables Trust, offering a pleasant green outlook and additional outdoor amenity. The house is chain free and ready for immediate occupation, though the mid-century exterior and some internal areas would benefit from cosmetic updating to suit contemporary tastes.
Positioned close to reputable schools, sports facilities, Southampton Common, and commuter links including the M3/M27 and Southampton Airport Parkway, this end-terrace home suits families or professionals seeking space, parking and access to city amenities with the advantage of communal green space.
4 bedroom semi-detached house for sale in Bassett Row, Bassett, Southampton, Hampshire, SO16 — £475,000 • 4 bed • 2 bath • 1087 ft²
4 bedroom house for sale in Bassett, Southampton, SO16 — £550,000 • 4 bed • 3 bath • 943 ft²
5 bedroom semi-detached house for sale in The Parkway, Bassett, Southampton, Hampshire, SO16 — £495,000 • 5 bed • 2 bath • 1417 ft²
3 bedroom detached house for sale in Lingwood Close, Southampton, Hampshire, SO16 — £525,000 • 3 bed • 2 bath • 1652 ft²
4 bedroom detached house for sale in Glenwood Avenue, Southampton, Hampshire, SO16 — £625,000 • 4 bed • 2 bath • 1706 ft²
4 bedroom detached house for sale in Bassett Avenue, Bassett, Southampton, Hampshire, SO16 — £540,000 • 4 bed • 2 bath • 1404 ft²


















































