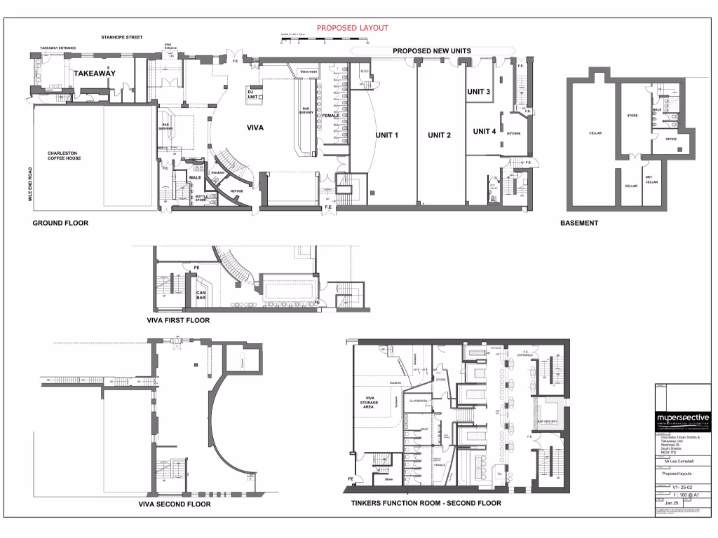
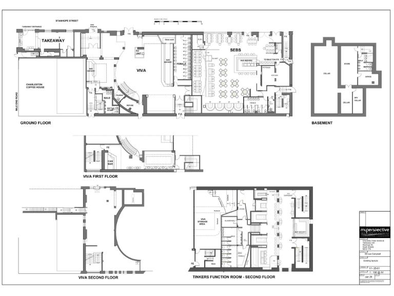
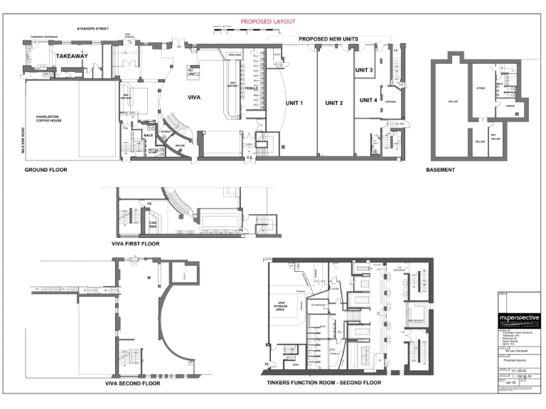
### Standout Features:
- Prime town center location with high foot traffic.
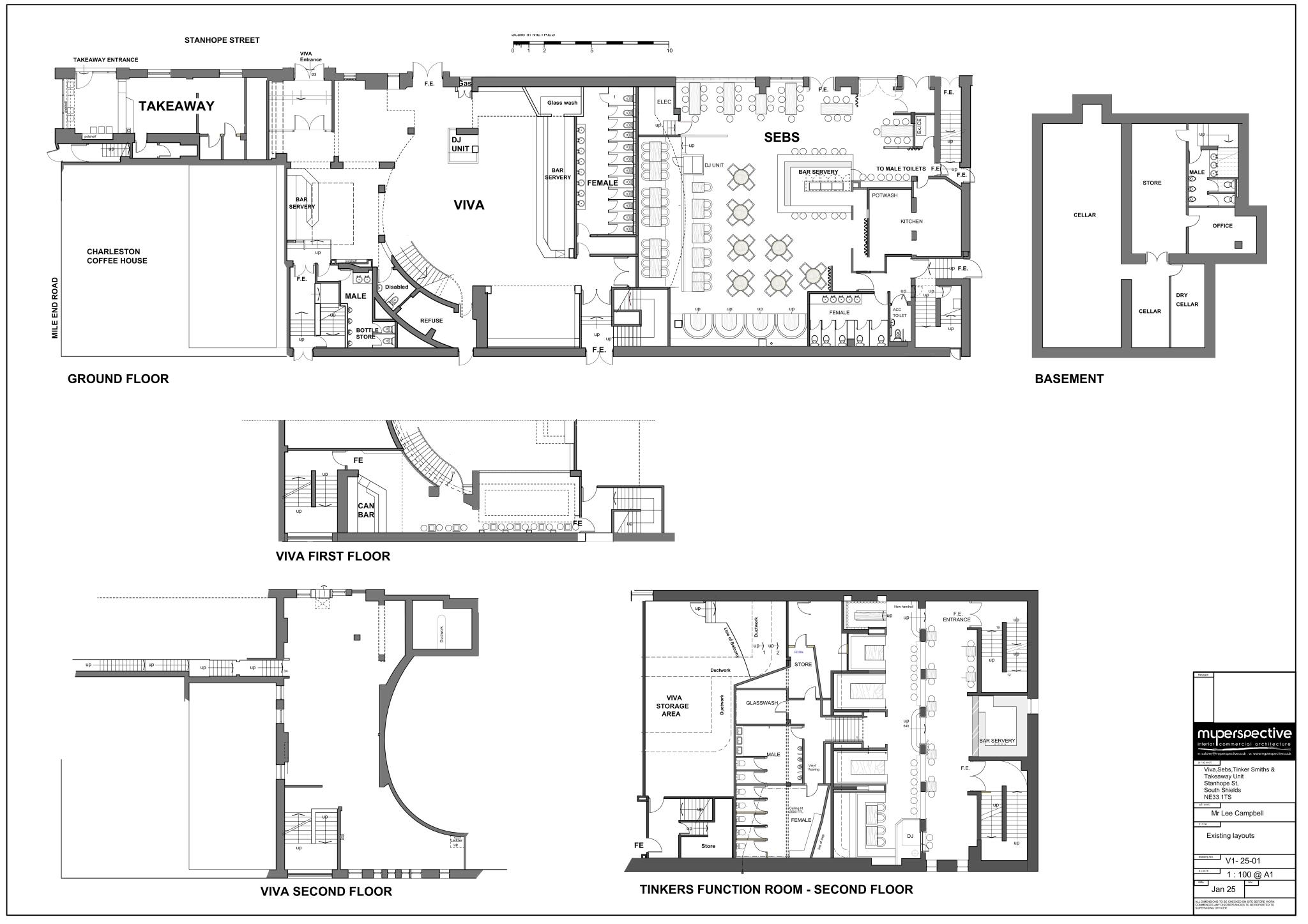
- Historic three-storey building with Victorian architecture (built 1889).
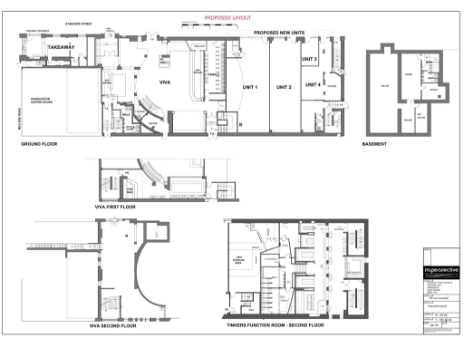
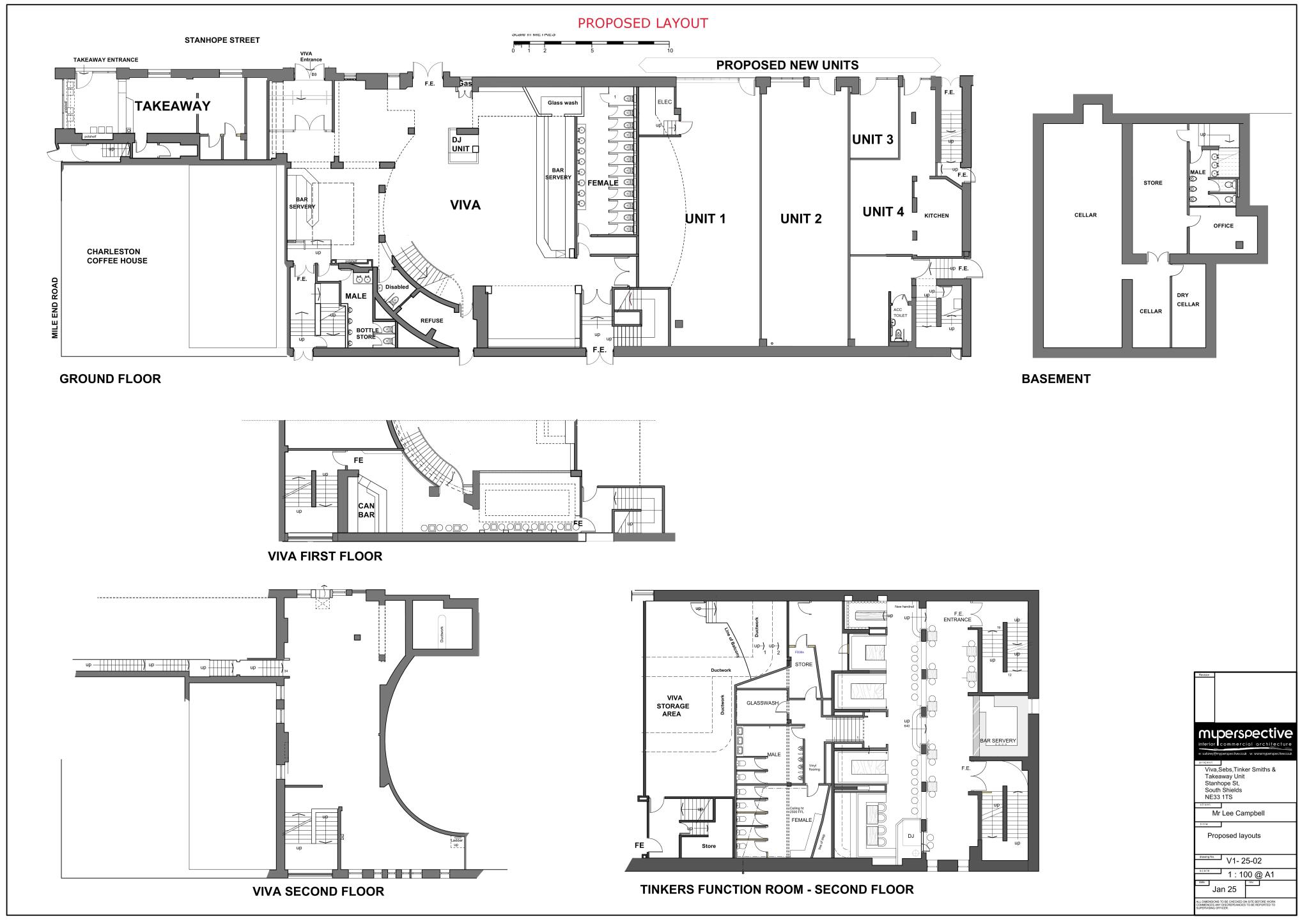
- Three distinct trading areas: 1 large nightclub (Viva), 1 bar restaurant (Tinker Smiths), and 1 burger bar (currently tenanted).
- Significant income potential with past rents totaling approximately £75,000 plus VAT annually.
- Flexible layout with potential to convert areas for alternative use (subject to planning permissions).
- Fully licensed premises with an EPC Rating of B.
### Summary:
Nestled in the heart of South Shields, this historic commercial property offers a unique investment opportunity with substantial income potential. Encompassing 0.215 acres, the striking Victorian building showcases three operational areas, with the two larger spaces (Viva and Tinker Smiths) currently available for innovative repurposing. Previously generating annual rents up to £75,000 plus VAT, the property is perfectly positioned amidst a vibrant mix of local amenities and an ongoing revitalization within the town center, set to draw increased foot traffic.
While extensive renovations may be needed to bring the vacant areas back into operation, the building's fully licensed status and favorable EPC rating make it a promising venture for an astute owner/operator or developer. The emerging influx of students and professionals in the area may enhance rental prospects, especially with flexible options to subdivide spaces further. Don’t miss out on this prime opportunity to own a piece of South Shields' rich history and capitalize on its future potential.
Pub for sale in Albion Road, North Shields, NE29 — £159,950 • 1 bed • 1 bath • 828 ft²
High street retail property for sale in Imeary Street, South Shields, Tyne and Wear, NE33 4EG, NE33 — £50,000 • 1 bed • 1 bath • 678 ft²
Terraced house for sale in Albion Road, North Shields, Tyne & Wear, NE30 — £318,500 • 1 bed • 1 bath • 669 ft²
Bar / nightclub for sale in Nancy's Bordello, 13 Argyle Street, Newcastle upon Tyne, NE1 6PF, NE1 — £425,000 • 1 bed • 1 bath • 6363 ft²
High street retail property for sale in 75 King Street, South Shields, NE33 — £625,000 • 1 bed • 1 bath • 3000 ft²
Commercial property for sale in East Percy Street, North Shields, NE30 — £450,000 • 1 bed • 1 bath • 2969 ft²






























































