Four-bedroom corner plot home bordering the New Forest — ideal for families seeking space and renovation potential..
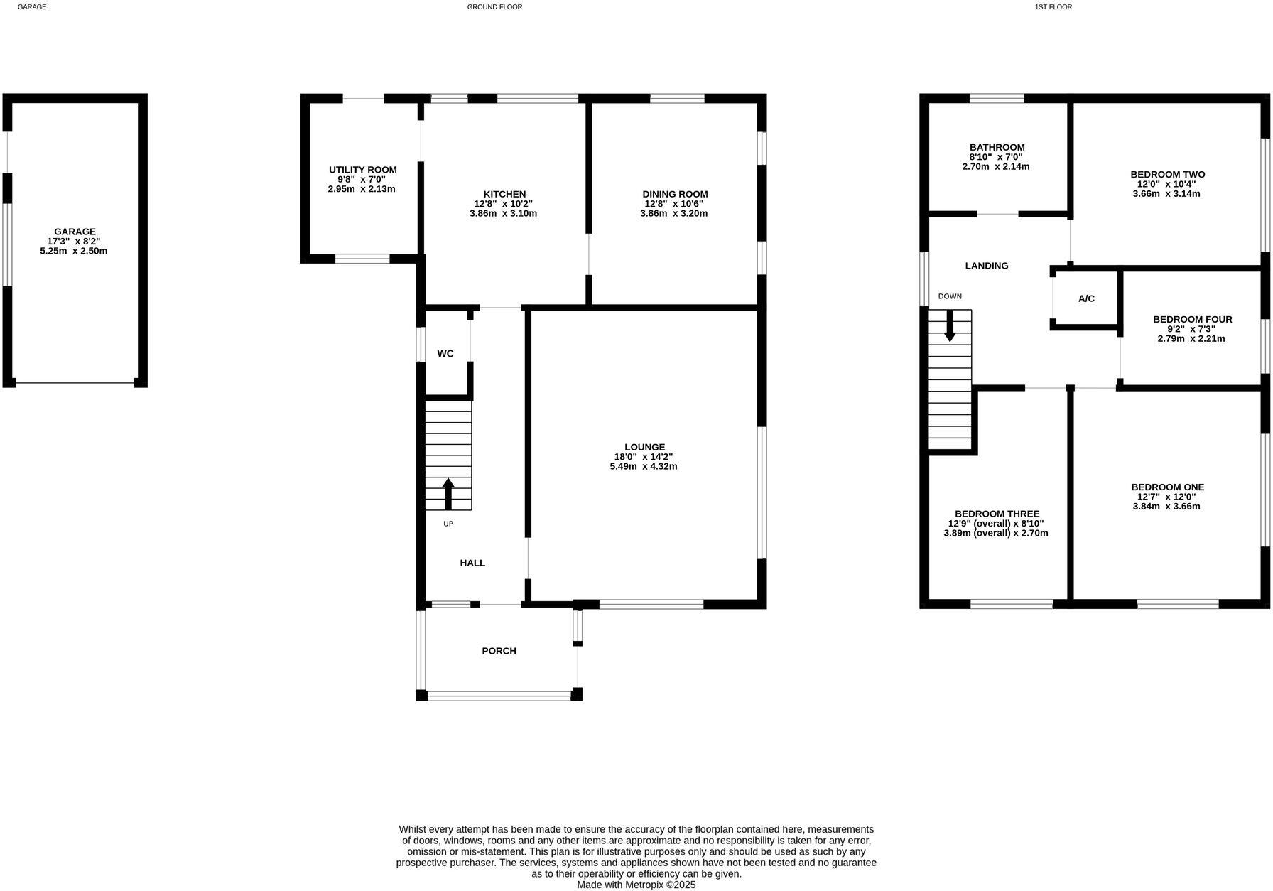
Four bedrooms with single family bathroom and ground-floor WC
Set on a large corner plot at the edge of the New Forest, this four-bedroom detached house offers generous, deceptively spacious accommodation across two storeys. The property includes a generous lounge, separate dining room with French doors to the garden, kitchen, utility room, and driveway parking with a detached garage. Being chain free makes for a straightforward purchase.
Built in the mid-20th century and offered as a practical family home, the house presents clear scope to update and reconfigure — the kitchen and dining room could be opened up to create a contemporary open-plan heart (subject to consent). The layout includes four bedrooms served by a single family bathroom and a ground-floor WC, so some buyers will want to consider upgrading facilities to suit modern family life.
Practical details: the property is freehold, sits in a comfortable, very affluent neighbourhood with no flood risk, and benefits from excellent mobile signal. Energy performance is currently rated E and the house will suit purchasers prepared to carry out some refurbishment. Council tax is above average.
Location is a key strength: walkable access to the New Forest National Park, local shops and well-regarded primary schools (Orchard Infant 'Outstanding', Wildground schools 'Good'), with bus links to Hythe and surrounding Waterside towns. For families seeking space, outdoor access and potential to personalise a long-term home, this property is well placed.
4 bedroom detached house for sale in Roman Road, Dibden Purlieu, SO45 — £548,500 • 4 bed • 2 bath • 1463 ft²
4 bedroom detached house for sale in Lunedale Road, Dibden Purlieu, SO45 — £460,000 • 4 bed • 2 bath • 1604 ft²
4 bedroom detached house for sale in Durrant Way, Sway, Lymington, Hampshire, SO41 — £745,000 • 4 bed • 2 bath • 1762 ft²
3 bedroom detached house for sale in Belvedere Road, Dibden Purlieu, Southampton, Hampshire, SO45 — £380,000 • 3 bed • 1 bath • 1007 ft²
4 bedroom detached house for sale in Depden Gardens, Dibden Purlieu, SO45 — £495,000 • 4 bed • 2 bath • 1128 ft²
4 bedroom detached house for sale in Foxhayes Lane, Langley, SO45 — £450,000 • 4 bed • 2 bath • 1033 ft²


































































