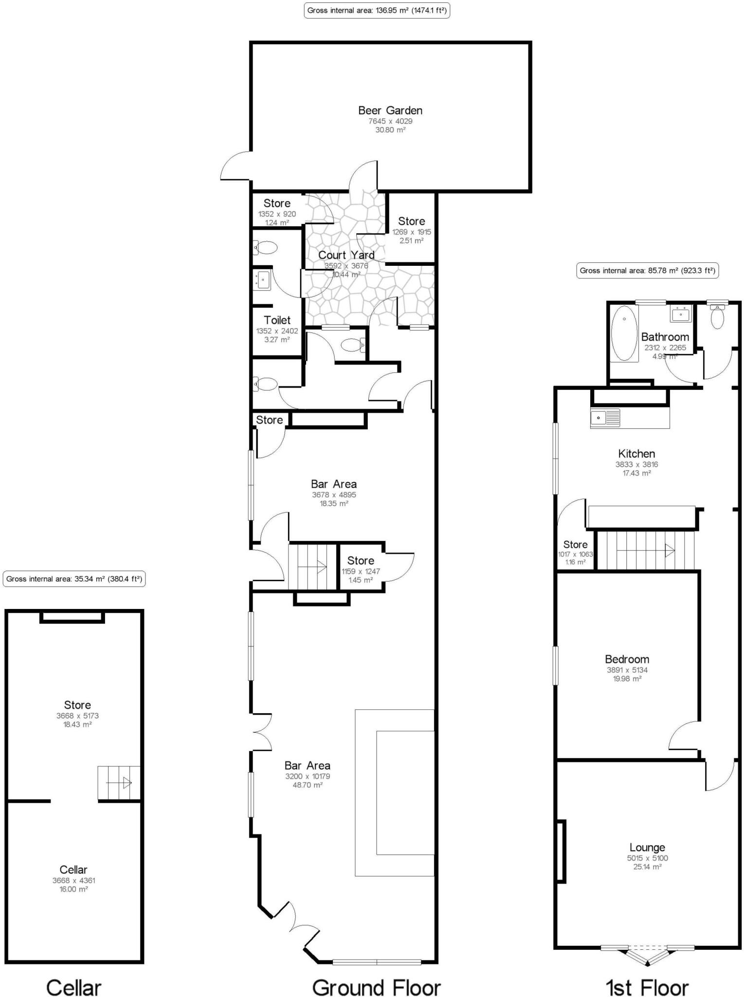
**Standout Features:**
- Well-established wet-led community pub with approx. 50 seated covers plus standing room for 100.
- Prime location just 0.5 miles from Central Gateshead with excellent transport links.
- 1-bedroom owner’s accommodation offering privacy and potential rental income.
- Character-filled Edwardian traditional pub with high ceilings and ornate woodwork.
- Recently maintained interior and facilities, including spacious cellar for stock storage.
- Impressive turnover of approximately £179,000 with adjusted net profit around £53,000.
**Potential Downsides:**
- Located in a neighborhood classified as multi-ethnic hardship with very high crime rates.
- Area has significant deprivation factors that could influence customer footfall.
- Business hours limited to evenings and weekends, potentially constraining revenue.
The Wheatsheaf is an impressive community pub situated in the heart of Felling, Gateshead, making it an ideal opportunity for first-time buyers or investors seeking to expand their portfolio. With its stunning Victorian bar, well-kept interior, and adaptable owner’s flat, this property strikes a perfect balance between business and potential personal living space. The solid turnover reflects a loyal customer base and a prime location in a bustling neighborhood filled with complementary businesses.
However, prospective buyers should consider the area's high crime rates and economic challenges, which may affect the pub's patronage. With its strong foundation and room for growth, The Wheatsheaf offers the chance to create a cherished local hub while also being within reach of vibrant Newcastle's cultural attractions. Time is of the essence; properties like this, with both charm and potential, are scarce and won’t last long in today’s market.
Pub for sale in The Wheatsheaf, 26 Carlisle Street, Felling, Gateshead, NE10 0HQ, NE10 — POA • 1 bed • 1 bath • 1474 ft²
Leisure facility for sale in Whickham House, Bensham Road, Gateshead, NE8 — £275,000 • 1 bed • 1 bath • 2260 ft²
Pub for sale in Earl of Pitt Street, 70 Pitt Street, Newcastle Upon Tyne, NE4 5ST, NE4 — £400,000 • 1 bed • 1 bath
Pub for sale in Tyneside - Large Traditional Pub, NE28 — £585,000 • 1 bed • 1 bath
Pub for sale in Albion Road, North Shields, NE29 — £159,950 • 1 bed • 1 bath • 828 ft²
Pub for sale in The @venue, 26 Zetland Street
Roker, Sunderland, SR6 0EQ, SR6 — £400,000 • 1 bed • 1 bath


























































