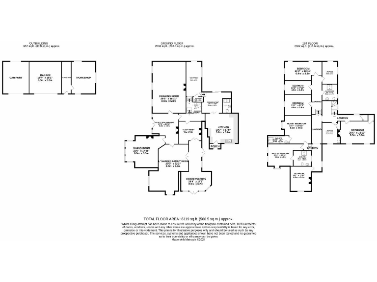
**Standout Features:**
- Elegant period home from the 1830s with historical significance
- Eight bedrooms and four bathrooms, ideal for families or guests
- Five generous reception rooms, including a 31' drawing room
- Approximately six acres of beautifully maintained gardens and woodland
- Multiple Grade II listed outbuildings, including a Pebble Summer House
- Large triple garage/workshop and ample off-street parking
- Located near the archaeologically significant Banwell Caves
- Requires moderate updating, presenting an opportunity for buyers to renovate
This stunning period residence, known as "The Caves," invites you to experience the charm and grandeur of a bygone era. Set against the breathtaking backdrop of Banwell Hill, this expansive property boasts approximately 6,000 sq ft of stylish living space, perfectly suited for families and those who appreciate unique homes. With eight spacious bedrooms and four modern bathrooms, there’s ample room for comfort and entertaining. Enjoy the majestic 31' drawing room and captivating features like stained glass windows and magnificent fireplaces throughout.
Nestled within around six acres of enchanting gardens and historical woodland, the property offers both privacy and scenic views of the Somerset countryside. Notably, the grounds include intriguing outbuildings with rich histories, like a Druids Altar and the picturesque Pebble Summer House, enhancing its appeal for history enthusiasts and nature lovers alike. While the home requires moderate updating, this provides a canvas for new owners to infuse their personal style and creativity. Don't miss this rare opportunity to own a part of local heritage—schedule a viewing today!
3 bedroom detached house for sale in Beautiful cottage with elevated views of Banwell and beyond, BS29 — £650,000 • 3 bed • 2 bath • 2131 ft²
4 bedroom detached house for sale in Whitley Head, Banwell, Somerset, BS29 — £749,950 • 4 bed • 3 bath • 2499 ft²
4 bedroom detached house for sale in Whitley Head, Banwell, BS29 — £749,950 • 4 bed • 3 bath • 2500 ft²
6 bedroom detached house for sale in Wolvershill Road, Banwell, BS29 6DJ, BS29 — £895,000 • 6 bed • 4 bath • 3100 ft²
5 bedroom detached house for sale in Banwell Road, Christon, Axbridge, North Somerset, BS26 — £1,575,000 • 5 bed • 4 bath • 4583 ft²
3 bedroom semi-detached house for sale in High Street, Banwell, BS29 — £345,000 • 3 bed • 1 bath • 1077 ft²






























































































































































