**Key Features:**
- Grade II listed former courthouse conversion
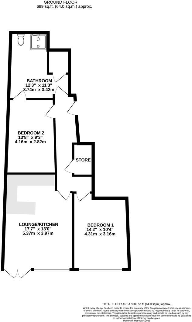
- Two double bedrooms and one modern 'Jack & Jill' shower room
- Open plan kitchen/living room with integrated appliances
- Ground floor access with communal gardens
- Town center location with excellent amenities nearby
- No upward chain, making for a seamless buying process
- EPC Rating: D
Discover a unique opportunity to own a superb two-bedroom ground floor apartment in the architecturally distinguished Knightsbridge Court, a Grade II listed building steeped in history. Boasting a spacious 689 sq. ft. layout, this stylish apartment features an inviting open plan kitchen and living area bathed in natural light, complemented by two generous double bedrooms. The modern 'Jack & Jill' shower room enhances functionality.
Perfectly positioned in the heart of the town center, you’ll enjoy quick access to local shops, restaurants, and parks, catering to a vibrant lifestyle. While the apartment is chain-free for a hassle-free purchase, please note that the listed status may present some challenges for future renovations.
Ideal for young families, first-time buyers, or investors looking for rental potential, this property combines historic charm and modern living. Act quickly to seize this exceptional opportunity—properties of this caliber, especially with such a desirable location, won’t last long!
2 bedroom apartment for sale in Knightsbridge Court, West Bars, Chesterfield, S40 — £169,500 • 2 bed • 1 bath • 776 ft²
2 bedroom apartment for sale in Knightsbridge Court, West Bars, Chesterfield, S40 — £139,500 • 2 bed • 1 bath • 643 ft²
1 bedroom apartment for sale in Knightsbridge Court, West Bars, Chesterfield, S40 — £129,950 • 1 bed • 1 bath • 698 ft²
2 bedroom flat for sale in West Bars, Chesterfield, Derbyshire, S40 — £137,500 • 2 bed • 1 bath • 743 ft²
2 bedroom flat for sale in West Bars, Chesterfield, Derbyshire, S40 — £150,000 • 2 bed • 2 bath • 754 ft²
1 bedroom flat for sale in West Bars, Chesterfield, Derbyshire, S40 — £138,000 • 1 bed • 1 bath • 698 ft²


















































































