Compact, modern semi on a generous corner plot with excellent transport links.
- Generous 70ft x 30ft corner plot with front, side and rear outdoor areas
- Two off-street parking spaces; more parking possibly achievable
- Air source heat pump and underfloor electric heating; EPC C
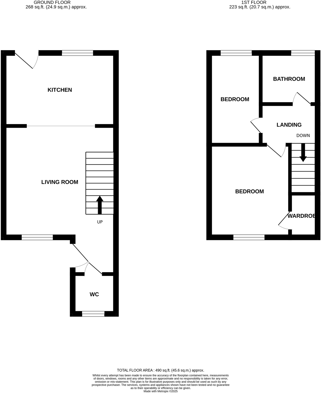
- Circa 450 sq ft internal space — compact layout
- Second bedroom is small, better as nursery or office
- Freehold and no onward chain for quicker transaction
- Walking distance to station, town centre and local schools
- Fast FTTP full-fibre broadband; very low local crime
Set on a generous 70ft x 30ft corner plot, this well-presented two-bedroom semi offers modern, low-carbon heating and easy walkability to Attleborough town centre and the railway station. The ground floor has a bright living room, contemporary kitchen with breakfast bar and a handy WC, while upstairs provides a large double bedroom, a smaller single bedroom and a modern bathroom. The property is freehold with no onward chain, so a quick sale is possible.
Practical running costs are improved by the air-source heat pump and underfloor electric heating; the EPC is C. Outside there is a 35ft front lawn, side garden, private rear patio and two off-street parking spaces with potential to extend parking if required. Fast full-fibre broadband is available and the area records very low crime and good local amenities.
Note the house is compact (circa 450 sq ft) and the second bedroom is small — suitable for a child, home office or occasional use. Buyers seeking significantly larger internal living space or extensive gardens should consider this when viewing. Planning covenants and rights have not been provided and should be checked prior to purchase.
This home suits first-time buyers, small families or investors looking for a low-maintenance, well-connected property with scope to add value through internal reconfiguration or cosmetic updating.
2 bedroom semi-detached house for sale in Lancaster Road, Attleborough, NR17 — £220,000 • 2 bed • 1 bath • 610 ft²
2 bedroom semi-detached house for sale in Keeling Way, Attleborough, NR17 — £220,000 • 2 bed • 1 bath • 543 ft²
2 bedroom semi-detached house for sale in Westfields, Attleborough, NR17 — £220,000 • 2 bed • 1 bath • 688 ft²
3 bedroom semi-detached house for sale in Briar Gardens, Attleborough, NR17 — £290,000 • 3 bed • 2 bath • 548 ft²
2 bedroom terraced house for sale in Teasel Road, Attleborough, Norfolk, NR17 — £200,000 • 2 bed • 1 bath • 564 ft²
2 bedroom terraced house for sale in New North Road, Attleborough, Norfolk, NR17 — £180,000 • 2 bed • 1 bath • 756 ft²






































