Grade II listed two-bed flat near Margate beach and station, chain-free.
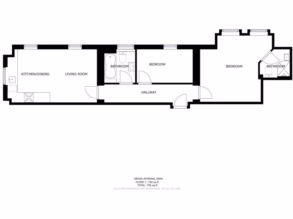
First-floor two-bedroom apartment with en-suite bathroom
Set within a Grade II listed Georgian block close to Margate seafront, this first-floor two-bedroom apartment combines period character with practical modern living. The open-plan kitchen/reception benefits from high ceilings, sash windows and oak-effect flooring, while the master bedroom includes an en-suite. Secure underground parking and lift access add everyday convenience.
The property is offered chain-free with a long lease (approx. 117 years) and integral appliances included. Its location minutes from the beach and Margate station makes it suitable for commuters or holiday-let investors seeking strong seasonal demand.
There are important considerations: the building’s listed status may restrict alterations and could complicate consents. Ongoing ownership costs include a c.£1,600pa service charge and £250pa ground rent. The surrounding area scores high for crime and is classified as very deprived, which may affect resale and lettings in parts of the year.
Overall, this apartment is a characterful, well-located seaside flat with clear rental and lifestyle appeal, but buyers should factor in conservation constraints, running costs, and local area challenges before committing.
2 bedroom flat for sale in Former Nurses Residence, 38 Canterbury Road, Margate, Kent, CT9 — £230,000 • 2 bed • 1 bath • 829 ft²
2 bedroom flat for sale in Canterbury Road, Margate, CT9 — £185,000 • 2 bed • 2 bath • 759 ft²
2 bedroom flat for sale in Royal Seabathing, Canterbury Road, Margate, Kent, CT9 — £210,000 • 2 bed • 2 bath • 644 ft²
2 bedroom flat for sale in Canterbury Road, Margate, CT9 — £165,000 • 2 bed • 1 bath • 639 ft²
2 bedroom flat for sale in Canterbury Road, Margate, CT9 — £230,000 • 2 bed • 1 bath • 721 ft²
2 bedroom flat for sale in Canterbury Road, Margate, CT9 — £250,000 • 2 bed • 2 bath • 797 ft²


































