Chain-free lower-ground home minutes from Kensington High Street and Hammersmith.
Own private entrance and rear garden accessed from main bedroom
Chain-free sale with a long lease (189 years from 2010)
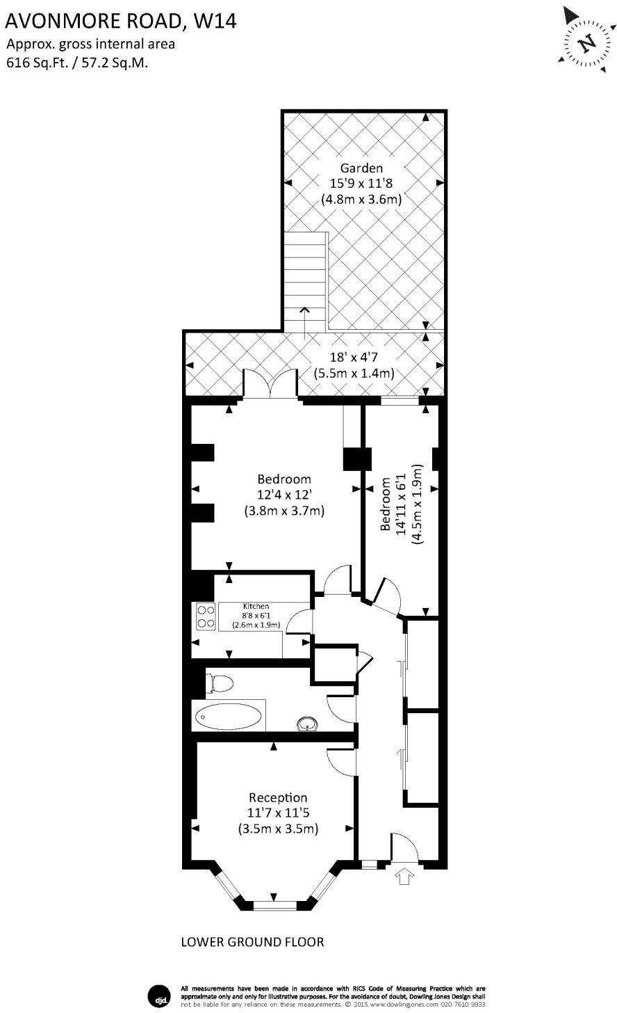
616 sq ft lower-ground two-bedroom apartment
Bay-fronted reception provides good internal light to front
EPC C, mains gas boiler with radiators
Service charge approx £3,720 pa; ground rent N/A
Solid brick Victorian construction; likely no cavity insulation
Lower-ground position — reduced light compared with upper floors
A lower-ground two-bedroom apartment arranged within a Victorian mid-terrace, offered chain free with a long lease (189 years from 2010). The property has its own private entrance and a rare, private rear garden accessed from the main bedroom via French doors — a valuable outdoor space for this part of West Kensington. The accommodation totals 616 sq ft and includes a bay-fronted reception, compact kitchen and a modern bathroom.
The flat is presented in good order and benefits from mains gas central heating and an EPC rating of C. Local transport is strong with West Kensington, Barons Court and Kensington Olympia all within reach, and both Kensington High Street and Hammersmith amenities are close by. Several highly regarded primary and independent schools are nearby, making the location suitable for small families or professional sharers.
Buyers should note material facts: this is a lower-ground (basement) flat so natural light is more limited than upper-floor flats; the building is of solid brick construction with assumed no cavity insulation; and the annual service charge is approximately £3,720. Tenure is leasehold (long lease), ground rent nil, and council tax band D. Overall this is an economical central London two-bed with a private outdoor space — attractive for first-time buyers seeking long-term value or for investors wanting a well-located rental asset.
2 bedroom flat for sale in Sinclair Road, London W14 — £750,000 • 2 bed • 2 bath • 822 ft²
2 bedroom flat for sale in Avonmore Road, London, W14 — £599,000 • 2 bed • 1 bath • 581 ft²
2 bedroom apartment for sale in Gunterstone Road, London, W14 — £925,000 • 2 bed • 2 bath • 973 ft²
2 bedroom flat for sale in Matheson Road, West Kensington, W14 — £675,000 • 2 bed • 1 bath • 489 ft²
2 bedroom flat for sale in Holland Road, West Kensington, W14 — £825,000 • 2 bed • 2 bath • 925 ft²
2 bedroom flat for sale in Gwendwr Road, London, W14 — £600,000 • 2 bed • 1 bath • 721 ft²






































