Central period home with renovation potential and enclosed courtyard.
Grade II listed mid-terrace with strong period character
Chain free sale — ready for a quick purchase
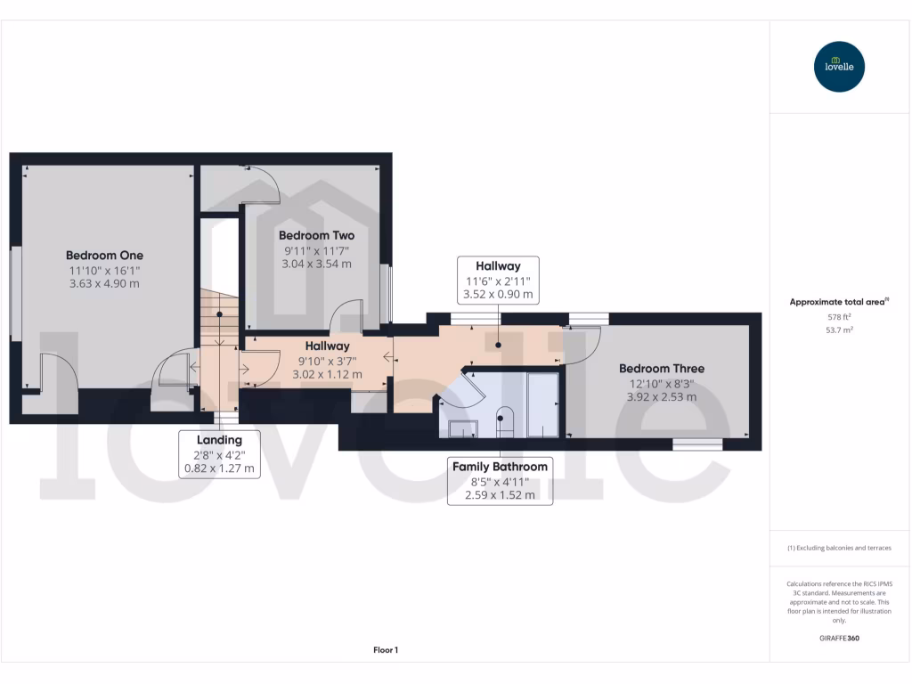
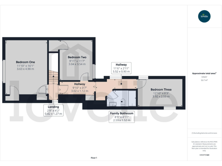
Three double bedrooms; approx. 124 sqm / 1,335 sq ft
Central town location — walking distance to amenities and schools
Requires cosmetic refurbishment throughout; worn finishes visible
Listed status may restrict alterations and raise specialist costs
Solid brick construction likely uninsulated; consider insulation costs
Fully enclosed rear courtyard; limited external garden space
This Grade II listed, three-bedroom terraced house sits in the heart of Barton-upon-Humber, a short walk from shops, pubs and schools. Period features — high ceilings, sash windows and original fireplace surrounds — give clear character and charm. The property offers a generous 124 sq m (approx. 1,335 sq ft) of living space across two floors, with a lounge, dining room, fully equipped kitchen, utility room, downstairs shower room, and a first-floor family bathroom.
The home is chain free and ready for new owners, but it does require cosmetic refurbishment to bring it up to contemporary standards. Photographs and description show worn finishes and stained carpets; potential buyers should expect decorating, flooring and modernisation work. As a listed building, any structural or exterior changes will be subject to listed-building constraints and may involve specialist materials and permissions, which can add time and cost.
Constructed before 1900 with solid brick walls (likely uninsulated), the house is heated by a mains gas boiler and radiators and currently has an EPC rating of D. There is a fully enclosed rear courtyard — low-maintenance outdoor space rather than a garden — suitable for relaxing or a patio. Broadband speeds are fast and mobile signal is good indoors and outdoors.
This property will suit buyers who value central location and period character and are prepared to invest in sympathetic updating. It also offers scope for refurbishment-driven value uplift, making it of interest to owner-occupiers seeking a character home or investors targeting improvement potential. Note the area records higher local crime statistics; prospective purchasers should factor neighbourhood considerations into their decision.
2 bedroom character property for sale in Kingsgarth, Barton-upon-Humber, North Lincolnshire, DN18 — £139,000 • 2 bed • 1 bath • 527 ft²
3 bedroom terraced house for sale in Dam Road, Barton-upon-Humber, North Lincolnshire, DN18 — £127,500 • 3 bed • 1 bath • 861 ft²
3 bedroom end of terrace house for sale in Fleetgate, Barton Upon Humber, North Lincs, DN18 — £130,000 • 3 bed • 3 bath • 858 ft²
2 bedroom terraced house for sale in Chapel Lane, Barton-upon-Humber, Lincolnshire, DN18 — £150,000 • 2 bed • 2 bath • 1057 ft²
4 bedroom detached house for sale in Whitecross Street, Barton Upon Humber, North Lincolnshire, DN18 — £700,000 • 4 bed • 3 bath • 3796 ft²
3 bedroom end of terrace house for sale in Whitecross Street, Barton-upon-Humber, North Lincolnshire, DN18 — £197,500 • 3 bed • 2 bath • 1216 ft²










































































































