Compact contemporary living with sea views and private parking.
Panoramic sea-facing windows and private balcony
Lift to all upper levels for easy access
Contemporary kitchen with integrated appliances
Freehold tenure with private off-street parking
Communal garden grounds and pleasant shared landscaping
Compact footprint — about 510 sq ft (small overall size)
Single bathroom only; best for downsizers or couples
Wider area classified as very deprived — consider resale factors
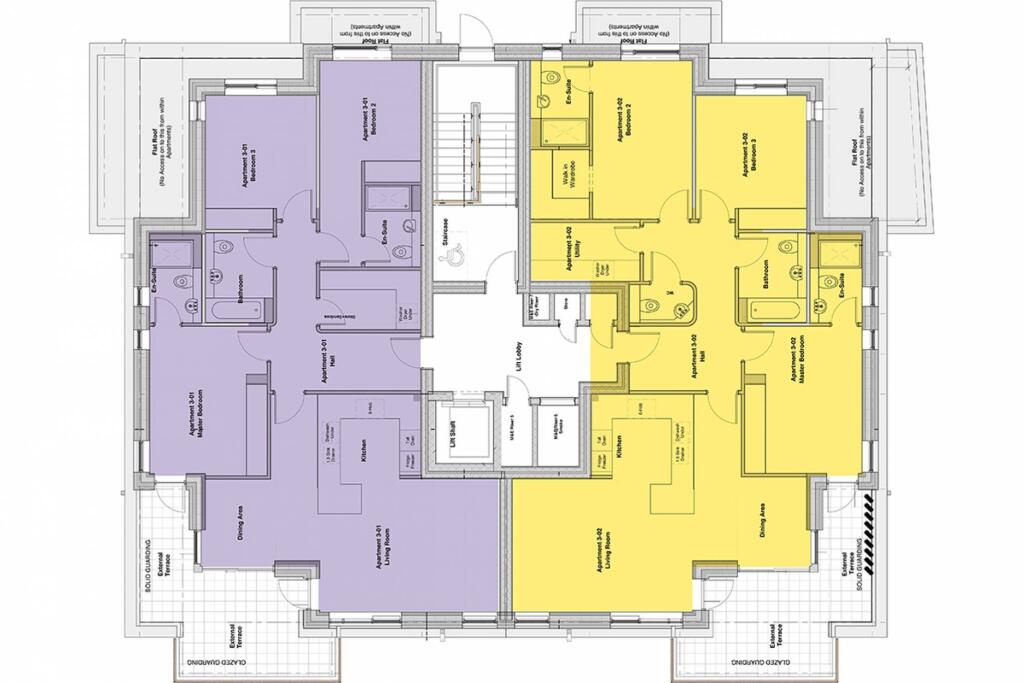
This modern two-bedroom apartment in the Vista Development offers compact, well-specified living with coastal outlooks and lift access. Built by Glenrowan Homes, the development has large windows, private balconies and contemporary fitted kitchens with integrated appliances. The apartment is freehold and includes off-street parking and communal garden grounds.
The layout is efficient at about 510 sq ft; both bedrooms are double sized and one of the development's two-bedroom types benefits from an en-suite and walk-in wardrobe. Open-plan living maximises natural light and the building’s glazed façade gives a strong sense of openness and connection to the outdoors. Mobile signal and broadband speeds are excellent, supporting remote working or streaming.
Buyers should note the apartment’s modest overall footprint and single main bathroom — space is best suited to downsizers or those seeking low-maintenance coastal living rather than large-family requirements. The wider neighbourhood is classified as very deprived, which may impact local services and resale considerations. Overall, this is a well-finished, low-upkeep flat with strong connectivity and pleasant sea-facing aspects.
2 bedroom flat for sale in Vista Development - 2nd Floor Apartment 12 Brisbane Street, Largs, North Ayrshire, KA30 8QW, KA30 — £299,999 • 2 bed • 2 bath • 6393 ft²
2 bedroom flat for sale in Vista Development - 1st Floor Apartment 8 Brisbane Street, Largs, North Ayrshire, KA30 8QW, KA30 — £285,000 • 2 bed • 2 bath • 6390 ft²
2 bedroom flat for sale in Vista Development - 2nd Floor Apartment 9 Brisbane Street, Largs, KA30 8QW, KA30 — £299,999 • 2 bed • 2 bath • 5579 ft²
2 bedroom flat for sale in Vista Development - 1st Floor Apartment 7 Brisbane Street, Largs, North Ayrshire, KA30 8QW, KA30 — £285,000 • 2 bed • 2 bath • 4169 ft²
2 bedroom ground floor flat for sale in Vista Development - GF Apt 2 Brisbane Street, Largs, KA30 8QW, KA30 — £253,999 • 2 bed • 2 bath • 6550 ft²
2 bedroom flat for sale in 10 Waters Edge, Skelmorlie, PA17 5EB, PA17 — £145,000 • 2 bed • 1 bath • 624 ft²










































































































































































































































































