Vacant three-bed refurbishment opportunity near Doncaster amenities and schools.
- Vacant freehold mid-terrace, approx 775 sqft
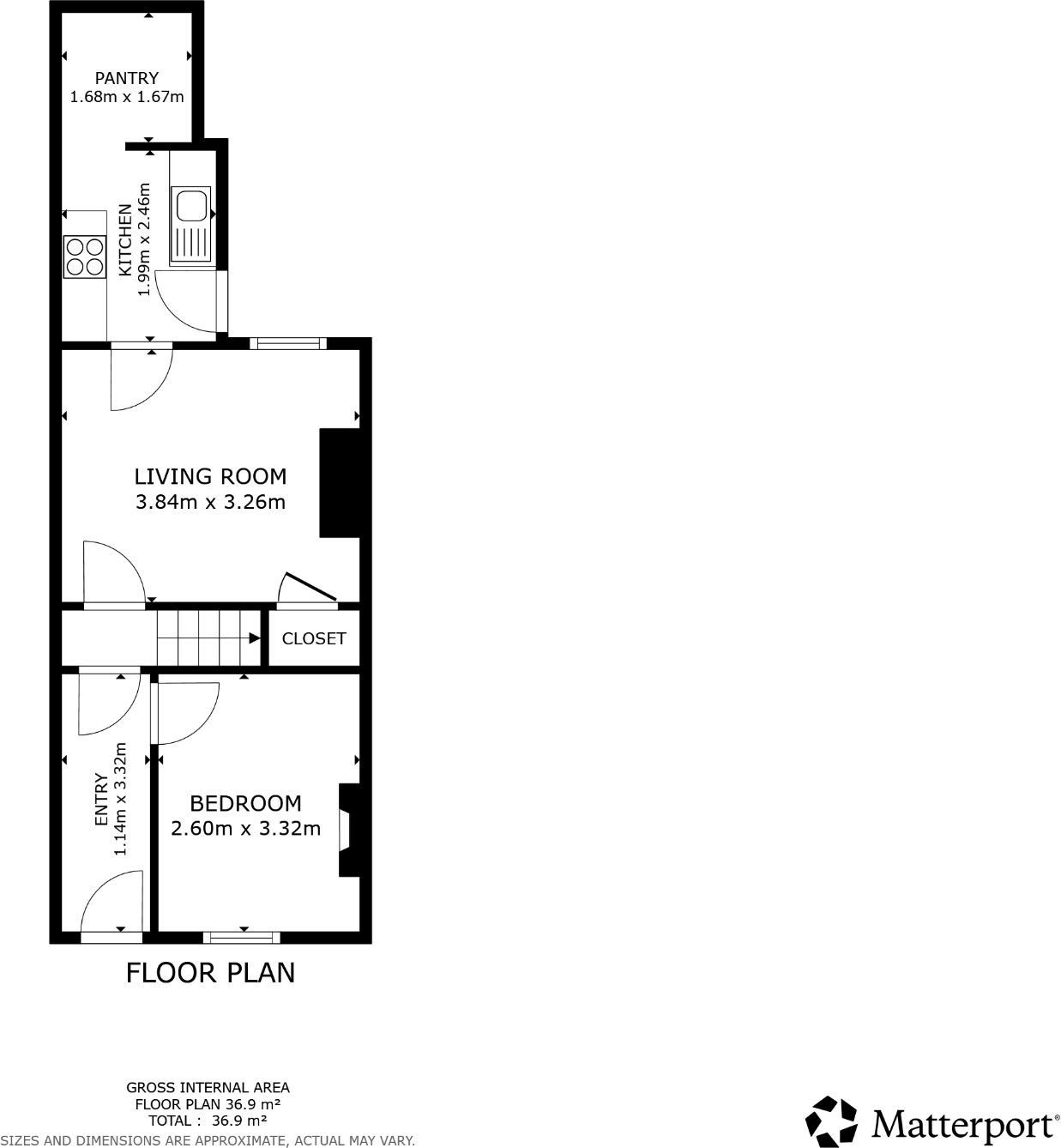
A small three-bedroom mid-terraced Victorian house offered vacant and freehold, suited to investors or developers seeking a straightforward refurbishment project in Doncaster DN4. The property provides basic living accommodation across two storeys, a compact rear garden, and on-street parking. Broadband and mobile signal are good, and there are several local schools with Good Ofsted ratings nearby.
The house shows visible signs of neglect: boarded windows, security bars, dated interiors and external wear consistent with a long vacancy. The layout is traditional and straightforward, making it practical to reconfigure or modernise. Total floor area is about 775 sqft, so works can be focused and cost-controlled compared with larger properties.
Location drivers are its vacant status and low asking price, which may suit buy-to-let, refurbishment for resale, or conversion by a developer. Note the immediate area is classified as very deprived with very high crime levels; these factors will influence rental values, insurance and tenant risk assessments. There is no flood risk recorded.
Serious purchasers should budget for remedial works (cosmetic and likely mechanical/electrical upgrades) and may wish to request the Let Property Pack for full investment details. The property is best targeted at experienced investors or developers familiar with regeneration projects in urban, higher-risk neighbourhoods.
2 bedroom terraced house for sale in Rose Avenue, Doncaster, DN4 — £75,000 • 2 bed • 1 bath • 882 ft²
3 bedroom terraced house for sale in Glenfield Avenue, Doncaster, South Yorkshire, DN4 — £124,000 • 3 bed • 1 bath
3 bedroom terraced house for sale in St. Catherines Avenue, Doncaster, DN4 — £90,000 • 3 bed • 1 bath • 861 ft²
3 bedroom terraced house for sale in Norman Crescent, Doncaster, DN11 — £80,000 • 3 bed • 1 bath • 883 ft²
2 bedroom terraced house for sale in Gladstone Road, Doncaster, DN4 — £85,000 • 2 bed • 2 bath • 775 ft²
3 bedroom terraced house for sale in Warde Avenue, Doncaster, South Yorkshire, DN4 9DY, DN4 — £80,000 • 3 bed • 1 bath • 969 ft²


































































































