Ready-to-move-in modern flat with parking and balcony near transport links.
Chain free and ready to occupy or let
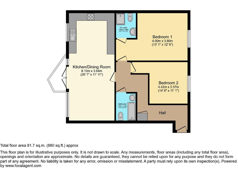
Private balcony off open-plan living room
Secure underground off-street parking space
Two double bedrooms; master with en-suite shower
Modern fitted kitchen with integrated appliances
Leasehold with 114 years remaining (confirm details)
Ground rent and service charge currently TBC; check costs
This bright, move-in-ready two-bedroom flat on the first floor offers a straightforward step onto the London property ladder. The open-plan living room and modern fitted kitchen open onto a private balcony, creating a flexible living and dining space ideal for everyday life or letting.
Practical features include two bathrooms (an en-suite to the master), secure underground parking and built-after-2012 construction with double glazing. At about 880 sq ft the layout feels generous for a two-bedroom apartment and the long lease (114 years remaining) gives medium-term security.
Buyers should note a few material points: the property is leasehold and ground rent and service charge levels are currently unconfirmed and should be checked by your solicitor. Heating runs on electric boiler and radiators, broadband speeds are average, and the surrounding area scores as more deprived than average — factors that may influence running costs and resale or rental expectations.
Overall, this is a well-presented home in a convenient NW9 location close to schools, shops and transport links into central London. It will suit first-time buyers wanting a ready-made home, or investors looking for a lettable modern apartment, provided service charge and ground rent details meet their requirements.
2 bedroom apartment for sale in Butterfly Court, Acklington Drive, NW9 — £325,000 • 2 bed • 2 bath • 679 ft²
2 bedroom flat for sale in Lark Court, Lanacre Avenue, Colindale, NW9 — £340,000 • 2 bed • 2 bath • 593 ft²
2 bedroom flat for sale in Parson Street, Hendon Hall Court, NW4 — £400,000 • 2 bed • 1 bath • 802 ft²
2 bedroom apartment for sale in Hannah Court, Sunningdale Gardens, Kingsbury, London, NW9 — £325,000 • 2 bed • 1 bath • 645 ft²
2 bedroom apartment for sale in Rose Bates Drive, Kingsbury, London, NW9 — £365,000 • 2 bed • 1 bath • 645 ft²
2 bedroom flat for sale in Coxwell Boulevard, London, NW9 — £420,000 • 2 bed • 2 bath • 883 ft²


















































