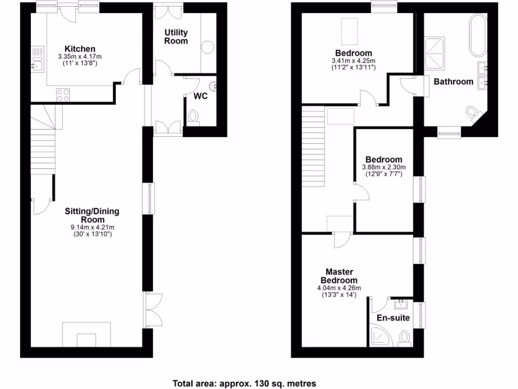
**Standout Features:**
- Three-bedroom barn conversion, chain-free and freehold
- Open plan living/dining room with wood-burning stove
- Master bedroom with ensuite and two additional bedrooms
- Spacious family bathroom with freestanding bath and walk-in shower
- Large garden with private outdoor seating area
- Parking space available
- Excellent mobile signal, EPC Rating C70
**Potential Concerns:**
- Broadband speeds are very slow
- Currently utilized as a holiday let, may require updates for full-time living
Nestled in the serene hamlet of Tughall Steads, this charming three-bedroom barn conversion combines rustic elegance with modern comfort, making it an ideal buy for families, investors, or those seeking a peaceful getaway. The open plan living and dining area, enhanced by a cozy wood-burning stove and traditional exposed beams, creates a perfect space for entertaining or relaxing. Each of the three bedrooms offers ample space, with the master suite featuring a private ensuite for added convenience.
The property boasts a generous outdoor space with a large garden and patio, ideal for enjoyment during warmer months. With nearby attractions like Beadnell Bay and the vibrant market town of Alnwick, you'll enjoy both coastal and countryside living. Though the property currently functions as a second home/holiday rental, it holds significant potential for full-time living or further renovations. Don’t miss the opportunity to make this beautiful barn your own—a perfect blend of comfort, charm, and rural tranquility awaits!
4 bedroom barn conversion for sale in High Barn, Harehope Farm, Eglingham, Alnwick, Northumberland, NE66 — £695,000 • 4 bed • 5 bath • 1988 ft²
4 bedroom barn conversion for sale in Wandylaw, Chathill, NE67 — £575,000 • 4 bed • 5 bath • 2509 ft²
3 bedroom barn conversion for sale in Broadwood House, Tughall Steads, near Beadnell, Chathill, Northumberland, NE67 — £395,000 • 3 bed • 2 bath • 1879 ft²
3 bedroom barn conversion for sale in Budle Barns, Easington, Northumberland, NE70 — £495,000 • 3 bed • 3 bath • 1301 ft²
3 bedroom house for sale in Budle Barns, Easington, Bamburgh, Northumberland, NE70 — £500,000 • 3 bed • 3 bath • 1283 ft²
2 bedroom bungalow for sale in North Farm Mews, Rennington, NE66 — £365,000 • 2 bed • 1 bath • 1551 ft²






































































































































