Rare single-storey home with approved plans for sizable extension and loft conversion.
Chain-free two double bedroom bungalow
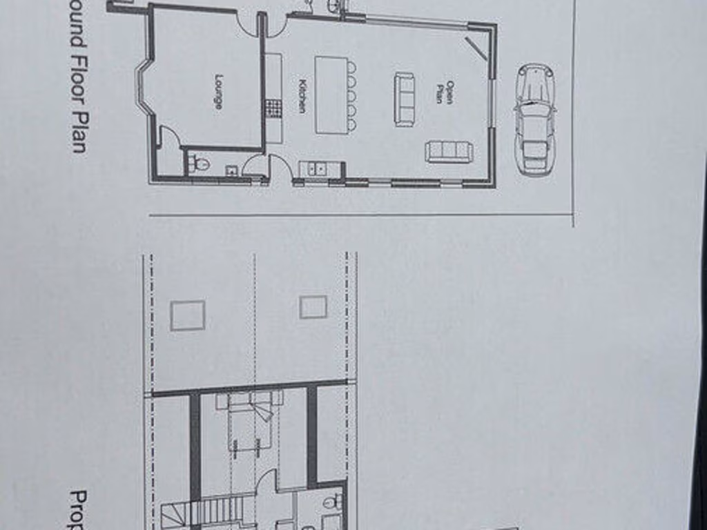
This chain-free two-bedroom bungalow on Fairham Drive offers immediate comfort with clear scope to add value. The property is freehold, approximately 685 sq ft, and sits on a decent plot with a private laid-to-lawn garden and rear storage shed.
A major plus is granted planning permission (approved 14/09/2023) for a front porch, single-storey rear extension, loft conversion, external insulation and rendering, and a rear driveway — providing a straightforward route to more living space and improved energy performance (vendor-supplied details). The layout currently includes two double bedrooms, a generous living room, separate dining room, and a modern-style kitchen.
Buyers should be aware this is a traditional, system-built semi with no known built-in wall insulation (assumed). External insulation and rendering are in the planning consent, but upgrade works will be required to improve thermal efficiency and long-term running costs. The property has mains gas central heating, double glazing (post-2002), and low flood risk.
Located close to Wollaton Park and good schools, the house suits downsizers wanting single-level living, first-time buyers seeking a manageable home with growth potential, or investors targeting renovation uplift. Broadband and mobile signals are strong, local crime and flood risk are low, and public transport links serve Nottingham city and the university well.
4 bedroom bungalow for sale in Sutton Passeys Crescent, Wollaton, Nottingham, NG8 — £425,000 • 4 bed • 2 bath • 1428 ft²
2 bedroom detached bungalow for sale in Kinross Crescent, Beechdale, NG8 — £190,000 • 2 bed • 1 bath • 841 ft²
2 bedroom bungalow for sale in Woodhall Road, Nottingham, NG8 — £220,000 • 2 bed • 1 bath • 523 ft²
2 bedroom bungalow for sale in Birdsall Avenue, Wollaton Village, Nottingham, NG8 — £335,000 • 2 bed • 1 bath • 797 ft²
2 bedroom bungalow for sale in Stanstead Avenue, Nottingham, Nottinghamshire, NG5 — £290,000 • 2 bed • 1 bath • 766 ft²
2 bedroom bungalow for sale in Buxton Avenue, Carlton, Nottingham, Nottinghamshire, NG4 — £220,000 • 2 bed • 1 bath • 635 ft²










































