Affordable new-build three-bed ideal for first-time buyers near Chippenham amenities.
["40% shared equity purchase — £134,000 share","Monthly rent £460.63; service charge £29.82","New build (2023) with gas central heating and double glazing","Leasehold with c.990 years remaining","Allocated off-street parking included","Small, enclosed rear garden — low maintenance","Single family bathroom; bedrooms small-to-medium","Approx. 904 sq ft; modest overall footprint"]
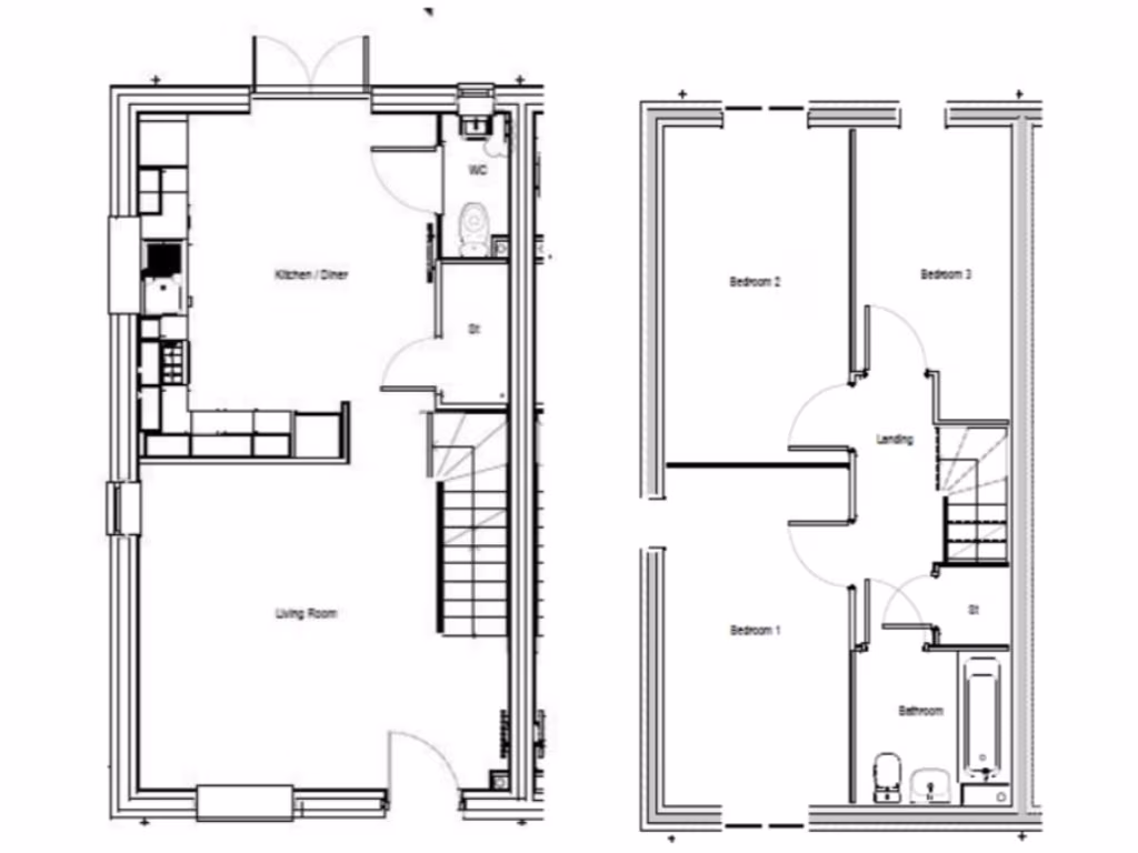
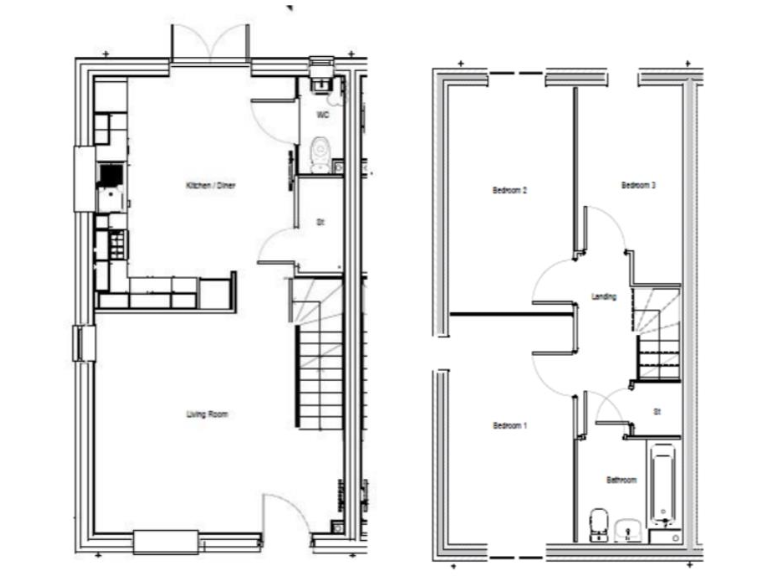
This modern three-bedroom mid-terrace offers an affordable route onto the property ladder via a 40% shared equity purchase. Built in 2023, the home is low-maintenance with contemporary fittings, gas central heating and double glazing, ready for immediate occupation with minimal initial works.
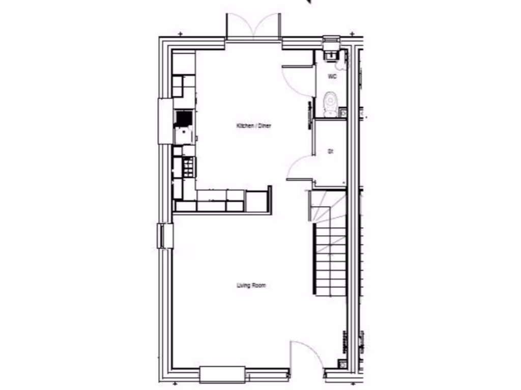
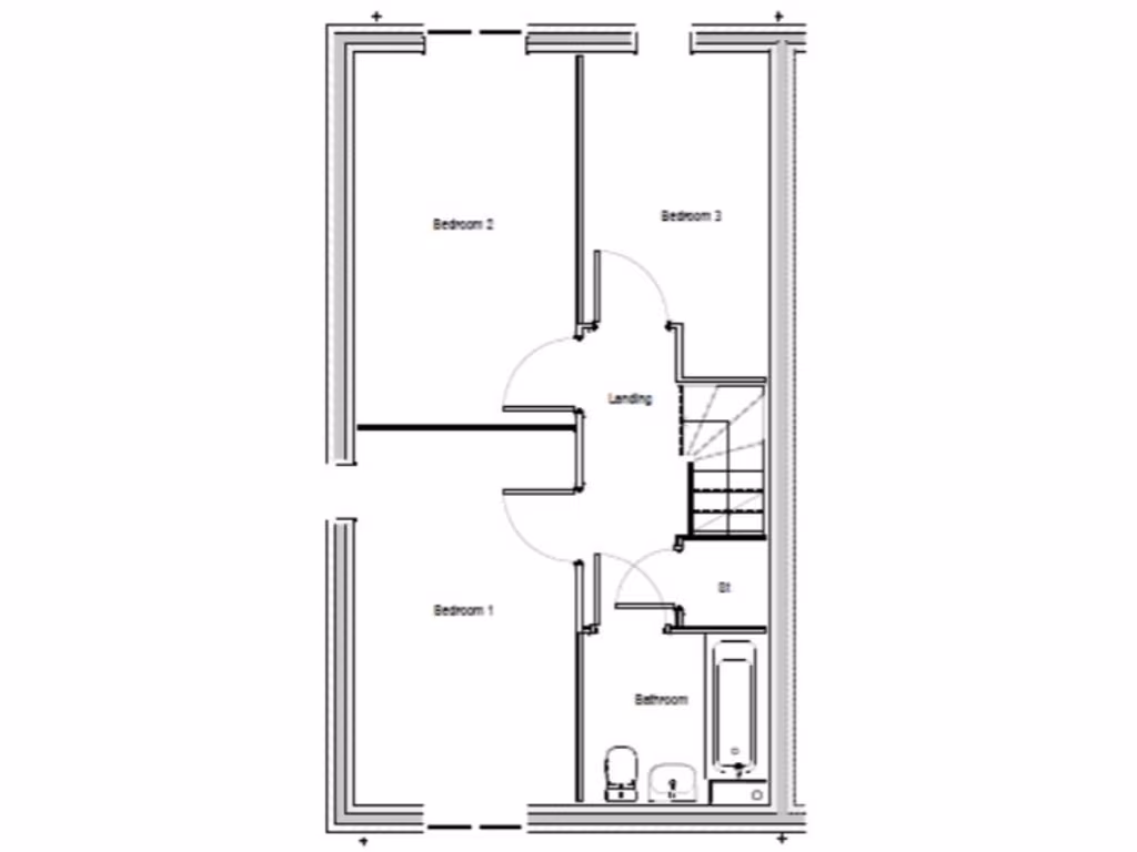
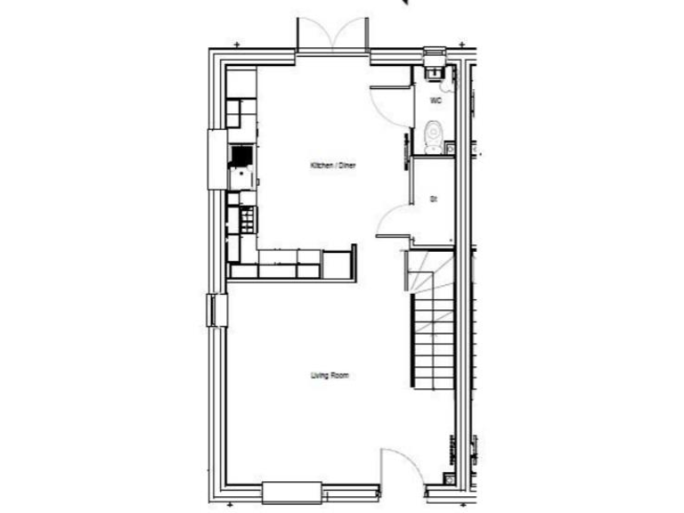
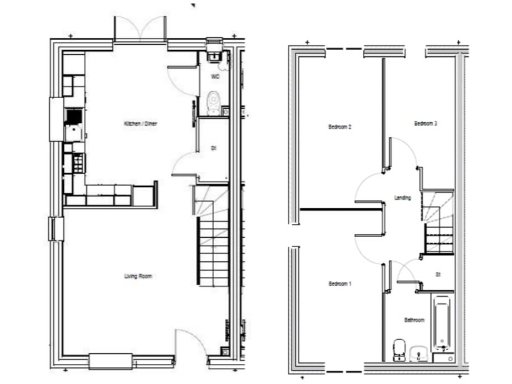
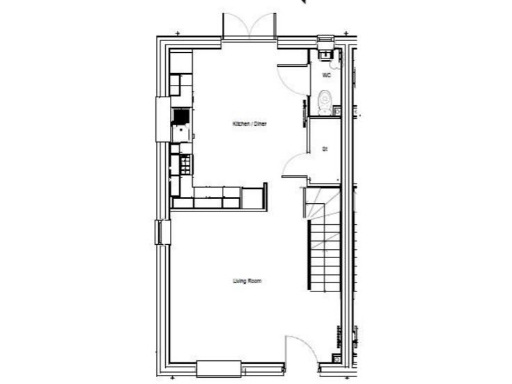
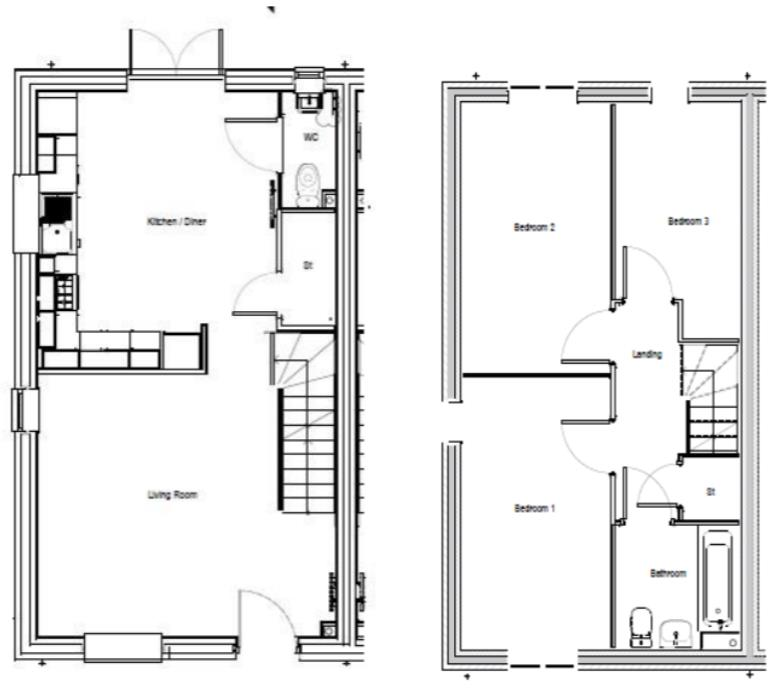
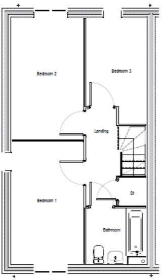
The ground floor has an open-plan kitchen/diner opening onto a small, private rear garden, plus a separate living room and a downstairs cloakroom — practical for everyday family life and occasional entertaining. Upstairs provides a principal bedroom, two further bedrooms and a family bathroom; room sizes suit a single occupant, couple or small family.
Key costs are transparent: the 40% share is £134,000, with monthly rent of £460.63 and a service charge of £29.82. The property is leasehold with c.990 years remaining. Parking is allocated off-street which adds convenience in this village setting.
Considerations: the plot and garden are modest, so buyers seeking large outdoor space should look elsewhere. This home is best suited to first-time buyers or those wanting a relatively maintenance-free, modern starter home in Chippenham with good broadband and easy access to local schools and commuter routes.
3 bedroom house for sale in Foundry Lane, Chippenham, Wiltshire, SN15 — £86,250 • 3 bed • 1 bath • 641 ft²
2 bedroom apartment for sale in Gainey Gardens, Chippenham, Wiltshire, SN15 — £100,000 • 2 bed • 1 bath • 626 ft²
2 bedroom flat for sale in Foundry Lane, Chippenham, Wiltshire, SN15 — £57,500 • 2 bed • 1 bath • 530 ft²
2 bedroom house for sale in Foundry Lane, Chippenham, Wiltshire, SN15 — £71,250 • 2 bed • 1 bath • 614 ft²
2 bedroom ground floor flat for sale in Foundry Lane, Chippenham, SN15 — £115,000 • 2 bed • 2 bath • 654 ft²
1 bedroom flat for sale in Foundry Lane, Chippenham, Wiltshire, SN15 — £46,250 • 1 bed • 1 bath • 440 ft²










































































