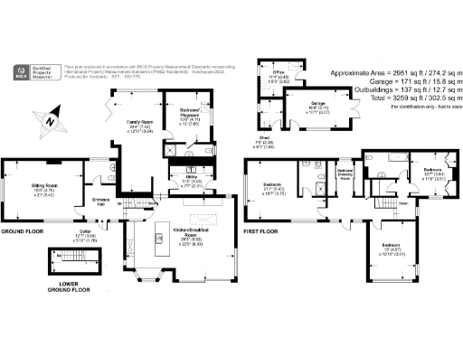
**Standout Features:**
- Five spacious bedrooms, including an en-suite and versatile playroom/bedroom.
- Modern open-plan kitchen/breakfast room with high-end appliances and an island.
- Generously sized sitting and family rooms with abundant natural light and fireplaces.
- Attractive, landscaped gardens with terracing for outdoor enjoyment.
- Home office adjacent to the garage with carport and garden store.
- Eco-friendly features: solar panels.
- Freehold tenure, chain-free sale.
**Concise Summary:**
Discover this stunning Victorian detached home, perfectly situated bordering the idyllic Ashdown Forest, offering a serene escape with just over 2,951 square feet of living space. This beautifully maintained property boasts five spacious bedrooms, including a versatile playroom that can serve as a fifth bedroom, ideal for families seeking comfort and flexibility. The heart of the home features a contemporary open-plan kitchen, outfitted with top-quality appliances, seamlessly flowing into expansive living and family areas bathed in natural light.
The attractive outdoor space, complete with terraced areas and mature hedging, provides privacy and tranquility—perfect for entertaining or family relaxation. With a home office for remote work or study, plus a utility room for added convenience, this property meets the demands of modern living while retaining its charming character. Despite a relatively high council tax rate, the low crime in the area and excellent local amenities—including reputable schools—make this a desirable and safe choice for families or investors looking for a countryside retreat with great potential. Don’t miss out on this unique opportunity!
5 bedroom detached house for sale in Ashdown Road, Forest Row, East Sussex, RH18 — £1,425,000 • 5 bed • 3 bath • 3371 ft²
5 bedroom detached house for sale in Stonepark Drive, Forest Row, East Sussex, RH18 — £875,000 • 5 bed • 3 bath • 2600 ft²
7 bedroom detached house for sale in Dale Road, Forest Row, East Sussex, RH18 — £1,500,000 • 7 bed • 5 bath • 3652 ft²
4 bedroom character property for sale in Lewes Road, Forest Row, RH18 — £680,000 • 4 bed • 1 bath • 1453 ft²
5 bedroom detached house for sale in Balfour Gardens, Forest Row, East Sussex, RH18 — £2,500,000 • 5 bed • 5 bath • 5454 ft²
5 bedroom detached house for sale in Butcherfield Lane, Hartfield, East Sussex, TN7 — £1,400,000 • 5 bed • 2 bath • 3561 ft²










































































































































