Consent in place for a secluded holiday cottage near Edinburgh and outdoor amenities.
Planning permission for detached self‑catering holiday cottage (Ref 19/00367/PPP)
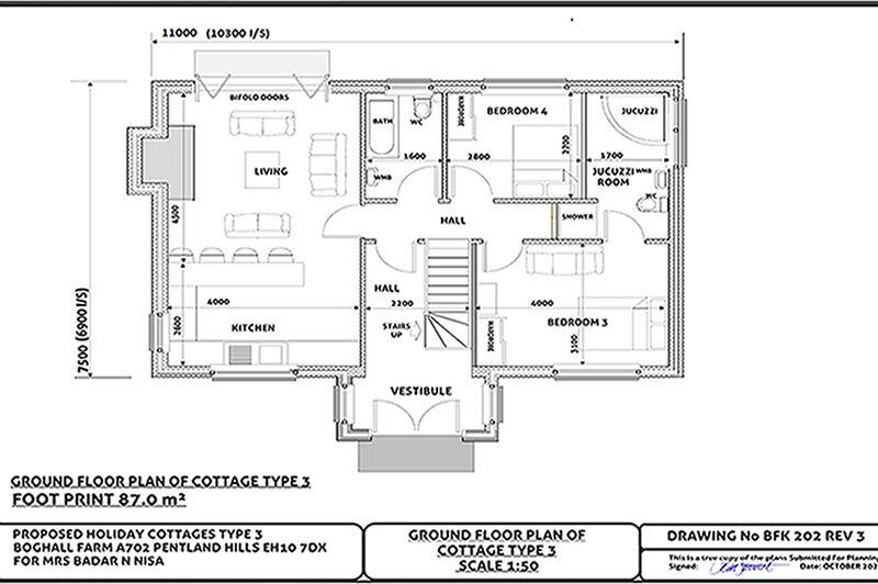
A rare development parcel on the edge of the Pentland Hills with planning permission for a detached self-catering holiday cottage (Midlothian Ref: 19/00367/PPP). The site sits within an affluent rural fringe and benefits from strong recent sales evidence nearby, making it especially attractive to short‑let or small development investors targeting outdoors and country‑stay markets.
The plot offers immediate development potential — permission is already in place — and excellent connectivity: about one mile from the A720 bypass for direct links to Edinburgh, the airport and central Scotland. Outdoor amenities are a major draw: hillwalking, cycling, horse riding, golf and a nearby ski centre all support holiday‑let demand throughout the year.
Buyers should note this lot is being sold at timed online auction with enhanced terms and a buyers fee; prospective purchasers must check the auction conditions and any minimum fee. Practical downsides include very slow broadband on site, an unclear tenure, and local area deprivation statistics that may affect long‑term community services. The plot suit investors or developers prepared to complete the consented build and market it as a rural holiday cottage.
Land for sale in Plot 6, West of Boghall Farmhouse, Biggar Rd, Edinburgh, EH107DX, EH10 — £124,000 • 1 bed • 1 bath
Land for sale in 3, Harelaw, Development with Full Planning, Danderhall, Edinburgh, EH221SB, EH22 — £247,000 • 1 bed • 1 bath
Land for sale in Land, at Marshalls Court, Edinburgh New Town, EH1 3AA, EH1 — £111,000 • 1 bed • 1 bath • 1830 ft²
Land for sale in Plots at 5 - 9 Elm Row, Lasswade, Midlothian, EH18 — £195,000 • 1 bed • 1 bath
Commercial development for sale in 2 Fraser Avenue, Edinburgh, EH5 2AE, EH5 — £145,000 • 1 bed • 1 bath
Land for sale in West Ingliston Cottage (Formerly Ingliston Castle), 200 Glasgow Road, Edinburgh, EH28 8LY, EH28 — POA • 1 bed • 1 bath • 2605 ft²


































