Spacious period cottage with large gardens and full refurbishment potential.
Approximately 2,300 sq ft including outbuildings and large plot
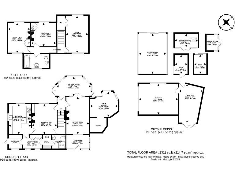
Park Cottage is a substantial detached three-bedroom house set on a large plot in Headley, offering around 2,300 sq ft including outbuildings and generous gardens. The property retains a rustic character—brickwork, wood cladding and a pitched conservatory roof—set back from the lane with a private drive and garage.
The house presents clear potential to refurbish and extend (STPP). For buyers who enjoy renovation projects, the sizable footprint, multiple outbuildings and attractive grounds provide scope to create additional living space or reconfigure rooms to modern standards. The setting is semi-rural with easy access to national trust walks, local amenities and several well-regarded schools nearby.
Practical considerations are straightforward: the home is oil‑fired with boiler and radiators, double glazing installed after 2002 and assumed cavity wall construction with no installed insulation. Broadband speeds are reported as slow and council tax is described as expensive. These factors, together with the building’s age and scale, mean upgrading and ongoing maintenance should be budgeted for.
This property suits a family seeking privacy and land in an affluent, rural setting or a buyer looking for a substantial renovation opportunity. Viewings are by appointment only due to the home’s private location.
4 bedroom detached house for sale in Cunliffe Close, Headley, KT18 — £1,450,000 • 4 bed • 3 bath • 2320 ft²
3 bedroom detached house for sale in Church Lane, Headley, KT18 — £850,000 • 3 bed • 1 bath • 1627 ft²
4 bedroom detached house for sale in Tilley Lane, Headley, Epsom, KT18 — £1,250,000 • 4 bed • 2 bath • 2670 ft²
3 bedroom semi-detached house for sale in Dale View, Headley, EPSOM, KT18 — £500,000 • 3 bed • 1 bath • 918 ft²
4 bedroom detached house for sale in Heath Lane, Albury, Guildford, Surrey, GU5 — £1,250,000 • 4 bed • 2 bath • 2279 ft²
3 bedroom semi-detached house for sale in North Looe, Reigate Road, Epsom, Surrey, KT17 — £895,000 • 3 bed • 2 bath • 1753 ft²














































































































