Modern open-plan apartment with parking and balcony, ideal for first-time buyers or investors.
Two bedrooms and two bathrooms
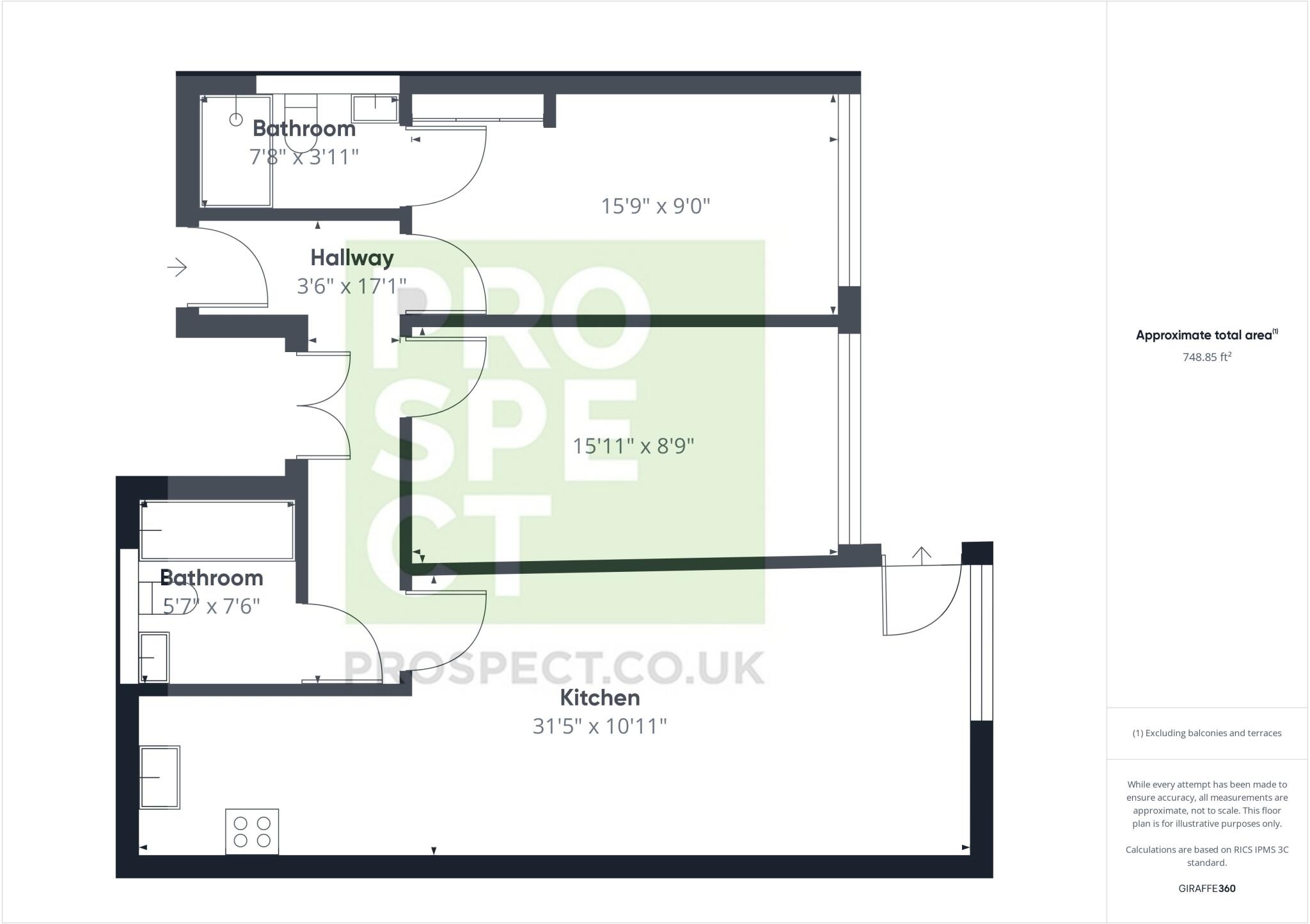
Large open-plan kitchen/living room (major selling point)
Covered balcony off the main living space
Two allocated off-street parking spaces
First-floor apartment with lift access
Leasehold with approx. 149 years remaining
Electric boiler and underfloor heating (running-cost consideration)
No onward chain for a quicker sale
A bright first-floor, two-bedroom apartment offering modern, open-plan living in central Maidenhead. The principal living space and very large kitchen/dining area are the apartment’s standout features, with a covered balcony providing outdoor space and natural light.
Practical benefits include two allocated off-street parking spaces, lift access and communal grounds. The flat is presented in a contemporary, neutral finish and will suit a first-time buyer or investor seeking a ready-to-move-in property with rental potential. There is no onward chain, which simplifies and speeds up sale.
Notable points to consider: the property is leasehold (circa 149 years remaining) and uses electric boiler and underfloor heating, which can affect running costs compared with gas heating. Bathrooms are compact and room sizes are average for this type of apartment, so buyers wanting larger bedrooms or expansive storage may need to modify layouts.
2 bedroom flat for sale in Oldfield Road, Maidenhead, SL6 — £395,000 • 2 bed • 2 bath • 757 ft²
2 bedroom apartment for sale in Boyn Valley Road, Maidenhead, Berkshire, SL6 — £385,000 • 2 bed • 2 bath • 786 ft²
2 bedroom apartment for sale in Oldfield Road, Maidenhead, SL6 — £425,000 • 2 bed • 2 bath • 889 ft²
2 bedroom flat for sale in Oldfield Road, Maidenhead, SL6 — £350,000 • 2 bed • 2 bath • 778 ft²
2 bedroom apartment for sale in Wallingford Way, Maidenhead, SL6 — £375,000 • 2 bed • 2 bath • 793 ft²
2 bedroom flat for sale in Amber Place, Oldfield Road, Maidenhead, Berkshire, SL6 1AG, SL6 — £365,000 • 2 bed • 2 bath • 847 ft²


































