Characterful four-bed maisonette with long lease and balcony near the beach.
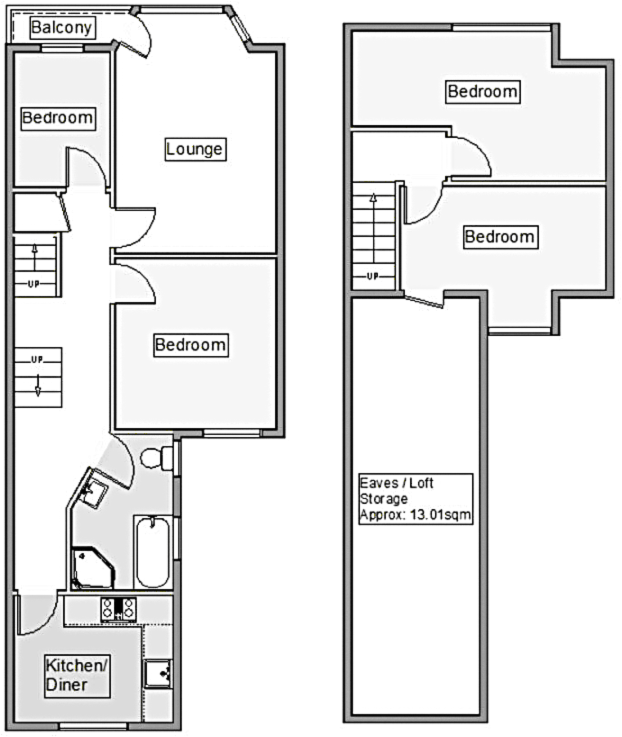
- Four bedrooms across two floors with bay-fronted lounge and balcony
- Brand new 999-year lease and 60% share of freehold
- Close to Felixstowe seafront and local amenities
- One bathroom serving four bedrooms; shared rear garden (50/50)
- Small overall plot and modest communal outdoor space
- Solid brick walls assumed uninsulated; glazing pre-2002
- Buildings insurance ~£400pa; no ground rent charged
- Area shows above-average crime and higher deprivation metrics
Light-filled period rooms and a seafront location make this four-bedroom maisonette a rare entry-level opportunity in Felixstowe. Arranged over the first and second floors of an Edwardian terrace, the home combines high ceilings, original features and a bay-fronted lounge opening onto a small balcony — perfect for morning sea air or a coffee break.
Practical points add security and convenience: a brand-new 999-year lease from 2024, a 60% share of freehold, no ground rent and a modest buildings insurance contribution (circa £400pa). The layout provides flexible sleeping space across two floors, and the fitted kitchen, modern four-piece bathroom and powered garden shed give ready-to-use accommodation for a main residence or holiday let.
Buyers should note the maisonette sits on a small overall plot with a shared rear garden (split 50/50 with the ground-floor flat) and just one bathroom for four bedrooms. The building’s solid brick walls likely lack historic insulation and the glazing dates from before 2002, so upgrading for comfort and efficiency may be desirable. The area scores above-average crime and local deprivation indicators, which prospective purchasers should factor into their choice.
Overall this is a compact but characterful seaside home that offers long lease security and immediate use. It will suit a first-time buyer or buyer seeking a holiday base who is prepared to accept shared outdoor space and consider targeted improvements to heating and insulation.
3 bedroom maisonette for sale in Cavendish Road, Felixstowe, IP11 — £189,950 • 3 bed • 1 bath • 883 ft²
3 bedroom flat for sale in Manning Road, Felixstowe, IP11 — £180,000 • 3 bed • 1 bath • 517 ft²
6 bedroom terraced house for sale in Sea Road, Felixstowe, IP11 — £575,000 • 6 bed • 2 bath • 2744 ft²
1 bedroom apartment for sale in Holland Road, Felixstowe, IP11 — £125,000 • 1 bed • 1 bath • 560 ft²
2 bedroom apartment for sale in Rosebery Court, Sea Road, IP11 — £195,000 • 2 bed • 1 bath • 626 ft²
4 bedroom town house for sale in Herman De Stern Walk, Felixstowe IP11 — £295,000 • 4 bed • 2 bath • 810 ft²














































































