### Standout Features:
- **Leasehold:** 125 years remaining from 2011
- **Property Type:** Retirement property, suitable for over 55s
- **Ownership:** 75% shared ownership
- **Location:** Second floor of a modern residential building with lift access
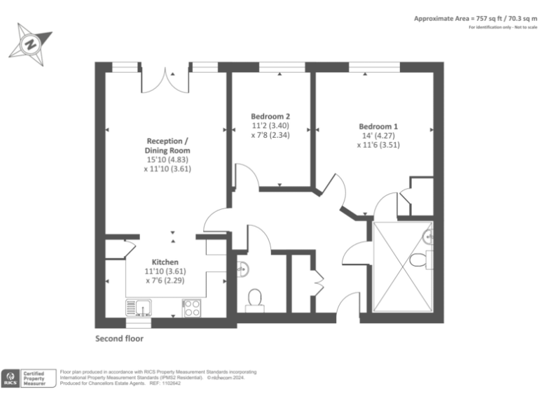
- **Size:** 2 bedrooms, 2 bathrooms, total of 757 sq ft
- **Monthly Costs:** Service charge of £545 and core care charge of £328
- **Community Amenities:** Assisted bathroom, communal gardens, and on-site “Extra Care” services
- **Accessibility to Services:** Close to local amenities with good transport links
### Summary:
Discover a well-designed top-floor apartment tailored for the over 55s, situated in a contemporary building that promotes an active, communal lifestyle. With 2 bedrooms and 2 bathrooms spanning 757 sq ft, this residence offers comfortable living on the second floor, complete with lift access for convenience. The property benefits from communal gardens and special "Extra Care" services, ensuring support and comfort amidst a welcoming community atmosphere.
Though the monthly service and care charges total approximately £873, the apartment is chain-free, providing potential buyers hassle-free living. Located within walking distance of local amenities and excellent transport links, it promises both accessibility and comfort. Notable nearby schools boast good Ofsted ratings, perfect for those looking to maintain a family-friendly environment.
With a leasehold of 125 years beginning in 2011, this property presents a unique opportunity to invest in a vibrant lifestyle that combines independence with essential care. Don't miss out on this inviting space designed for easy living—schedule your viewing today!
2 bedroom flat for sale in East Oxford, Oxfordshire, OX4 — £155,000 • 2 bed • 1 bath • 731 ft²
2 bedroom flat for sale in Kidlington, Oxfordshire, OX5 — £187,500 • 2 bed • 1 bath • 726 ft²
2 bedroom flat for sale in Oxford, Oxfordshire, OX4 — £160,000 • 2 bed • 1 bath • 811 ft²
2 bedroom apartment for sale in Craufurd Road, Cowley, East Oxford, OX4 — £157,000 • 2 bed • 1 bath • 750 ft²
2 bedroom retirement property for sale in East Oxford, Oxford, OX4 — £160,000 • 2 bed • 1 bath • 737 ft²
2 bedroom apartment for sale in The Moors, Kidlington, OX5 — £200,000 • 2 bed • 1 bath • 714 ft²










































