Charming village base with garden and roof terrace near the sea.
Open-plan sitting and dining room with feature open fireplace
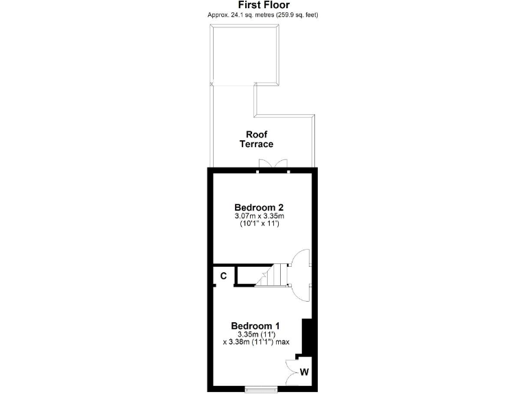
Two double bedrooms plus roof terrace accessed from rear bedroom
Enclosed rear garden and small front garden with mature planting
Compact overall size—approx 387 sq ft; limited internal space
Secondary glazing and cavity walls likely without insulation (assumed)
Heating by mains gas and room heaters; energy improvements possible
Freehold tenure with low council tax and fast broadband
Short walk to beach, harbour and village shops and amenities
This charming Victorian cottage sits in the heart of Bembridge, a short stroll from the beach, harbour and village amenities. The open-plan sitting and dining room with an open feature fireplace creates an immediate sense of character and warmth, while two double bedrooms and a roof terrace add unexpected versatility for outdoor sitting or pots and plants.
Externally the property benefits from an enclosed rear garden and a small front garden with mature planting — ideal for low-maintenance al fresco dining and summer entertaining. The house is compact (around 387 sq ft) and will suit buyers who prioritise location and character over generous internal space.
Practicalities to note: the house has secondary glazing and cavity walls likely without modern insulation, and heating relies on mains gas and room heaters. These features mean there is scope for energy-efficiency improvements and cosmetic updating. The home is freehold with low council tax, and the village setting suits those seeking convenience, seaside access and a village lifestyle.
Overall this is a characterful, centrally located cottage that will appeal to downsizers, couples or holiday-home buyers who want a charming base near Bembridge’s shops, schools and coast. It offers immediate curb appeal with straightforward renovation potential to improve comfort and efficiency.
2 bedroom semi-detached house for sale in Kings Road, Bembridge, Isle of Wight, PO35 — £275,000 • 2 bed • 1 bath • 582 ft²
2 bedroom semi-detached house for sale in Dennett Road, Bembridge, Isle of Wight, PO35 5XD, PO35 — £350,000 • 2 bed • 1 bath • 404 ft²
3 bedroom detached house for sale in High Street, BEMBRIDGE, Isle of Wight, PO35 — £350,000 • 3 bed • 2 bath • 902 ft²
4 bedroom semi-detached house for sale in Bembridge, Isle of Wight, PO35 — £399,000 • 4 bed • 3 bath • 893 ft²
4 bedroom semi-detached house for sale in 31 Foreland Road, Bembridge, Isle of Wight, PO35 5XN, PO35 — £500,000 • 4 bed • 3 bath • 697 ft²
2 bedroom end of terrace house for sale in CHARMING COTTAGE- Albert Street, Ventnor, PO38 — £229,950 • 2 bed • 1 bath • 602 ft²






















































































































