Bright apartment minutes from Brentwood station, ideal for first-time buyers.
Newly refurbished throughout, ready to occupy
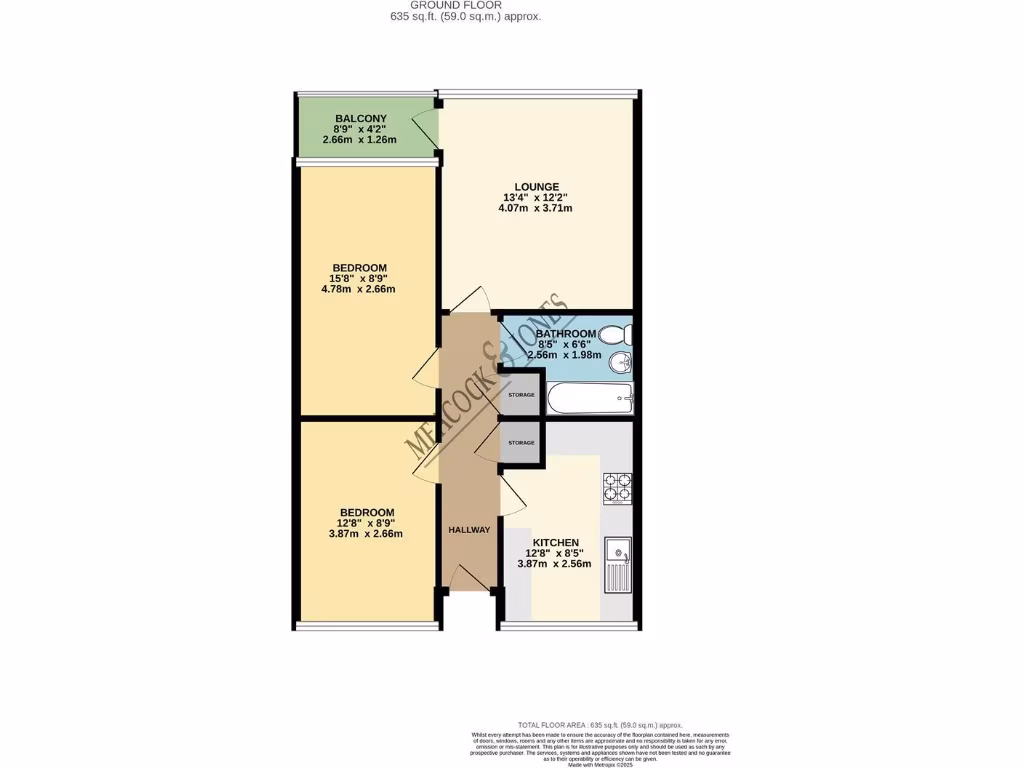
A freshly refurbished two-bedroom apartment on the second floor, ready to move into with no onward chain. The flat has a bright lounge opening onto a south-facing balcony, a modern fitted kitchen with integrated appliances and a contemporary bathroom — all recently renewed. At about 635 sq ft the layout is compact but practical, with attractive Amtico-style flooring and large windows that deliver pleasant views across Brentwood.
Location is the strongest asset: Brentwood mainline station (including Elizabeth Line services) is about 0.2 miles away, making commutes straightforward. Local amenities, parks and several well-rated schools are within easy reach. Fast broadband and excellent mobile signal support home working and streaming.
Buyers should note material facts plainly: the property is leasehold with 85 years remaining, which will require early lease extension and associated costs. The building is a mid-20th-century, system-built construction with assumed minimal wall insulation and double glazing installed before 2002. Permit on-street parking and an annual service charge of £845.05 apply. These factors affect running costs and may influence mortgage or resale options, so obtain lease and cost estimates early.
2 bedroom apartment for sale in Crescent Road, Brentwood, CM14 — £340,000 • 2 bed • 1 bath • 592 ft²
2 bedroom flat for sale in Cameron Close, Warley, Brentwood, CM14 — £260,000 • 2 bed • 1 bath • 699 ft²
1 bedroom apartment for sale in Shevon Way, Brentwood, Essex, CM14 — £197,500 • 1 bed • 1 bath • 549 ft²
2 bedroom apartment for sale in Gresham Road, Brentwood, CM14 — £285,000 • 2 bed • 1 bath • 614 ft²
2 bedroom apartment for sale in Rollason Way, Brentwood, CM14 — £275,000 • 2 bed • 1 bath • 649 ft²
2 bedroom apartment for sale in Florence Close, Brentwood, CM13 — £315,000 • 2 bed • 2 bath • 764 ft²






































