Comfortable four-bedroom home with heated garden office and generous rear lawn.
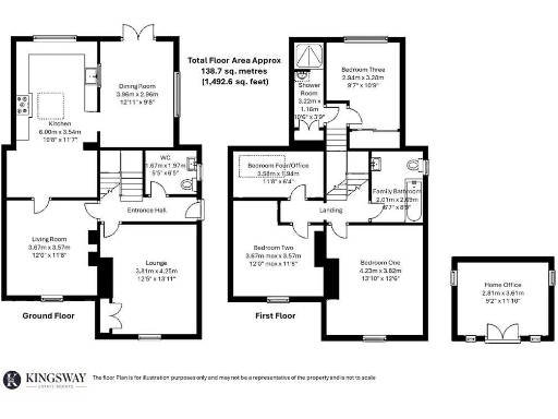
- Four bedrooms plus separate shower room and family bathroom
- Detached heated garden office with electricity
- Approx. 1,493 sq ft of living accommodation
- Substantial rear garden with patios and storage sheds
- Period character: fireplaces, sash-style windows, split staircase
- Oil-fired boiler heating; private fuel supply (not community)
- EPC rating E; likely solid brick walls with no insulation
- Council tax band above average, running-cost considerations
This attractive four-bedroom semi-detached cottage sits in the picturesque village of Haseley Knob and offers generous family accommodation across two floors. Period features include dual chimneys, traditional sash-style windows, an open fireplace and a cosy living-room log burner, all complemented by a large kitchen with handmade units and a dining room opening onto the rear garden. The house totals about 1,493 sq ft and benefits from a split staircase and flexible room layout, including a bedroom with an en-suite shower room.
A standout feature is the detached heated home office with power, ideal for remote working or creative space. The rear garden is substantial for a village property, with multiple patio areas and useful outbuildings for storage. The location suits families: local primary and secondary schools have Good Ofsted ratings, broadband speeds are fast, and mobile signal is excellent. The surrounding area is affluent and peaceful, with low crime and pleasant countryside character.
Buyers should note the property’s energy and running-cost considerations. Heating is supplied by an oil-fired boiler and radiators (private supply), the EPC rating is E, and the original solid brick walls are assumed uninsulated, so improving thermal efficiency may be necessary. Council tax sits above average. Overall this is a charming period home with strong village appeal, offering clear potential to improve energy performance and personalise finishes.
4 bedroom detached house for sale in Haseley Knob, Warwick, CV35 — £795,000 • 4 bed • 3 bath • 2161 ft²
4 bedroom semi-detached house for sale in Wolverton Fields, Norton Lindsey, Warwick, Warwickshire, CV35 — £625,000 • 4 bed • 2 bath • 1799 ft²
4 bedroom village house for sale in Wootton Wawen, Henley-in-Arden, Warwickshire, B95 — £585,000 • 4 bed • 1 bath • 1380 ft²
3 bedroom cottage for sale in Chestnut Square, Wellesbourne, CV35 — £500,000 • 3 bed • 1 bath • 1688 ft²
3 bedroom cottage for sale in Ashorne, CV35 — £425,000 • 3 bed • 2 bath • 893 ft²
3 bedroom semi-detached house for sale in Hatton Bank Lane, Black Hill, Stratford-Upon-Avon, CV37 — £750,000 • 3 bed • 2 bath • 1844 ft²






































































































































