Chain-free three-bedroom family home with garage, garden and extension potential STPP..
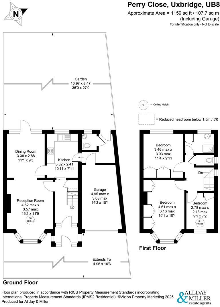
Three bedrooms, approximately 1,159 sq ft of accommodation
Chain-free sale, freehold tenure
Garage plus driveway for off-street parking
Private rear garden ~16m deep, good outdoor space
Huge potential to extend subject to planning (STPP)
Single family bathroom only; ground-floor WC present
EPC rating C; cavity walls assumed uninsulated
Built c.1950–1966 — may need energy or maintenance updates
This freehold three-bedroom semi-detached house in Perry Close is a spacious family home offered chain-free and ready to occupy. The layout provides separate reception and dining areas, a fitted kitchen, ground-floor WC and a single family bathroom upstairs. With around 1,159 sq ft of accommodation and a private rear garden of approximately 16m depth, the house suits everyday family life and outdoor entertaining.
Practical positives include off-street parking, a single garage, double glazing, mains gas central heating and an EPC rating of C. There is clear scope to increase living space — the property has ‘huge potential to extend’ subject to planning (STPP) which will appeal to buyers wanting to add value or adapt the home to changing needs.
Notable drawbacks are the single bathroom and an assumed lack of cavity wall insulation (as-built cavity walls). Built circa England & Wales 1950–1966, some buyers may wish to budget for energy improvements or allied maintenance over time. Council tax is moderate and local amenities, schools and transport links (Uxbridge town centre and tube connections) are within easy reach, making commuting straightforward.
4 bedroom semi-detached house for sale in Perry Close, Uxbridge, Middlesex, UB8 — £679,950 • 4 bed • 2 bath • 1572 ft²
3 bedroom semi-detached house for sale in Peel Way, Uxbridge, UB8 — £680,000 • 3 bed • 1 bath • 990 ft²
3 bedroom semi-detached house for sale in Ashwood Avenue, Uxbridge, UB8 — £500,000 • 3 bed • 1 bath • 1057 ft²
4 bedroom semi-detached house for sale in Barnacre Close, Uxbridge, UB8 — £649,950 • 4 bed • 3 bath • 1523 ft²
3 bedroom semi-detached house for sale in Peel Way, Uxbridge, UB8 — £550,000 • 3 bed • 1 bath • 1091 ft²
3 bedroom semi-detached house for sale in Hillingdon Road, Uxbridge, UB10 — £645,000 • 3 bed • 2 bath • 1467 ft²


























































