**Notable Features:**
- First-floor traditional flat in a charming blonde sandstone tenement
- Bright and spacious with generous room sizes
- Double bedrooms, one with a view of Queen's Park
- Contemporary bathroom and well-appointed kitchen
- Recent renovations: gas central heating (2020) and new windows (2019)
- Secure entry and maintained communal garden
- Close proximity to Queen’s Park, transport links, and amenities
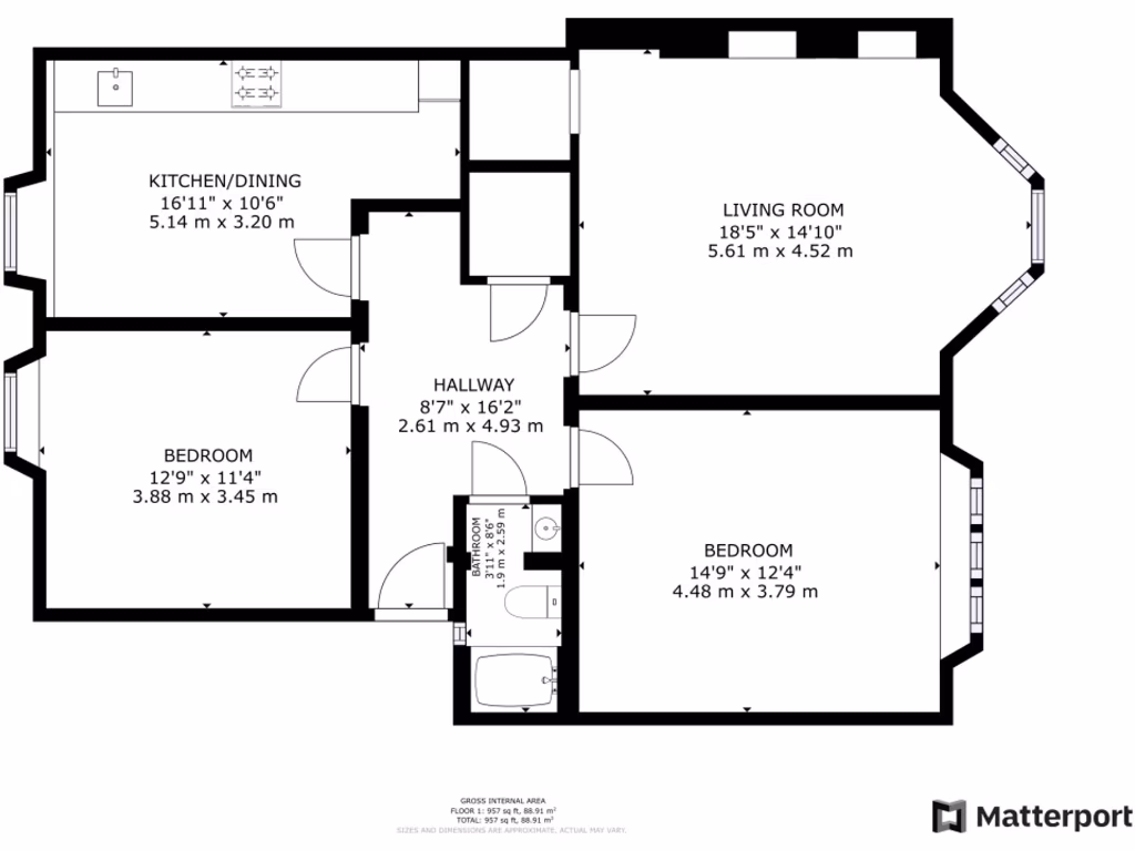
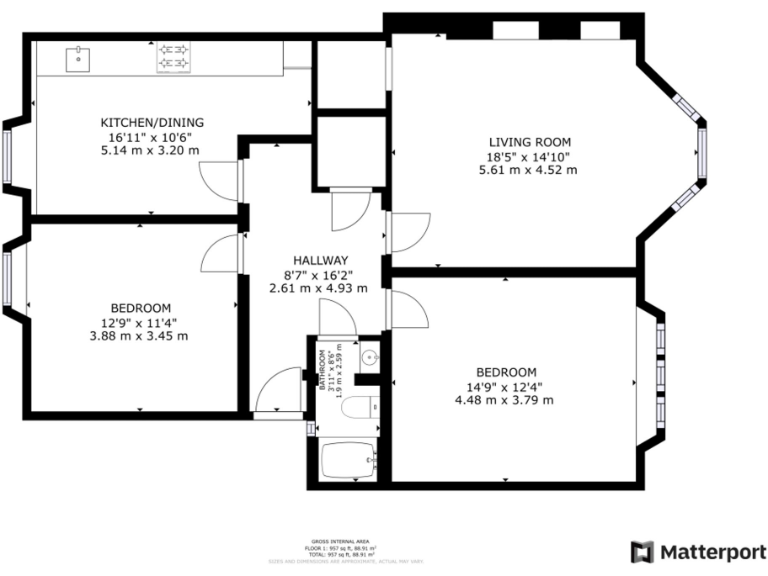
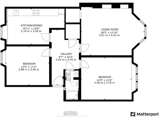
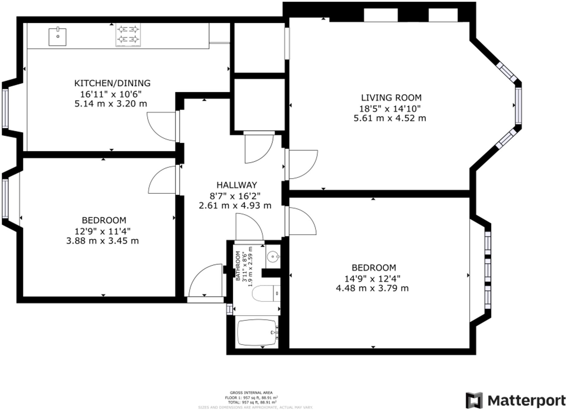
This inviting two-bedroom flat on Albert Avenue combines the charm of a traditional Glasgow tenement with modern comforts. Bathed in natural light, the bay-windowed lounge offers sweeping views over Queen's Park, making it an ideal sanctuary for relaxation or entertaining. The well-sized dining kitchen and two spacious double bedrooms, along with a stylish bathroom featuring a shower over the bath, cater to family living or investment potential.
Positioned in the vibrant Queen’s Park neighborhood, residents can readily enjoy delightful cafés, bars, and local shops just moments away. Commuting is a breeze with the nearby Queen’s Park train station and several bus routes, ensuring swift access to Glasgow city centre and beyond. Also, families will appreciate the selection of respected schools in the vicinity.
While the property is in good condition, prospective buyers should be mindful of potential future maintenance or personalization opportunities to truly make it their own. With an enticing price point and a desirable location, early viewing is highly recommended to secure this exceptional apartment before it's gone!
3 bedroom flat for sale in 14 Queen Mary Avenue, Flat 2/1, Queens Park, Glasgow, G42 8DT, G42 — £259,000 • 3 bed • 1 bath • 1130 ft²
2 bedroom flat for sale in Queens Park Avenue, Queens Park, G42 — £195,000 • 2 bed • 1 bath • 813 ft²
2 bedroom apartment for sale in Prince Edward Street, Queens Park, G42 — £175,000 • 2 bed • 1 bath • 758 ft²
1 bedroom flat for sale in Flat 0/2, 41 Torrisdale Street, Glasgow, G42 — £115,000 • 1 bed • 1 bath • 434 ft²
2 bedroom flat for sale in 543 Victoria Road, Flat B/1, Queens Park, Glasgow, G42 8BH, G42 — £219,000 • 2 bed • 1 bath • 1173 ft²
1 bedroom apartment for sale in Prince Edward Street, Queens Park, G42 — £159,000 • 1 bed • 1 bath • 715 ft²


















































































